8.2
Смотреть все фото
БЕЗ КОМИССИИ ID: 1266603 Рейтинг9.0 КлассА
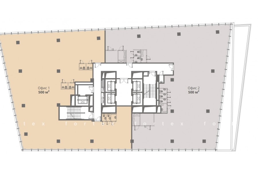
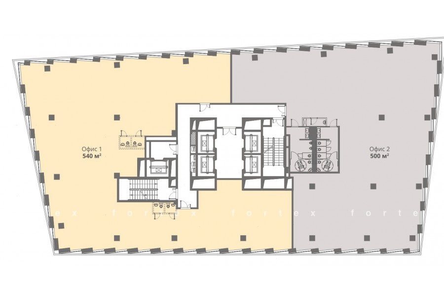
Бизнес-центр «Geolog»

Аренда офиса 7312 м²

Москва, улица Обручева, 23к2 с3

Калужская → 819 м
~ 8 мин
Арендная плата в месяц 23 387 400 ₽ 38 400 ₽/м² в год С учётом НДС

Презентация по предложению

Собираете информацию? Получите подробную презентацию в удобном формате!

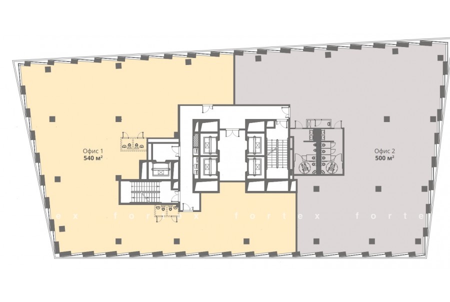
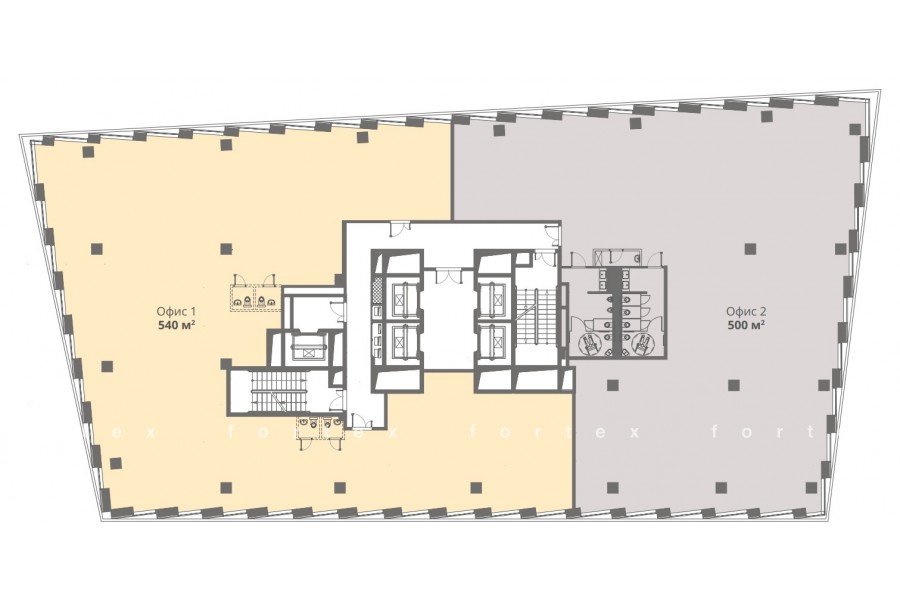
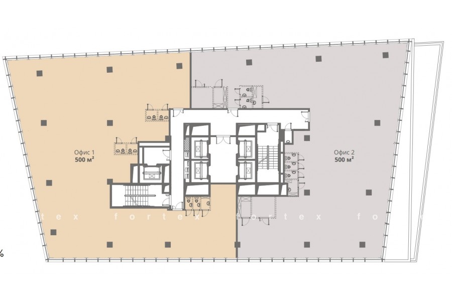
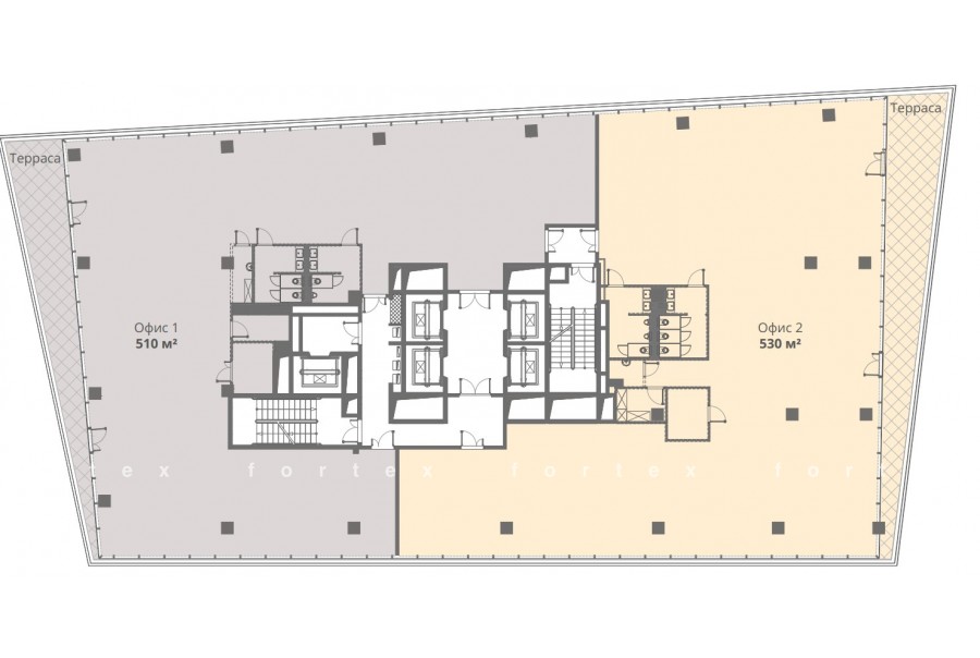
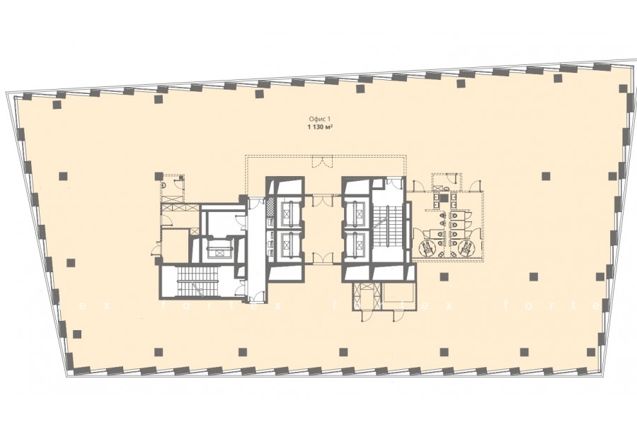
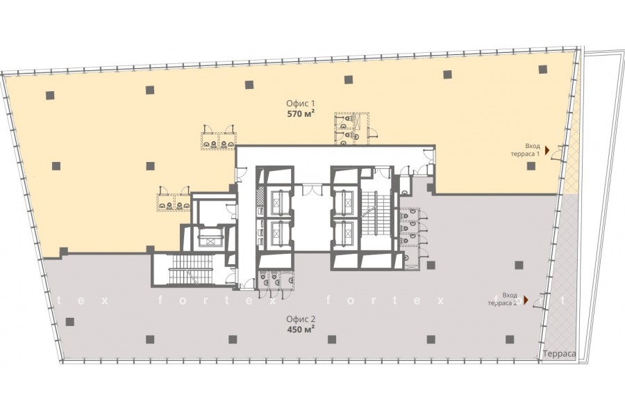
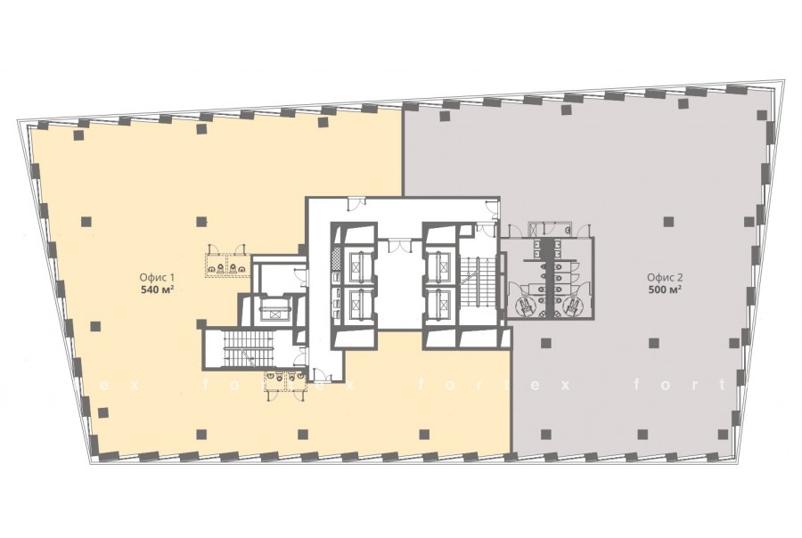
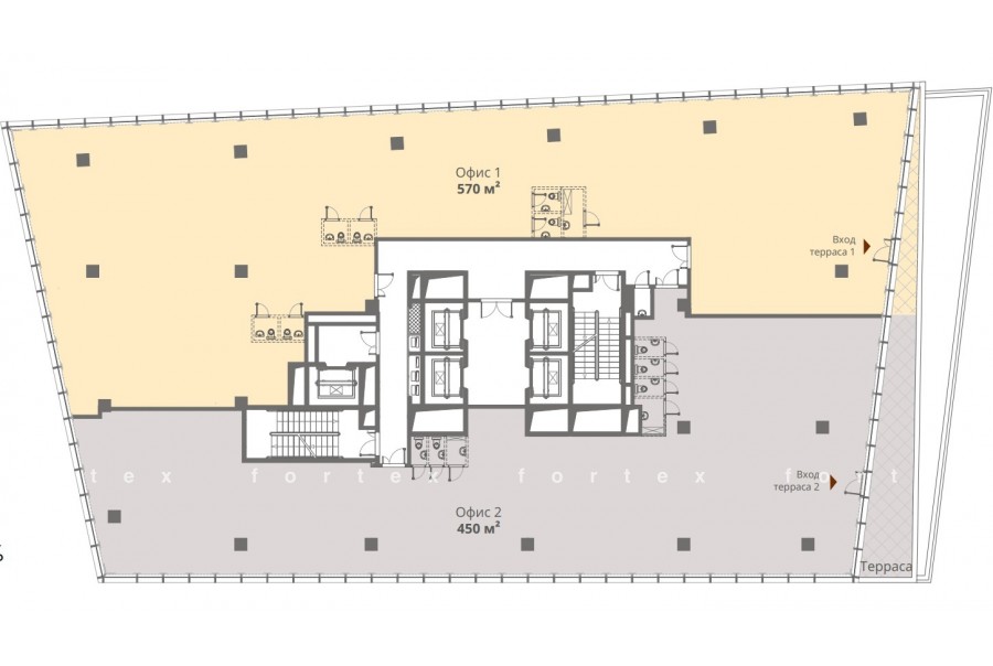
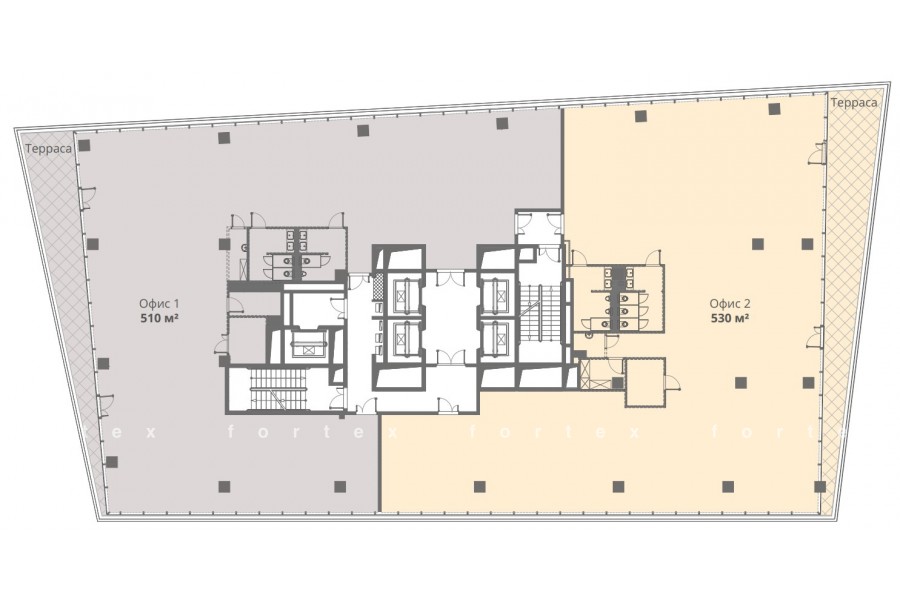
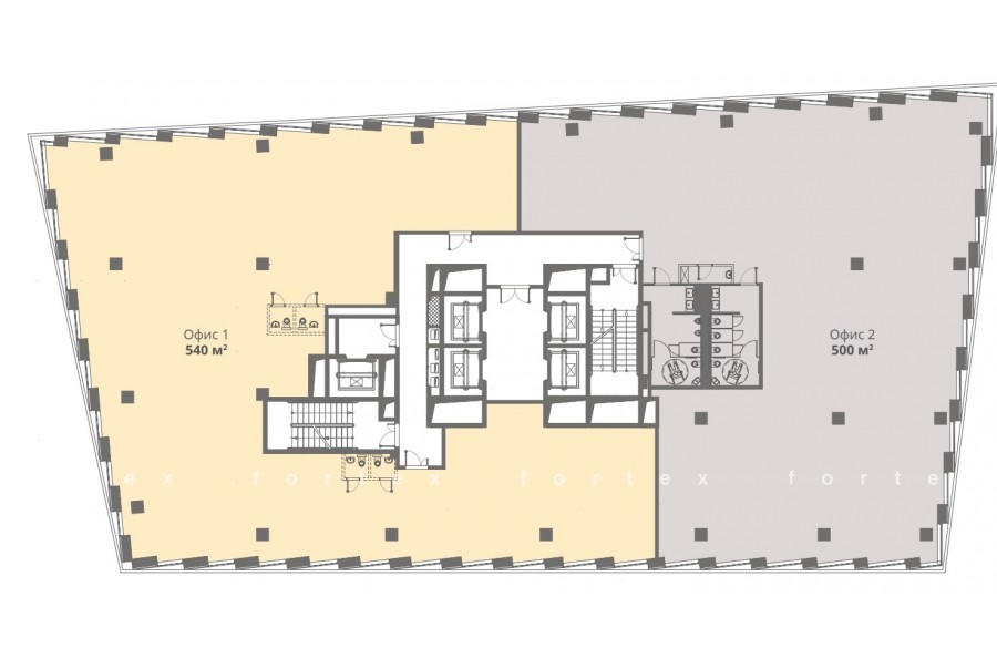
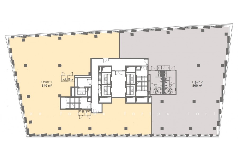
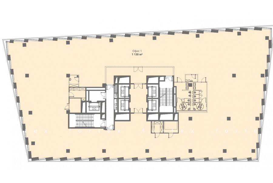
Площадь 7 312 м²
Состояние Под отделку
Планировка Открытая
Этаж 6 - 13

Описание

Преимущества
  • Класс А
  • Пешком от метро
  • Кондиционирование и вентиляция
  • Свой паркинг
Сдается в прямую аренду офисный блок класса А площадью 7312 кв.м в бизнес-центре "Geolog".

Москва, ЮЗАО, улица Обручева, 23к2 с3

Удобная локация здания:
- Автомобиль: близость транспортных магистралей, таких как Ленинский проспект, Профсоюзная улица и других.
- Возможность аренды парковочных мест.
- Ближайшее метро: от метро "Калужская" всего 8 мин пешком

Офис класса А:
- Офис в состоянии shell & core
- Вентиляция: Приточно-вытяжная вентиляция
- Кондиционирование: центральное


Что еще можно узнать о предложении:

1. Получите презентацию в течение 10 минут в Whatsapp или на почту с фотографиями и планировкой, чтобы обсудить данный вариант с коллегами или переслать руководству. Для этого позвоните по телефону, указанному в объявлении.
2. Мы готовы ответить на любые Ваши вопросы о помещении и коммерческих условиях аренды.
3. Покажем помещение в удобное для Вас время с менеджером в здании, при необходимости подготовим виртуальный тур.

Вы можете позвонить нам в любое время. Мы ответим на Ваши вопросы по будням до 19:00, а поздно вечером или в выходные зафиксируем Ваш контакт и перезвоним в рабочее время.

Коммерческие условия

Арендная плата 22 274 180 ₽
Ставка арендной платы 38 400 ₽ м²/год
Эксплуатационные расходы Включены в ставку
Налоги С учётом НДС
Тип договора Прямая аренда
Срок договора от 11 месяцев
Размер платежей 1 месяц
Обеспечительный платеж 1 месяц
Статус Сдан

О бизнес-центре

Класс А
Этажность 13
Лифты Есть
Общая площадь 17 072 м²
Паркинг Подземный
Вентиляция приточно-вытяжная
Кондиционирование центральное
Телекоммуникации Интернет/Телефония

Расположение

Подробная презентацию по предложению

Собираете информацию? Получите подробную презентацию в удобном формате, чтобы обсудить вариант с коллегами или переслать руководству!

Похожие предложения в других зданиях

БЕЗ КОМИССИИ ID: 59049 Рейтинг9.1 КлассB+

Москва, Профсоюзная улица, 65 к1

Калужская → 309 м
~ 3 мин
Арендная плата в месяц 27 534 500 ₽ 42 000 ₽/м² в год С учётом НДС
Характеристики 7 867 м² 6 - 9 этаж Готово к въезду
Преимущества
  • Класс B+
  • Пешком от метро
  • Кондиционирование и вентиляция
  • Свой паркинг
  • Несколько провайдеров связи
  • Развитая инфраструктура

Сдаем в долгосрочную аренду офис класса А площадью 7867 кв. метров в бизнес-центре "Лотте"... подробнее

Презентация по предложению

Собираете информацию? Получите подробную презентацию в удобном формате!

БЕЗ КОМИССИИ ID: 122244 Рейтинг8.5 КлассА

Москва, Херсонская улица, 43 к3

Зюзино → 1.4 км
~ 14 мин
Арендная плата в месяц 20 416 667 ₽ 35 000 ₽/м² в год С учётом НДС
Характеристики 7 000 м² 1 этаж Готово к въезду
Преимущества
  • Класс А
  • Пешком от метро
  • Кондиционирование и вентиляция
  • Свой паркинг

Сдается в прямую аренду офис класса А общей площадью 7000 кв. метров в бизнес-центре "Газойл Сити"... подробнее

Презентация по предложению

Собираете информацию? Получите подробную презентацию в удобном формате!

БЕЗ КОМИССИИ ID: 1231384 Рейтинг9.0 КлассА

Москва, Нахимовский проспект, 58

Профсоюзная → 955 м
~ 10 мин
Арендная плата в месяц 20 398 577 ₽ 35 000 ₽/м² в год С учётом НДС
Характеристики 7 002 м² 3 - 6 этаж Готово к въезду
Преимущества
  • Класс А
  • Пешком от метро
  • Кондиционирование и вентиляция
  • Свой паркинг
  • Несколько провайдеров связи

Предлагается в долгосрочную аренду офисное помещение класса А общей площадью 7002 кв.м в бизнес-центре "iCube"... подробнее

Презентация по предложению

Собираете информацию? Получите подробную презентацию в удобном формате!

Посмотреть все похожие предложения
Отнеситесь рационально к процессу поиска нового офиса!

Просто ответьте на 3 вопроса, и наши специалисты сами предложат оптимальные варианты под ваш бюджет

.