8.2
Смотреть все фото
БЕЗ КОМИССИИ ID: 1374040 Рейтинг9.4 КлассА
Бизнес-центр «Golden Gate»

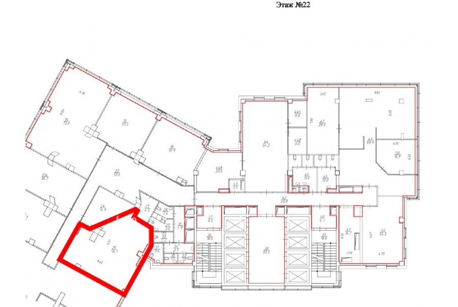
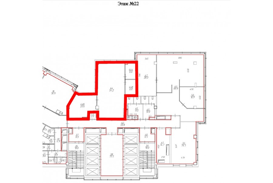
Аренда офиса 172 м²

Москва, бульвар Энтузиастов, 2

Площадь Ильича → 87 м
~ 1 мин
Арендная плата в месяц 722 700 ₽ 50 400 ₽/м² в год С учётом НДС

Презентация по предложению

Собираете информацию? Получите подробную презентацию в удобном формате!

Площадь 172 м²
Состояние Готово к въезду
Планировка Смешанная
Этаж 22

Описание

Преимущества
  • Класс А
  • Пешком от метро
  • Кондиционирование и вентиляция
  • Несколько провайдеров связи
  • Развитая инфраструктура
Предлагается в долгосрочную прямую аренду офисный блок класса А площадью 246 кв. метров в бизнес-центре "Golden Gate".

Москва, ЦАО, бульвар Энтузиастов, 2

Удобное расположение здания для всех видов транспорта:
- Автомобиль: близость транспортных магистралей, таких как Шоссе Энтузиастов и других.
- Возможность аренды парковочных мест.
- Ближайшее метро: буквально 1 мин пешком от метро "Площадь Ильича"

Офис класса А:
- Помещение с отделкой, готово к въезду
- Вентиляция: Приточно-вытяжная вентиляция
- Кондиционирование: центральное
- Презентабельный центральный ресепшн
- Круглосуточная охрана и видеонаблюдение
- Развитая инфраструктура внутри здания


Если предложение предварительно Вам подходит:

1. Мы подготовили презентацию с информацией о помещении, фотографиями и планировкой, чтобы Вы могли поделиться ей с коллегами или руководством. Попросите об этом нашего менеджера по телефону в объявлении.
2. Мы готовы ответить на любые Ваши вопросы о помещении и коммерческих условиях аренды.
3. Проводим показы ежедневно, договоримся на удобное для Вас время. Можем организовать виртуальный тур по офисному блоку.

Вы можете позвонить нам в любое время. Мы ответим на Ваши вопросы по будням до 19:00, а поздно вечером или в выходные зафиксируем Ваш контакт и перезвоним в рабочее время.

Коммерческие условия

Арендная плата 722 670 ₽
Ставка арендной платы 50 400 ₽ м²/год
Эксплуатационные расходы Включены в ставку
Налоги С учётом НДС
Тип договора Прямая аренда
Срок договора от 11 месяцев
Размер платежей 1 месяц
Обеспечительный платеж 2 месяц
Статус Сдан

О бизнес-центре

Класс А
Этажность 27
Лифты Есть
Общая площадь 46 719 м²
Год постройки 2013
Паркинг Наземный и подземный
Вентиляция приточно-вытяжная
Кондиционирование центральное
Телекоммуникации Интернет/Телефония

Расположение

Подробная презентацию по предложению

Собираете информацию? Получите подробную презентацию в удобном формате, чтобы обсудить вариант с коллегами или переслать руководству!

Отнеситесь рационально к процессу поиска нового офиса!

Просто ответьте на 3 вопроса, и наши специалисты сами предложат оптимальные варианты под ваш бюджет

.