8.2

Виртуальный тур

Смотреть все фото
БЕЗ КОМИССИИ ID: 410873 Рейтинг8.9 КлассB+
Бизнес-центр «Гончарная 21»

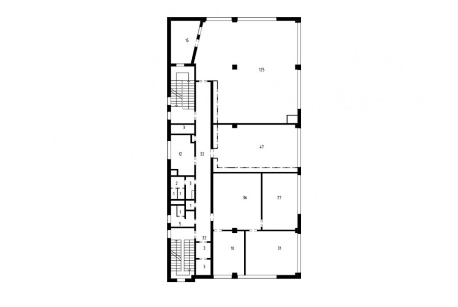
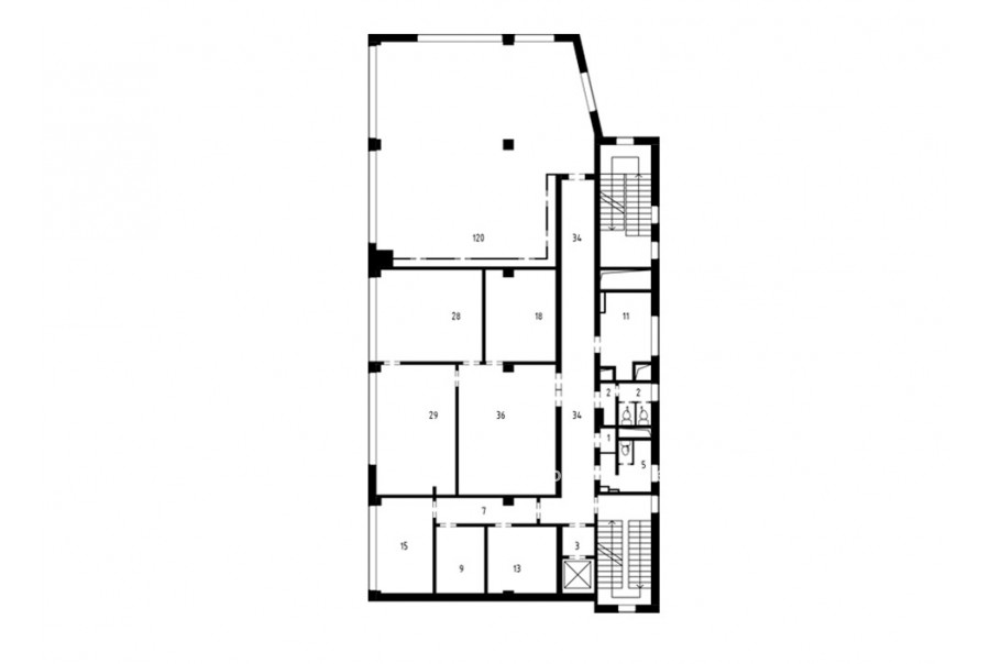
Аренда офиса 1377 м²

Москва, Гончарная улица, 21

Таганская → 424 м
~ 4 мин
Арендная плата в месяц 4 199 800 ₽ 36 600 ₽/м² в год С учётом НДС

Презентация по предложению

Собираете информацию? Получите подробную презентацию в удобном формате!

Площадь 1 377 м²
Состояние Готово к въезду
Планировка Смешанная
Этаж 1 - 4

Описание

Преимущества
  • Класс B+
  • Пешком от метро
  • Кондиционирование и вентиляция
  • Свой паркинг
  • Несколько провайдеров связи
  • Развитая инфраструктура
Предлагается в долгосрочную прямую аренду помещение под офис класса B+ общей площадью 1377 квадратных метров в бизнес-центре.

Москва, ЦАО, Гончарная улица, 21

Удобное расположение в пределах Садового кольца:
- Возможность аренды парковочных мест.
- Ближайшее метро: от метро "Таганская" всего 6 мин пешком

Офис класса B+:
- Офис с отделкой, полностью готов к аренде
- Вентиляция: Приточно-вытяжная вентиляция
- Кондиционирование: центральное
- Развитая инфраструктура внутри здания

Возможность заключения контракта в соответствии с 44ФЗ по госзакупкам.

Если предложение предварительно Вам подходит:

1. Получите презентацию в течение 10 минут в Whatsapp или на почту с фотографиями и планировкой, чтобы обсудить данный вариант с коллегами или переслать руководству. Для этого позвоните по телефону, указанному в объявлении.
2. Задайте любые вопросы менеджеру по телефону, готовы обсуждать любые предложения по финансовым условиям договора аренды.
3.

Вы можете позвонить нам в любое время. Мы ответим на Ваши вопросы по будням до 19:00, а поздно вечером или в выходные сможем передать Ваш контакт нашему менеджеру.

Коммерческие условия

Арендная плата 4 200 080 ₽
Ставка арендной платы 36 600 ₽ м²/год
Эксплуатационные расходы Включены в ставку
Налоги С учётом НДС
Тип договора Прямая аренда
Срок договора от 11 месяцев
Размер платежей 1 месяц
Обеспечительный платеж 1 месяц
Статус Сдан

О бизнес-центре

Класс B+
Этажность 4
Лифты Есть
Общая площадь 13 197 м²
Год постройки 2011
Паркинг Подземный
Вентиляция приточно-вытяжная
Кондиционирование центральное
Телекоммуникации Интернет/Телефония

Расположение

Подробная презентацию по предложению

Собираете информацию? Получите подробную презентацию в удобном формате, чтобы обсудить вариант с коллегами или переслать руководству!

Похожие предложения в других зданиях

БЕЗ КОМИССИИ ID: 1242505 Рейтинг8.6 КлассB+

Москва, Воронцовская улица, 17

Марксистская → 389 м
~ 4 мин
Арендная плата в месяц 4 266 050 ₽ 32 900 ₽/м² в год С учётом НДС
Характеристики 1 557 м² 3 - 4 этаж Готово к въезду
Преимущества
  • Класс B+
  • Пешком от метро
  • Кондиционирование и вентиляция
  • Свой паркинг

Предлагаем в долгосрочную прямую аренду офисный блок класса B+ площадью 1557 кв. метров в бизнес-центре "Мосэнка Плаза 6"... подробнее

Презентация по предложению

Собираете информацию? Получите подробную презентацию в удобном формате!

БЕЗ КОМИССИИ ID: 1242502 Рейтинг8.6 КлассB+

Москва, Воронцовская улица, 17

Марксистская → 389 м
~ 4 мин
Арендная плата в месяц 3 809 043 ₽ 34 900 ₽/м² в год С учётом НДС
Характеристики 1 310 м² 1 - 2 этаж Готово к въезду
Преимущества
  • Класс B+
  • Пешком от метро
  • Кондиционирование и вентиляция
  • Свой паркинг

Предлагаем в прямую аренду офис класса B+ площадью 1310 кв. метров в бизнес-центре "Мосэнка Плаза 6"... подробнее

Презентация по предложению

Собираете информацию? Получите подробную презентацию в удобном формате!

БЕЗ КОМИССИИ ID: 1288688 Рейтинг6.8 КлассB

Москва, Садовническая набережная, 69

Павелецкая → 1.09 км
~ 11 мин
Арендная плата в месяц 3 330 433 ₽ 34 100 ₽/м² в год С учётом НДС
Характеристики 1 172 м² 2 - -4 этаж Готово к въезду
Преимущества
  • Класс B
  • Пешком от метро
  • Кондиционирование и вентиляция
  • Свой паркинг
  • Развитая инфраструктура

Собственник сдает в долгосрочную прямую аренду офис класса B общей площадью 1172 квадратных метров в бизнес-центре... подробнее

Презентация по предложению

Собираете информацию? Получите подробную презентацию в удобном формате!

БЕЗ КОМИССИИ ID: 77257 Рейтинг7.7 КлассB+

Москва, Николоямская улица, 54 с1

Площадь Ильича → 1.02 км
~ 10 мин
Арендная плата в месяц 4 431 750 ₽ 34 200 ₽/м² в год С учётом НДС
Характеристики 1 555 м² 1 - 4 этаж Готово к въезду
Преимущества
  • Класс B+
  • Пешком от метро
  • Кондиционирование и вентиляция
  • Свой паркинг
  • Несколько провайдеров связи

Собственник сдает в долгосрочную прямую аренду офисный блок класса B+ площадью 1555 кв. метров в бизнес-центре "Мосэнка Плаза 5"... подробнее

Презентация по предложению

Собираете информацию? Получите подробную презентацию в удобном формате!

БЕЗ КОМИССИИ ID: 14333 Рейтинг7.7 КлассB+

Москва, Николоямская улица, 54 с1

Площадь Ильича → 1.02 км
~ 10 мин
Арендная плата в месяц 3 800 000 ₽ 38 000 ₽/м² в год С учётом НДС
Характеристики 1 200 м² 2 этаж Готово к въезду
Преимущества
  • Класс B+
  • Пешком от метро
  • Кондиционирование и вентиляция
  • Свой паркинг
  • Несколько провайдеров связи

Предлагается в прямую аренду офисный блок класса B+ площадью 1200 кв. метров в бизнес-центре "Мосэнка Плаза 5"... подробнее

Презентация по предложению

Собираете информацию? Получите подробную презентацию в удобном формате!

Посмотреть все похожие предложения
Отнеситесь рационально к процессу поиска нового офиса!

Просто ответьте на 3 вопроса, и наши специалисты сами предложат оптимальные варианты под ваш бюджет

.