8.2

Виртуальный тур

Смотреть все фото
ВОЗМОЖНО ОСВОБОЖДЕНИЕ ID: 303378 Рейтинг5.7 КлассB

Москва, Гороховский переулок, 14

Курская → 1.12 км
~ 11 мин
Арендная плата в месяц по запросу потенциального арендатора Срок освобождение в течение 3 месяцев

Информация по помещению

Ознакомьтесь с дополнительной информацией по помещению и коммерческим условиям!

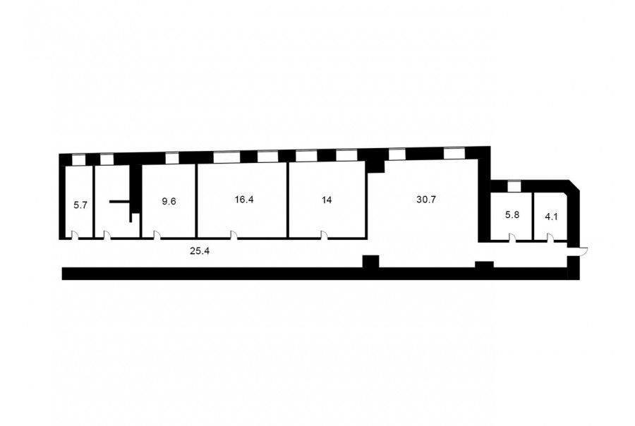
Площадь 532 м²
Планировка Кабинетная
Этаж 1 - 2

Описание

Преимущества
  • Класс B
  • Пешком от метро
  • Кондиционирование и вентиляция
  • Свой паркинг

Коммерческие условия

Арендная плата по запросу
Ставка арендной платы по запросу
Эксплуатационные расходы Включены в ставку
Налоги С учётом НДС
Тип договора Прямая аренда
Срок договора от 11 месяцев
Размер платежей 1 месяц
Обеспечительный платеж 1 месяц
Статус Сдан

О бизнес-центре

Класс B
Этажность 2
Лифты Нет
Общая площадь 520 м²
Год постройки 1880
Паркинг Наземный
Вентиляция естественная
Кондиционирование сплит-системы
Телекоммуникации Интернет/Телефония

Расположение

Информация по помещению

Получите дополнительную информацию по помещению и коммерческом условиям!

Похожие предложения в других зданиях

БЕЗ КОМИССИИ ID: 220050 Рейтинг8.0 КлассB+

Москва, Старая Басманная улица, 18 с3

Курская → 1.12 км
~ 11 мин
Арендная плата в месяц 893 167 ₽ 23 000 ₽/м² в год С учётом НДС
Характеристики 466 м² 2 этаж Готово к въезду
Преимущества
  • Класс B+
  • Пешком от метро
  • Кондиционирование и вентиляция
  • Свой паркинг

Предлагаем в долгосрочную прямую аренду офисный блок класса B+ площадью 466 кв.м в бизнес-центре... подробнее

Презентация по предложению

Собираете информацию? Получите подробную презентацию в удобном формате!

БЕЗ КОМИССИИ ID: 129608 Рейтинг8.0 КлассА

Москва, Доброслободская улица, 3

Бауманская → 817 м
~ 8 мин
Арендная плата в месяц 1 063 750 ₽ 23 000 ₽/м² в год С учётом НДС
Характеристики 555 м² 6 этаж Готово к въезду
Преимущества
  • Класс А
  • Пешком от метро
  • Кондиционирование и вентиляция
  • Свой паркинг
  • Несколько провайдеров связи
  • Развитая инфраструктура

Предлагаем в долгосрочную аренду помещение под офис класса А общей площадью 555 квадр. метров в бизнес-центре "Басманов"... подробнее

Презентация по предложению

Собираете информацию? Получите подробную презентацию в удобном формате!

БЕЗ КОМИССИИ ID: 16466 Рейтинг4.8 КлассB

Москва, Спартаковская улица, 2а с2

Бауманская → 756 м
~ 8 мин
Арендная плата в месяц 835 500 ₽ 18 000 ₽/м² в год С учётом НДС
Характеристики 557 м² 4 этаж Готово к въезду
Преимущества
  • Класс B
  • Пешком от метро
  • Кондиционирование и вентиляция
  • Свой паркинг

Собственник сдает в долгосрочную аренду помещение под офис класса B общей площадью 557 квадратных метров в историческом недавно отреконструированном бизнес-центре... подробнее

Презентация по предложению

Собираете информацию? Получите подробную презентацию в удобном формате!

БЕЗ КОМИССИИ ID: 101504 Рейтинг7.1 КлассB+

Москва, улица Радио, 10 с3

Бауманская → 1.38 км
~ 14 мин
Арендная плата в месяц 765 000 ₽ 18 000 ₽/м² в год С учётом НДС
Характеристики 510 м² 1 - 2 этаж Готово к въезду
Преимущества
  • Класс B+
  • Пешком от метро
  • Кондиционирование и вентиляция
  • Свой паркинг

Сдаем в долгосрочную аренду помещение под офис класса B+ площадью 510 квадратных метров в историческом бизнес-центре... подробнее

Презентация по предложению

Собираете информацию? Получите подробную презентацию в удобном формате!

БЕЗ КОМИССИИ ID: 290251 Рейтинг6.2 КлассB

Москва, Новая Басманная улица, 23 с4

Красные Ворота → 868 м
~ 9 мин
Арендная плата в месяц 786 000 ₽ 18 000 ₽/м² в год С учётом НДС
Характеристики 524 м² -1 - 2 этаж Готово к въезду
Преимущества
  • Класс B
  • Пешком от метро
  • Свой паркинг

Предлагаем в долгосрочную аренду офисное помещение класса B площадью 524 кв. метров в недавно отреконструированном бизнес-центре... подробнее

Презентация по предложению

Собираете информацию? Получите подробную презентацию в удобном формате!

Посмотреть все похожие предложения
Отнеситесь рационально к процессу поиска нового офиса!

Просто ответьте на 3 вопроса, и наши специалисты сами предложат оптимальные варианты под ваш бюджет

.