8.2
Смотреть все фото
БЕЗ КОМИССИИ ID: 1315198 Рейтинг7.3 КлассB
Бизнес-центр «Графский 12А с1»

Аренда офиса 1412 м²

Москва, Графский переулок, 12А с1

Алексеевская → 941 м
~ 9 мин
Арендная плата в месяц 3 100 000 ₽ 26 300 ₽/м² в год С учётом НДС

Презентация по предложению

Собираете информацию? Получите подробную презентацию в удобном формате!

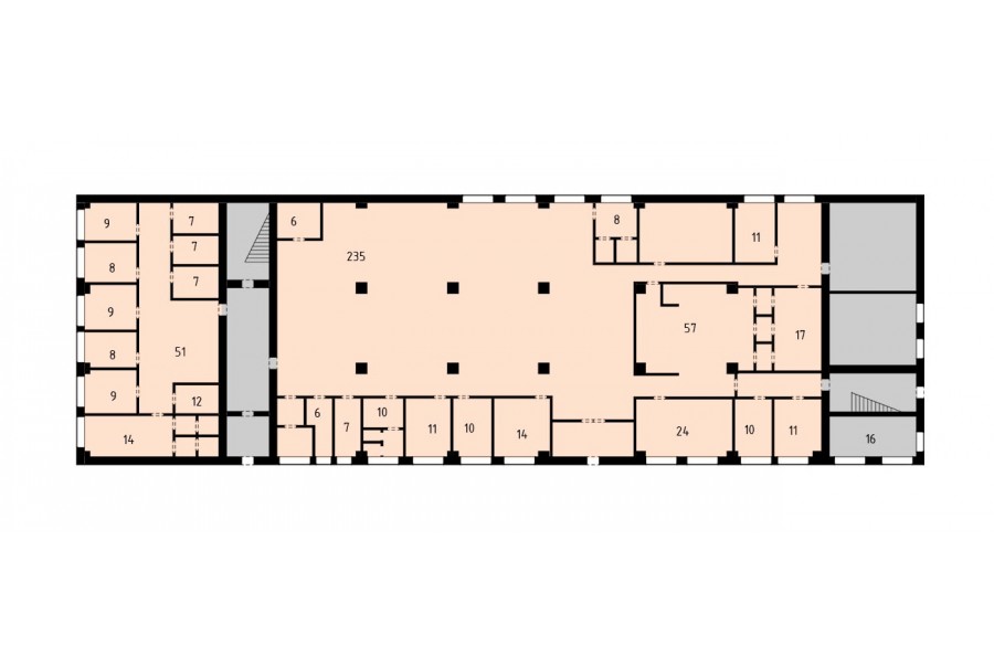
Площадь 1 412 м²
Состояние Готово к въезду
Планировка Смешанная
Этаж 1

Описание

Преимущества
  • Класс B
  • Пешком от метро
  • Кондиционирование и вентиляция
  • Свой паркинг
  • Несколько провайдеров связи
Предлагается в долгосрочную аренду помещение под офис класса B общей площадью 1412 кв.м в бизнес-центре.

Москва, СВАО, Графский переулок, 12А с1

Удобная локация здания:
- Автомобиль: близость транспортных магистралей, таких как Проспект Мира, Третье Транспортное Кольцо и других.
- Возможность аренды парковочных мест.
- Ближайшее метро: от метро "Алексеевская" всего 9 мин пешком

Офис класса B:
- Помещение с отделкой, готово к въезду
- Вентиляция: Приточно-вытяжная вентиляция
- Кондиционирование: центральное


Если данное предложение подходит Вашему запросу:

1. Мы отправим Вам подробную презентацию с планировкой и фотографиями в течение 10 минут после звонка, чтобы Вы могли поделиться информацией с руководством или с коллегами.
2. Задайте любые вопросы менеджеру по телефону, готовы обсуждать любые предложения по финансовым условиям договора аренды.
3. Оперативно организуем просмотр помещения, договоримся на любое удобное время, подготовим виртуальный тур.

Звоните нам в любое время. По будням мы сможем ответить на Ваши вопросы до 19:00. В выходные или вечернее время мы передадим Ваш контакт нашему менеджеру по аренде.

Коммерческие условия

Арендная плата 3 100 050 ₽
Ставка арендной платы 26 300 ₽ м²/год
Эксплуатационные расходы Включены в ставку
Налоги С учётом НДС
Тип договора Прямая аренда
Срок договора от 11 месяцев
Размер платежей 1 месяц
Обеспечительный платеж 1 месяц
Статус Сдан

О бизнес-центре

Класс B
Этажность 3
Лифты Нет
Общая площадь 2 600 м²
Год постройки 2008
Паркинг Наземный
Вентиляция приточно-вытяжная
Кондиционирование центральное
Телекоммуникации Интернет/Телефония

Расположение

Подробная презентацию по предложению

Собираете информацию? Получите подробную презентацию в удобном формате, чтобы обсудить вариант с коллегами или переслать руководству!

Похожие предложения в других зданиях

БЕЗ КОМИССИИ ID: 49122 Рейтинг6.6 КлассB

Москва, Звёздный бульвар, 21 с1

Алексеевская → 1.22 км
~ 12 мин
Арендная плата в месяц 3 544 450 ₽ 27 300 ₽/м² в год С учётом НДС
Характеристики 1 558 м² 5 - 6 этаж Готово к въезду
Преимущества
  • Класс B
  • Пешком от метро
  • Кондиционирование и вентиляция
  • Развитая инфраструктура

Собственник сдает в долгосрочную аренду офис класса B площадью 1558 квадратных метров в бизнес-центре... подробнее

Презентация по предложению

Собираете информацию? Получите подробную презентацию в удобном формате!

БЕЗ КОМИССИИ ID: 1381289 Рейтинг8.5 КлассB+

Москва, 3-я Рыбинская улица, 18 с2

Сокольники → 1.54 км
~ 15 мин
Арендная плата в месяц 4 550 927 ₽ 34 600 ₽/м² в год С учётом НДС
Характеристики 1 580 м² 2 - 5 этаж Готово к въезду
Преимущества
  • Класс B+
  • Пешком от метро
  • Кондиционирование и вентиляция
  • Свой паркинг
  • Несколько провайдеров связи

Сдается в долгосрочную прямую аренду офисное помещение класса B+ площадью 1580 кв.м в недавно отреконструированном бизнес-центре "Буревестник"... подробнее

Презентация по предложению

Собираете информацию? Получите подробную презентацию в удобном формате!

БЕЗ КОМИССИИ ID: 1379650 Рейтинг8.5 КлассB+

Москва, 3-я Рыбинская улица, 18 с2

Сокольники → 1.54 км
~ 15 мин
Арендная плата в месяц 4 079 245 ₽ 34 900 ₽/м² в год С учётом НДС
Характеристики 1 401 м² 2 - 5 этаж Готово к въезду
Преимущества
  • Класс B+
  • Пешком от метро
  • Кондиционирование и вентиляция
  • Свой паркинг
  • Несколько провайдеров связи

Предлагается в долгосрочную прямую аренду офис класса B+ общей площадью 1401 кв. метров в недавно отреконструированном бизнес-центре "Буревестник"... подробнее

Презентация по предложению

Собираете информацию? Получите подробную презентацию в удобном формате!

БЕЗ КОМИССИИ ID: 1379649 Рейтинг8.5 КлассB+

Москва, 3-я Рыбинская улица, 18 с2

Сокольники → 1.54 км
~ 15 мин
Арендная плата в месяц 3 736 740 ₽ 35 300 ₽/м² в год С учётом НДС
Характеристики 1 271 м² 2 этаж Готово к въезду
Преимущества
  • Класс B+
  • Пешком от метро
  • Кондиционирование и вентиляция
  • Свой паркинг
  • Несколько провайдеров связи

Сдается в прямую аренду офис класса B+ площадью 1271 кв.м в недавно отреконструированном бизнес-центре "Буревестник"... подробнее

Презентация по предложению

Собираете информацию? Получите подробную презентацию в удобном формате!

БЕЗ КОМИССИИ ID: 1381288 Рейтинг8.5 КлассB+

Москва, 3-я Рыбинская улица, 18 с2

Сокольники → 1.54 км
~ 15 мин
Арендная плата в месяц 3 691 045 ₽ 34 000 ₽/м² в год С учётом НДС
Характеристики 1 301 м² 2 - 5 этаж Готово к въезду
Преимущества
  • Класс B+
  • Пешком от метро
  • Кондиционирование и вентиляция
  • Свой паркинг
  • Несколько провайдеров связи

Предлагается в прямую аренду офис класса B+ площадью 1301 кв.м в недавно отреконструированном бизнес-центре "Буревестник"... подробнее

Презентация по предложению

Собираете информацию? Получите подробную презентацию в удобном формате!

Посмотреть все похожие предложения
Отнеситесь рационально к процессу поиска нового офиса!

Просто ответьте на 3 вопроса, и наши специалисты сами предложат оптимальные варианты под ваш бюджет

.