8.2
Смотреть все фото
БЕЗ КОМИССИИ ID: 267033 Рейтинг6.4 КлассB
Бизнес-центр «Графский 12А с2»

Аренда офиса 1490 м²

Москва, Графский переулок, 12А с2

Алексеевская → 992 м
~ 10 мин
Арендная плата в месяц 1 676 200 ₽ 13 500 ₽/м² в год С учётом НДС

Презентация по предложению

Собираете информацию? Получите подробную презентацию в удобном формате!

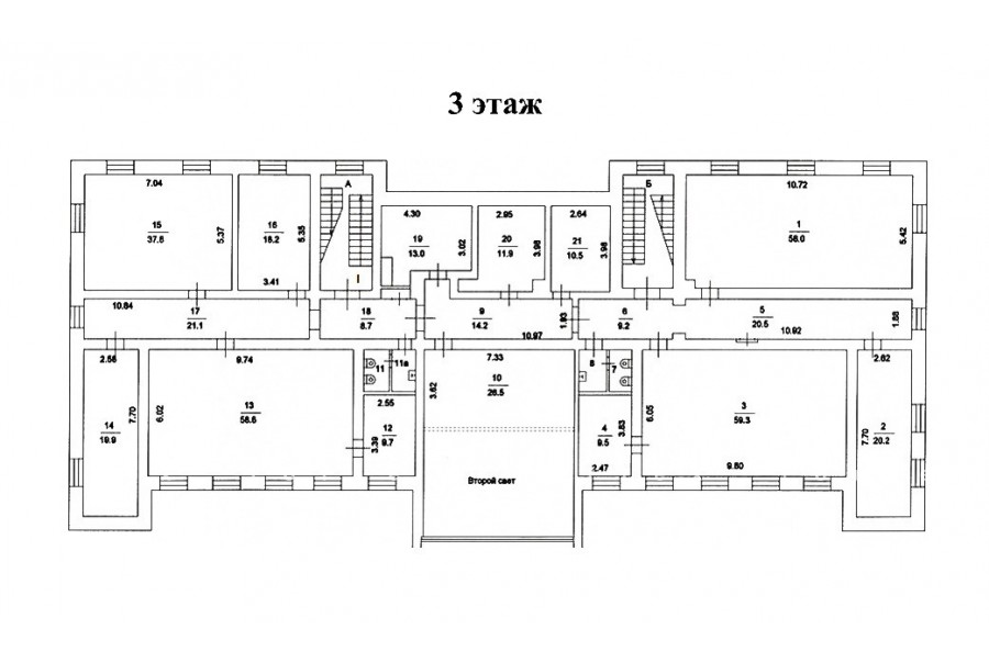
Площадь 1 490 м²
Состояние Готово к въезду
Планировка Кабинетная
Этаж 1 - 3

Описание

Преимущества
  • Класс B
  • Пешком от метро
  • Кондиционирование и вентиляция
  • Свой паркинг
Предлагается в прямую аренду помещение под офис класса B общей площадью 1490 квадр. метров в бизнес-центре.

Москва, СВАО, Графский переулок, 12а с2

Удобная локация здания:
- Автомобиль: близость транспортных магистралей, таких как Третье Транспортное Кольцо, Проспект Мира и других.
- Возможность аренды парковочных мест.
- Ближайшее метро: от метро "Алексеевская" всего 12 мин пешком

Офис класса B:
- Помещение с отделкой, готово к въезду
- Кондиционирование: сплит-системы

Возможность заключения контракта в соответствии с 44ФЗ по госзакупкам.

Если предложение предварительно Вам подходит:

1. Мы отправим Вам подробную презентацию с планировкой и фотографиями в течение 10 минут после звонка, чтобы Вы могли поделиться информацией с руководством или с коллегами.
2. Задайте любые вопросы менеджеру по телефону, готовы обсуждать любые предложения по финансовым условиям договора аренды.
3. Покажем помещение в удобное для Вас время с менеджером в здании, при необходимости подготовим виртуальный тур.

Звоните нам в любое время. По будням мы сможем ответить на Ваши вопросы до 19:00. В выходные или вечернее время мы передадим Ваш контакт нашему менеджеру по аренде.

Коммерческие условия

Арендная плата 1 676 250 ₽
Ставка арендной платы 13 500 ₽ м²/год
Эксплуатационные расходы Включены в ставку
Налоги С учётом НДС
Тип договора Прямая аренда
Срок договора от 11 месяцев
Размер платежей 1 месяц
Обеспечительный платеж 1 месяц
Статус Сдан

О бизнес-центре

Класс B
Этажность 3
Лифты Нет
Общая площадь 1 493 м²
Паркинг Наземный
Вентиляция естественная
Кондиционирование сплит-системы
Телекоммуникации Интернет/Телефония

Расположение

Подробная презентацию по предложению

Собираете информацию? Получите подробную презентацию в удобном формате, чтобы обсудить вариант с коллегами или переслать руководству!

Похожие предложения в других зданиях

БЕЗ КОМИССИИ ID: 45833 Рейтинг8.0 КлассB

Москва, улица Годовикова, 9 с25

Алексеевская → 889 м
~ 9 мин
Арендная плата в месяц 1 750 000 ₽ 14 000 ₽/м² в год С учётом НДС
Характеристики 1 500 м² 1 этаж Готово к въезду
Преимущества
  • Класс B
  • Пешком от метро
  • Кондиционирование и вентиляция
  • Свой паркинг

Сдается в долгосрочную аренду офисный блок класса B площадью 1500 квадр. метров в историческом бизнес-центре... подробнее

Презентация по предложению

Собираете информацию? Получите подробную презентацию в удобном формате!

БЕЗ КОМИССИИ ID: 1291356 Рейтинг4.6 КлассB

Москва, 2-я Рыбинская улица, 21 с1А

Рижская → 1.74 км
~ 17 мин
Арендная плата в месяц 1 718 750 ₽ 13 800 ₽/м² в год С учётом НДС
Характеристики 1 500 м² 4 - 6 этаж Под отделку
Преимущества
  • Класс B
  • Пешком от метро
  • Свой паркинг

Сдается в прямую аренду помещение под офис класса B общей площадью 1500 кв. метров в бизнес-центре... подробнее

Презентация по предложению

Собираете информацию? Получите подробную презентацию в удобном формате!

БЕЗ КОМИССИИ ID: 1079440 Рейтинг7.1 КлассB

Москва, улица Лобачика, 11

Сокольники → 1.34 км
~ 13 мин
Арендная плата в месяц 1 550 000 ₽ 12 400 ₽/м² в год С учётом НДС
Характеристики 1 500 м² 6 этаж Готово к въезду
Преимущества
  • Класс B
  • Пешком от метро
  • Кондиционирование и вентиляция
  • Свой паркинг
  • Развитая инфраструктура

Сдается в долгосрочную прямую аренду офисный блок класса B общей площадью 1500 квадр. метров в бизнес-центре... подробнее

Презентация по предложению

Собираете информацию? Получите подробную презентацию в удобном формате!

БЕЗ КОМИССИИ ID: 1325827 Рейтинг5.5 КлассB

Москва, улица Академика Королёва, 13

ВДНХ → 1.73 км
~ 17 мин
Арендная плата в месяц 2 287 500 ₽ 18 300 ₽/м² в год С учётом НДС
Характеристики 1 500 м² 2 этаж Готово к въезду
Преимущества
  • Класс B
  • Пешком от метро
  • Кондиционирование и вентиляция
  • Свой паркинг
  • Развитая инфраструктура

Предлагается в долгосрочную аренду офисное помещение класса B общей площадью 1500 кв.м в бизнес-центре... подробнее

Презентация по предложению

Собираете информацию? Получите подробную презентацию в удобном формате!

БЕЗ КОМИССИИ ID: 190420 Рейтинг5.3 КлассB

Москва, Большая Новодмитровская улица, 12 с12

Савеловская → 273 м
~ 3 мин
Арендная плата в месяц 1 600 000 ₽ 12 000 ₽/м² в год С учётом НДС
Характеристики 1 600 м² 1 - 3 этаж Готово к въезду
Преимущества
  • Класс B
  • Пешком от метро
  • Кондиционирование и вентиляция
  • Свой паркинг

Сдаем в долгосрочную прямую аренду помещение под офис класса B общей площадью 1600 квадратных метров в историческом бизнес-центре... подробнее

Презентация по предложению

Собираете информацию? Получите подробную презентацию в удобном формате!

Посмотреть все похожие предложения
Отнеситесь рационально к процессу поиска нового офиса!

Просто ответьте на 3 вопроса, и наши специалисты сами предложат оптимальные варианты под ваш бюджет

.