8.2

Виртуальный тур

Смотреть все фото
БЕЗ КОМИССИИ ID: 496278 Рейтинг8.1 КлассB
Бизнес-центр «Гранатный 4 с2»

Аренда офиса 283 м²

Москва, Гранатный переулок, 4 с2

Баррикадная → 1.08 км
~ 11 мин
Арендная плата в месяц 707 500 ₽ 30 000 ₽/м² в год С учётом НДС

Презентация по предложению

Собираете информацию? Получите подробную презентацию в удобном формате!

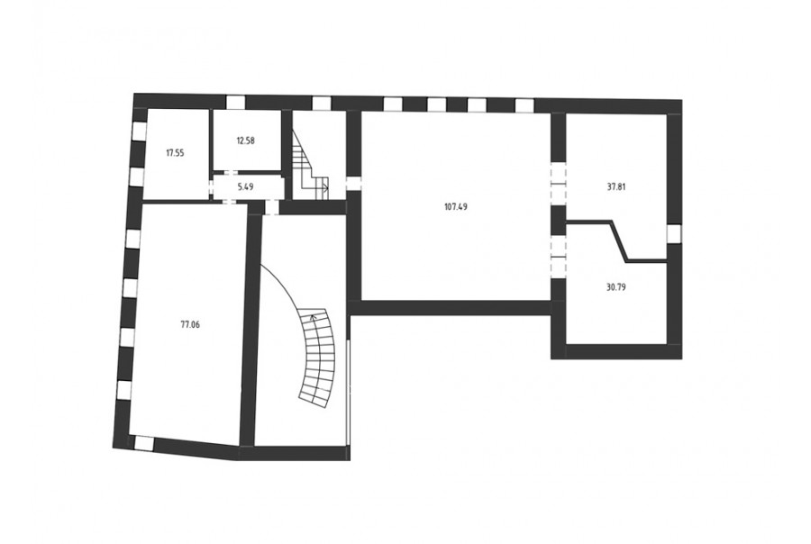
Площадь 283 м²
Состояние Готово к въезду
Планировка Смешанная
Этаж 3

Описание

Преимущества
  • Класс B
  • Пешком от метро
  • Кондиционирование и вентиляция
  • Свой паркинг
Сдаем в прямую аренду помещение под офис класса B общей площадью 283 квадр. метров в бизнес-центре.

Москва, ЦАО, Гранатный переулок, 4 с2

Удобное расположение в пределах Садового кольца:
- Возможность аренды парковочных мест.
- Ближайшее метро: от метро "Арбатская" всего 15 мин пешком

Офис класса B:
- Помещение готово к въезду
- Вентиляция: Приточно-вытяжная вентиляция
- Кондиционирование: центральное


Если данное предложение подходит Вашему запросу:

1. Мы отправим Вам подробную презентацию с планировкой и фотографиями в течение 10 минут после звонка, чтобы Вы могли поделиться информацией с руководством или с коллегами.
2. Задайте любые вопросы менеджеру по телефону, готовы обсуждать любые предложения по финансовым условиям договора аренды.
3.

Звоните нам в любое время. По будням мы сможем ответить на Ваши вопросы до 19:00. В выходные или вечернее время мы передадим Ваш контакт нашему менеджеру по аренде.

Коммерческие условия

Арендная плата 707 500 ₽
Ставка арендной платы 30 000 ₽ м²/год
Эксплуатационные расходы Включены в ставку
Налоги С учётом НДС
Тип договора Прямая аренда
Срок договора от 11 месяцев
Размер платежей 1 месяц
Обеспечительный платеж 1 месяц
Статус Сдан

О бизнес-центре

Класс B
Этажность 3
Лифты Нет
Общая площадь 1 161 м²
Паркинг Наземный
Вентиляция приточно-вытяжная
Кондиционирование центральное
Телекоммуникации Интернет/Телефония

Расположение

Подробная презентацию по предложению

Собираете информацию? Получите подробную презентацию в удобном формате, чтобы обсудить вариант с коллегами или переслать руководству!

Похожие предложения в других зданиях

ВОЗМОЖНО ОСВОБОЖДЕНИЕ ID: 218430 Рейтинг7.9 КлассB+

Москва, Гранатный переулок, 1А

Баррикадная → 1.04 км
~ 10 мин
Арендная плата в месяц 670 000 ₽ 30 000 ₽/м² в год С учётом НДС
Характеристики 268 м² 1 этаж Готово к въезду
Преимущества
  • Класс B+
  • Пешком от метро
  • Кондиционирование и вентиляция
  • Свой паркинг

Предлагается в долгосрочную прямую аренду помещение под офис класса B+ площадью 268 кв.м в бизнес-центре... подробнее

Презентация по предложению

Собираете информацию? Получите подробную презентацию в удобном формате!

БЕЗ КОМИССИИ ID: 72681 Рейтинг6.6 КлассB

Москва, улица Спиридоновка, 16

Арбатская → 1.21 км
~ 12 мин
Арендная плата в месяц 700 000 ₽ 28 000 ₽/м² в год С учётом НДС
Характеристики 300 м² 2 этаж Готово к въезду
Преимущества
  • Класс B
  • Пешком от метро
  • Кондиционирование и вентиляция
  • Свой паркинг

Предлагается в прямую аренду помещение под офис класса B общей площадью 300 кв.м в бизнес-центре... подробнее

Презентация по предложению

Собираете информацию? Получите подробную презентацию в удобном формате!

БЕЗ КОМИССИИ ID: 184476 Рейтинг7.7 КлассB

Москва, Вспольный переулок, 11

Баррикадная → 714 м
~ 7 мин
Арендная плата в месяц 550 000 ₽ 26 400 ₽/м² в год С учётом НДС
Характеристики 250 м² 0 - 3 этаж Готово к въезду
Преимущества
  • Класс B
  • Пешком от метро
  • Кондиционирование и вентиляция
  • Свой паркинг

Сдаем в долгосрочную аренду офисное помещение класса B площадью 250 квадратных метров в бизнес-центре... подробнее

Презентация по предложению

Собираете информацию? Получите подробную презентацию в удобном формате!

БЕЗ КОМИССИИ ID: 243402 Рейтинг7.4 КлассB+

Москва, Вспольный переулок, 5 с2

Баррикадная → 636 м
~ 6 мин
Арендная плата в месяц 600 667 ₽ 27 200 ₽/м² в год С учётом НДС
Характеристики 265 м² 1 - 3 этаж Готово к въезду
Преимущества
  • Класс B+
  • Пешком от метро
  • Кондиционирование и вентиляция
  • Свой паркинг

Сдаем в долгосрочную аренду офис класса B+ общей площадью 265 кв.м в историческом бизнес-центре "Вспольный"... подробнее

Презентация по предложению

Собираете информацию? Получите подробную презентацию в удобном формате!

БЕЗ КОМИССИИ ID: 217369 Рейтинг7.5 КлассB

Москва, Вспольный переулок, 21

Баррикадная → 897 м
~ 9 мин
Арендная плата в месяц 541 667 ₽ 26 000 ₽/м² в год С учётом НДС
Характеристики 250 м² 1 - 4 этаж Готово к въезду
Преимущества
  • Класс B
  • Пешком от метро
  • Кондиционирование и вентиляция
  • Свой паркинг

Предлагаем в долгосрочную прямую аренду помещение под офис класса B площадью 250 кв. метров в историческом бизнес-центре... подробнее

Презентация по предложению

Собираете информацию? Получите подробную презентацию в удобном формате!

Посмотреть все похожие предложения
Отнеситесь рационально к процессу поиска нового офиса!

Просто ответьте на 3 вопроса, и наши специалисты сами предложат оптимальные варианты под ваш бюджет

.