8.2

Виртуальный тур

Смотреть все фото
БЕЗ КОМИССИИ ID: 496277 Рейтинг8.1 КлассB
Бизнес-центр «Гранатный 4 с2»

Аренда офиса 411 м²

Москва, Гранатный переулок, 4 с2

Баррикадная → 1.08 км
~ 11 мин
Арендная плата в месяц 1 205 600 ₽ 35 200 ₽/м² в год С учётом НДС

Презентация по предложению

Собираете информацию? Получите подробную презентацию в удобном формате!

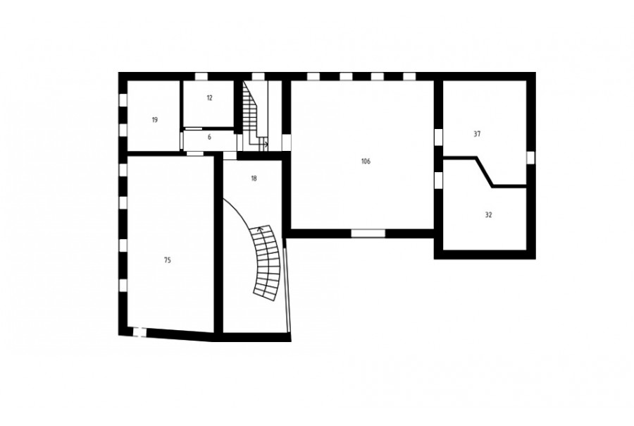
Площадь 411 м²
Состояние Готово к въезду
Планировка Кабинетная
Этаж 2 - 3

Описание

Преимущества
  • Класс B
  • Пешком от метро
  • Кондиционирование и вентиляция
  • Свой паркинг
Предлагается в долгосрочную аренду офисное помещение класса B общей площадью 411 квадратных метров в бизнес-центре.

Москва, ЦАО, Гранатный переулок, 4 с2

Удобное расположение в пределах Садового кольца:
- Возможность аренды парковочных мест.
- Ближайшее метро: от метро "Баррикадная" всего 12 мин пешком

Офис класса B:
- Офис с отделкой, полностью готов к аренде
- Вентиляция: Приточно-вытяжная вентиляция
- Кондиционирование: центральное


Если данное предложение подходит Вашему запросу:

1. Мы подготовили презентацию с информацией о помещении, фотографиями и планировкой, чтобы Вы могли поделиться ей с коллегами или руководством. Попросите об этом нашего менеджера по телефону в объявлении.
2. Мы готовы ответить на любые Ваши вопросы о помещении и коммерческих условиях аренды.
3.

Вы можете позвонить нам в любое время. Мы ответим на Ваши вопросы по будням до 19:00, а поздно вечером или в выходные зафиксируем Ваш контакт и перезвоним в рабочее время.

Коммерческие условия

Арендная плата 1 206 700 ₽
Ставка арендной платы 35 200 ₽ м²/год
Эксплуатационные расходы Включены в ставку
Налоги С учётом НДС
Тип договора Прямая аренда
Срок договора от 11 месяцев
Размер платежей 1 месяц
Обеспечительный платеж 1 месяц
Статус Сдан

О бизнес-центре

Класс B
Этажность 3
Лифты Нет
Общая площадь 1 161 м²
Паркинг Наземный
Вентиляция приточно-вытяжная
Кондиционирование центральное
Телекоммуникации Интернет/Телефония

Расположение

Подробная презентацию по предложению

Собираете информацию? Получите подробную презентацию в удобном формате, чтобы обсудить вариант с коллегами или переслать руководству!

Похожие предложения в других зданиях

БЕЗ КОМИССИИ ID: 74359 Рейтинг6.0 КлассB

Москва, Большой Патриарший переулок, 6 с1

Маяковская → 994 м
~ 10 мин
Арендная плата в месяц 1 127 500 ₽ 33 000 ₽/м² в год С учётом НДС
Характеристики 410 м² 1 - 3 этаж Готово к въезду
Преимущества
  • Класс B
  • Пешком от метро
  • Кондиционирование и вентиляция

Предлагаем в долгосрочную прямую аренду офисное помещение класса B общей площадью 410 кв.м в бизнес-центре... подробнее

Презентация по предложению

Собираете информацию? Получите подробную презентацию в удобном формате!

БЕЗ КОМИССИИ ID: 283022 Рейтинг8.9 КлассА

Москва, Малая Никитская улица, 29

Баррикадная → 630 м
~ 6 мин
Арендная плата в месяц 1 166 667 ₽ 35 000 ₽/м² в год С учётом НДС
Характеристики 400 м² 1 - 5 этаж Готово к въезду
Преимущества
  • Класс А
  • Пешком от метро
  • Кондиционирование и вентиляция
  • Свой паркинг

Собственник сдает в долгосрочную прямую аренду офис класса А площадью 400 кв.м в историческом бизнес-центре "Малая Никитская 29"... подробнее

Презентация по предложению

Собираете информацию? Получите подробную презентацию в удобном формате!

БЕЗ КОМИССИИ ID: 306290 Рейтинг6.2 КлассB

Москва, Столовый переулок, 6

Арбатская → 862 м
~ 9 мин
Арендная плата в месяц 1 135 633 ₽ 31 400 ₽/м² в год С учётом НДС
Характеристики 434 м² 1 - 3 этаж Готово к въезду
Преимущества
  • Класс B
  • Пешком от метро
  • Кондиционирование и вентиляция

Предлагается в долгосрочную аренду офисное помещение класса B общей площадью 434 кв.м в историческом бизнес-центре... подробнее

Презентация по предложению

Собираете информацию? Получите подробную презентацию в удобном формате!

БЕЗ КОМИССИИ ID: 11423 Рейтинг8.0 КлассB

Москва, Малая Никитская улица, 31 с1

Баррикадная → 600 м
~ 6 мин
Арендная плата в месяц 1 165 500 ₽ 31 500 ₽/м² в год С учётом НДС
Характеристики 444 м² 1 этаж Готово к въезду
Преимущества
  • Класс B
  • Пешком от метро
  • Кондиционирование и вентиляция
  • Свой паркинг

Сдаем в долгосрочную аренду офисное помещение класса B площадью 444 квадратных метров в бизнес-центре... подробнее

Презентация по предложению

Собираете информацию? Получите подробную презентацию в удобном формате!

БЕЗ КОМИССИИ ID: 150466 Рейтинг5.9 КлассА

Москва, Большая Никитская улица, 62 с3

Баррикадная → 548 м
~ 5 мин
Арендная плата в месяц 1 000 000 ₽ 30 000 ₽/м² в год С учётом НДС
Характеристики 400 м² 1 - 2 этаж Готово к въезду
Преимущества
  • Класс А
  • Пешком от метро
  • Кондиционирование и вентиляция

Собственник сдает в долгосрочную аренду офис класса А общей площадью 400 кв. метров в историческом недавно отреконструированном бизнес-центре "Никитская плаза"... подробнее

Презентация по предложению

Собираете информацию? Получите подробную презентацию в удобном формате!

Посмотреть все похожие предложения
Отнеситесь рационально к процессу поиска нового офиса!

Просто ответьте на 3 вопроса, и наши специалисты сами предложат оптимальные варианты под ваш бюджет

.