8.2
Смотреть все фото
БЕЗ КОМИССИИ ID: 302909 Рейтинг7.6 КлассB+
Бизнес-центр «GreenWood»

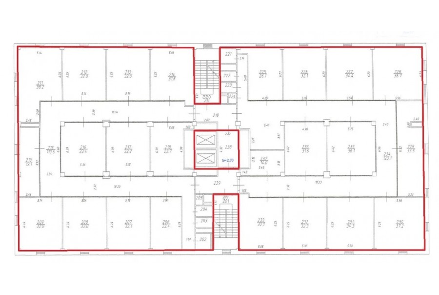
Аренда офиса 4107 м²

Москва, МКАД, 72-й км к17

Планерная → 6.5 км
~ 35 мин
Арендная плата в месяц 5 510 200 ₽ 16 100 ₽/м² в год С учётом НДС

Презентация по предложению

Собираете информацию? Получите подробную презентацию в удобном формате!

Площадь 4 107 м²
Состояние Готово к въезду
Планировка Смешанная
Этаж 3 - 6

Описание

Преимущества
  • Класс B+
  • Кондиционирование и вентиляция
  • Свой паркинг
  • Несколько провайдеров связи
Предлагаем в прямую аренду офисный блок класса B+ общей площадью 4107 кв. метров в бизнес-центре "GreenWood".

Москва, Подмосковье, МКАД, 72-й км к17

Характеристики местоположения:
- Возможность аренды парковочных мест.
- Ближайшее метро: метро "Планерная", далее городской транспорт до здания

Офис класса B+:
- Помещение с отделкой, готово к въезду
- Вентиляция: Приточно-вытяжная вентиляция
- Кондиционирование: центральное


Если данное предложение подходит Вашему запросу:

1. Получите презентацию в течение 10 минут в Whatsapp или на почту с фотографиями и планировкой, чтобы обсудить данный вариант с коллегами или переслать руководству. Для этого позвоните по телефону, указанному в объявлении.
2. Ответим на любые Ваши вопросы, готовы обсуждать любые предложения по коммерческим условиям аренды помещения.
3. Проводим показы ежедневно, договоримся на удобное для Вас время. Можем организовать виртуальный тур по офисному блоку.

Звоните нам в любое время. По будням мы сможем ответить на Ваши вопросы до 19:00. В выходные или вечернее время мы передадим Ваш контакт нашему менеджеру по аренде.

Коммерческие условия

Арендная плата 4 107 000 ₽
Ставка арендной платы 16 100 ₽ м²/год
Эксплуатационные расходы Включены в ставку
Налоги С учётом НДС
Тип договора Прямая аренда
Срок договора от 11 месяцев
Размер платежей 1 месяц
Обеспечительный платеж 1 месяц
Статус Сдан

О бизнес-центре

Класс B+
Этажность 6
Лифты Есть
Общая площадь 130 000 м²
Год постройки 2011
Паркинг Наземный
Вентиляция приточно-вытяжная
Кондиционирование центральное
Телекоммуникации Интернет/Телефония

Расположение

Подробная презентацию по предложению

Собираете информацию? Получите подробную презентацию в удобном формате, чтобы обсудить вариант с коллегами или переслать руководству!

Похожие предложения в других зданиях

БЕЗ КОМИССИИ ID: 57733 Рейтинг8.3 КлассА

Москва, Куркинское шоссе, 2

Планерная → 3.61 км
~ 15 мин
Арендная плата в месяц 5 326 333 ₽ 15 200 ₽/м² в год С учётом НДС
Характеристики 4 205 м² 19 - 23 этаж Под отделку
Преимущества
  • Класс А
  • Кондиционирование и вентиляция

Сдается в прямую аренду офисное помещение класса А площадью 4205 кв. метров в бизнес-центре "Aero City"... подробнее

Презентация по предложению

Собираете информацию? Получите подробную презентацию в удобном формате!

БЕЗ КОМИССИИ ID: 57732 Рейтинг8.3 КлассА

Москва, Куркинское шоссе, 2

Планерная → 3.61 км
~ 15 мин
Арендная плата в месяц 4 794 333 ₽ 15 200 ₽/м² в год С учётом НДС
Характеристики 3 785 м² 19 - 23 этаж Под отделку
Преимущества
  • Класс А
  • Кондиционирование и вентиляция

Сдаем в прямую аренду помещение под офис класса А площадью 3785 квадратных метров в бизнес-центре "Aero City"... подробнее

Презентация по предложению

Собираете информацию? Получите подробную презентацию в удобном формате!

БЕЗ КОМИССИИ ID: 72562 Рейтинг8.7 КлассB+

Химки, Ленинградская улица, 39с5

Планерная → 8.92 км
~ 37 мин
Арендная плата в месяц 6 996 700 ₽ 18 300 ₽/м² в год С учётом НДС
Характеристики 4 588 м² 12 - 15 этаж Готово к въезду
Преимущества
  • Класс B+
  • Кондиционирование и вентиляция
  • Несколько провайдеров связи

Предлагаем в долгосрочную аренду офисное помещение класса B+ общей площадью 4588 кв.м в бизнес-центре "Химки Бизнес Парк"... подробнее

Презентация по предложению

Собираете информацию? Получите подробную презентацию в удобном формате!

ВОЗМОЖНО ОСВОБОЖДЕНИЕ ID: 1209239 Рейтинг8.5 КлассB+

Москва, Международное шоссе, 28Б с1

Планерная → 12.43 км
~ 36 мин
Арендная плата в месяц 5 066 667 ₽ 15 200 ₽/м² в год С учётом НДС
Характеристики 4 000 м² 1 - 8 этаж Готово к въезду
Преимущества
  • Класс B+
  • Кондиционирование и вентиляция
  • Свой паркинг

Собственник сдает в долгосрочную аренду офисный блок класса B+ площадью 4000 квадратных метров в бизнес-центре "Скайпойнт"... подробнее

Презентация по предложению

Собираете информацию? Получите подробную презентацию в удобном формате!

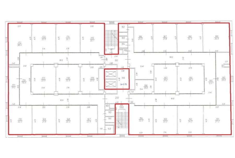
БЕЗ КОМИССИИ ID: 283144 Рейтинг7.6 КлассB+

Москва, МКАД, 72-й км к17

Планерная → 6.5 км
~ 35 мин
Арендная плата в месяц 5 793 317 ₽ 16 100 ₽/м² в год С учётом НДС
Характеристики 4 318 м² 2 - 5 этаж Готово к въезду
Преимущества
  • Класс B+
  • Кондиционирование и вентиляция
  • Свой паркинг
  • Несколько провайдеров связи

Сдаем в долгосрочную аренду офис класса B+ общей площадью 4318 кв. метров в бизнес-центре "GreenWood"... подробнее

Презентация по предложению

Собираете информацию? Получите подробную презентацию в удобном формате!

Посмотреть все похожие предложения
Отнеситесь рационально к процессу поиска нового офиса!

Просто ответьте на 3 вопроса, и наши специалисты сами предложат оптимальные варианты под ваш бюджет

.