8.2
Смотреть все фото
БЕЗ КОМИССИИ ID: 1329892 Рейтинг6.7 КлассB

Москва, Хохловский переулок, 10 с3

Китай-город → 716 м
~ 7 мин
Арендная плата в месяц 3 036 700 ₽ 40 000 ₽/м² в год С учётом НДС

Презентация по предложению

Собираете информацию? Получите подробную презентацию в удобном формате!

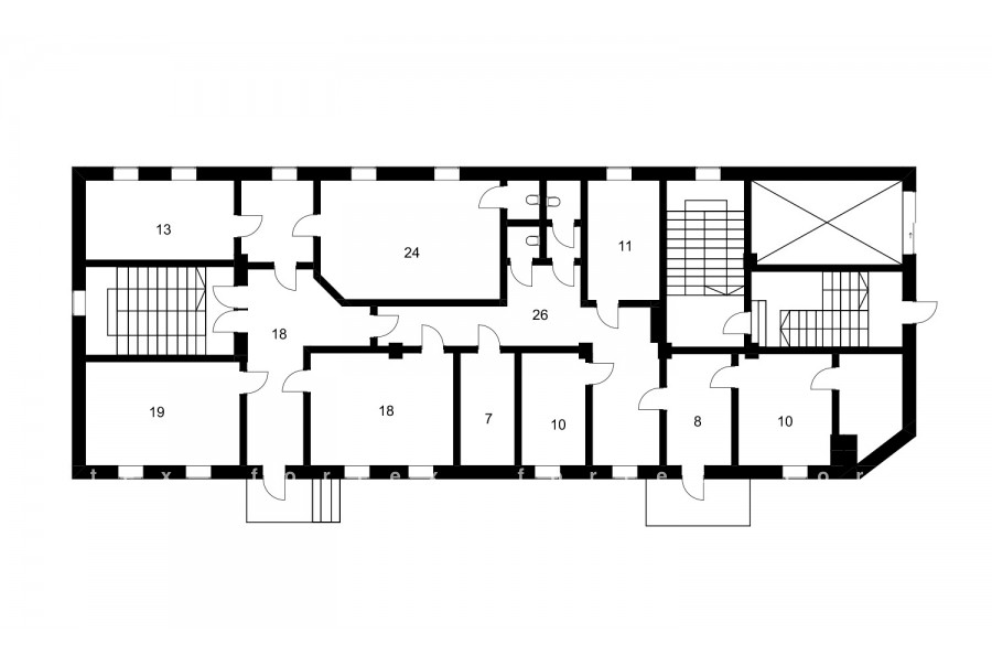
Площадь 911 м²
Состояние Готово к въезду
Планировка Кабинетная
Этаж -1 - 3

Описание

Преимущества
  • Класс B
  • Пешком от метро
  • Кондиционирование и вентиляция
  • Свой паркинг
  • Несколько провайдеров связи
Предлагается в долгосрочную аренду здание под офис класса B общей площадью 911 кв.м.

Москва, ЦАО, Хохловский переулок, 10 с3

Удобное расположение в пределах Садового кольца:
- Возможность аренды парковочных мест.
- Ближайшее метро: от метро "Китай-город" всего 11 мин пешком

Офис класса B:
- Офис с отделкой, полностью готов к аренде
- Кондиционирование: сплит-системы

Возможность заключения контракта в соответствии с 44ФЗ по госзакупкам.

Если данное предложение подходит Вашему запросу:

1. Мы подготовили презентацию с информацией о помещении, фотографиями и планировкой, чтобы Вы могли поделиться ей с коллегами или руководством. Попросите об этом нашего менеджера по телефону в объявлении.
2. Мы готовы ответить на любые Ваши вопросы о помещении и коммерческих условиях аренды.
3. Оперативно организуем просмотр помещения с менеджерами на объекте или подготовим виртуальный тур.

Вы можете позвонить нам в любое время. Мы ответим на Ваши вопросы по будням до 19:00, а поздно вечером или в выходные зафиксируем Ваш контакт и перезвоним в рабочее время.

Коммерческие условия

Арендная плата 3 036 670 ₽
Ставка арендной платы 40 000 ₽ м²/год
Эксплуатационные расходы Включены в ставку
Налоги С учётом НДС
Тип договора Прямая аренда
Срок договора Долгосрочный
Размер платежей 1 месяц
Обеспечительный платеж 1 месяц
Статус Свободен

О бизнес-центре

Класс B
Этажность 3
Лифты Нет
Общая площадь 911 м²
Паркинг Наземный
Вентиляция естественная
Кондиционирование сплит-системы
Телекоммуникации Интернет/Телефония

Расположение

Подробная презентацию по предложению

Собираете информацию? Получите подробную презентацию в удобном формате, чтобы обсудить вариант с коллегами или переслать руководству!

Похожие предложения в других зданиях

БЕЗ КОМИССИИ ID: 1318831 Рейтинг7.3 КлассB

Москва, улица Покровка, 27 с6

Чистые пруды → 842 м
~ 8 мин
Арендная плата в месяц 2 500 016 ₽ 34 800 ₽/м² в год С учётом НДС
Характеристики 862 м² 1 - 3 этаж Готово к въезду
Преимущества
  • Класс B
  • Пешком от метро
  • Кондиционирование и вентиляция

Сдаем в долгосрочную прямую аренду офисное здание класса B площадью 862 квадратных метров. .. подробнее

>

Виртуальный тур

Презентация по предложению

Собираете информацию? Получите подробную презентацию в удобном формате!

БЕЗ КОМИССИИ ID: 1372792 Рейтинг9.1 КлассB

Москва, улица Земляной Вал, 35 с1

Курская → 39 м
~ 1 мин
Арендная плата в месяц 3 000 080 ₽ 37 500 ₽/м² в год С учётом НДС
Характеристики 960 м² -1 - 3 этаж Готово к въезду
Преимущества
  • Класс B
  • Пешком от метро
  • Кондиционирование и вентиляция
  • Свой паркинг

Сдается в долгосрочную прямую аренду здание под офис класса B общей площадью 960 квадр. метров. .. подробнее

Презентация по предложению

Собираете информацию? Получите подробную презентацию в удобном формате!

БЕЗ КОМИССИИ ID: 1329841 Рейтинг9.3 КлассА

Москва, улица Земляной Вал, 9

Курская → 447 м
~ 4 мин
Арендная плата в месяц 4 890 980 ₽ 69 500 ₽/м² в год С учётом НДС
Характеристики 844 м² 4 этаж Готово к въезду
Преимущества
  • Класс А
  • Пешком от метро
  • Кондиционирование и вентиляция
  • Свой паркинг
  • Развитая инфраструктура

Предлагается в долгосрочную аренду офисный блок класса А общей площадью 844 квадратных метров в бизнес-центре "СитиДел"... подробнее

>

Виртуальный тур

Презентация по предложению

Собираете информацию? Получите подробную презентацию в удобном формате!

БЕЗ КОМИССИИ ID: 1289079 Рейтинг8.9 КлассА

Москва, улица Станиславского, 21 с1

Таганская → 932 м
~ 9 мин
Арендная плата в месяц 4 045 317 ₽ 56 100 ₽/м² в год С учётом НДС
Характеристики 865 м² 2 этаж Готово к въезду
Преимущества
  • Класс А
  • Пешком от метро
  • Кондиционирование и вентиляция
  • Свой паркинг
  • Несколько провайдеров связи

Предлагаем в прямую аренду офис класса А общей площадью 865 кв. метров в недавно отреконструированном бизнес-центре "Фабрика Станиславского"... подробнее

Презентация по предложению

Собираете информацию? Получите подробную презентацию в удобном формате!

БЕЗ КОМИССИИ ID: 1326254 Рейтинг7.9 КлассB+

Москва, набережная Академика Туполева, 15 к2

Бауманская → 1.26 км
~ 13 мин
Арендная плата в месяц 2 826 250 ₽ 35 000 ₽/м² в год С учётом НДС
Характеристики 969 м² -1 - 3 этаж Готово к въезду
Преимущества
  • Класс B+
  • Пешком от метро
  • Кондиционирование и вентиляция
  • Свой паркинг
  • Развитая инфраструктура

Собственник сдает в долгосрочную аренду офисное здание класса B+ площадью 969 кв. метров. .. подробнее

>

Виртуальный тур

Презентация по предложению

Собираете информацию? Получите подробную презентацию в удобном формате!

Посмотреть все похожие предложения
Отнеситесь рационально к процессу поиска нового офиса!

Просто ответьте на 3 вопроса, и наши специалисты сами предложат оптимальные варианты под ваш бюджет