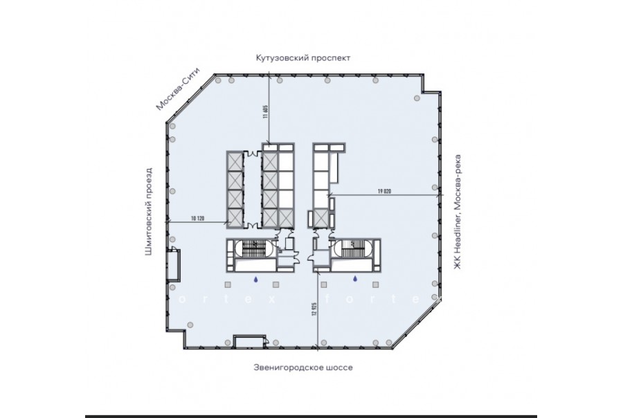
Продажа офиса 1796 м²
Москва, Шмитовский проезд, 37
Хотите узнать больше о предложении?
Изучите предложение в подробной презентации и делитесь с коллегам для обсуждения! Введите Ваши данные, мы пришлем ее в течение нескольких минут!
Презентация по предложению
Собираете информацию? Получите подробную презентацию в удобном формате!
Описание
- Класс А
- Пешком от метро
- Новое строительство
- Кондиционирование и вентиляция
Помещение можно адаптировать под любой бизнес благодаря функциональной планировке - идеальный баланс комфорта и экономической выгоды. Оптимальное решение для стабильного бизнеса или выгодных инвестиций.
Офис класса А:
- Офис в состоянии shell & core
- Вентиляция: Приточно-вытяжная вентиляция
- Кондиционирование: сплит-системы
О офисном центре:
Москва, ЦАО, Шмитовский проезд, 37
Удобная локация здания:
- Автомобиль: близость транспортных магистралей, таких как Звенигородское шоссе, Кутузовский проспект, Третье Транспортное Кольцо и других.
- Возможность аренды парковочных мест.
- Ближайшее метро: от метро "Шелепиха" всего 8 мин пешком
Если данное предложение подходит Вашему запросу:
1. Мы подготовили презентацию с информацией о помещении, фотографиями и планировкой, чтобы Вы могли поделиться ей с коллегами или руководством. Попросите об этом нашего менеджера по телефону в объявлении.
2. Мы готовы ответить на любые Ваши вопросы о помещении и коммерческих условиях продажи.
Звоните нам в любое время. По будням мы сможем ответить на Ваши вопросы до 19:00. В выходные или вечернее время мы передадим Ваш контакт нашему менеджеру.
О бизнес-центре
Расположение
Подробная презентацию по предложению
Собираете информацию? Получите подробную презентацию в удобном формате, чтобы обсудить вариант с коллегами или переслать руководству!
Похожие предложения в других зданиях
Москва, Мантулинская улица, 9 к6
- Класс А
- Пешком от метро
- Новое строительство
- Кондиционирование и вентиляция
- Свой паркинг
В продаже офисный блок общей площадью 576 квадратных метров в жилом комплексе "City Park". .. подробнее
Презентация по предложению
Собираете информацию? Получите подробную презентацию в удобном формате!
Хотите узнать больше о предложении?
Изучите предложение в подробной презентации и делитесь с коллегам для обсуждения! Введите Ваши данные, мы пришлем ее в течение нескольких минут!
Москва, Пресненская набережная, 12
- Класс А
- Пешком от метро
- Кондиционирование и вентиляция
- Свой паркинг
- Развитая инфраструктура
Продается офис общей площадью 2350 кв.м в бизнес-центре "Башня Федерация". .. подробнее
Презентация по предложению
Собираете информацию? Получите подробную презентацию в удобном формате!
Хотите узнать больше о предложении?
Изучите предложение в подробной презентации и делитесь с коллегам для обсуждения! Введите Ваши данные, мы пришлем ее в течение нескольких минут!
Москва, Пресненская набережная, 12
- Класс А
- Пешком от метро
- Кондиционирование и вентиляция
- Свой паркинг
- Развитая инфраструктура
В продаже офисный блок площадью 350 квадратных метров в бизнес-центре "Башня Федерация". .. подробнее
Презентация по предложению
Собираете информацию? Получите подробную презентацию в удобном формате!
Хотите узнать больше о предложении?
Изучите предложение в подробной презентации и делитесь с коллегам для обсуждения! Введите Ваши данные, мы пришлем ее в течение нескольких минут!
Москва, Пресненская набережная, 12
- Класс А
- Пешком от метро
- Кондиционирование и вентиляция
- Свой паркинг
- Развитая инфраструктура
В продаже офис площадью 480 кв. метров в бизнес-центре "Башня Федерация". .. подробнее
Презентация по предложению
Собираете информацию? Получите подробную презентацию в удобном формате!
Хотите узнать больше о предложении?
Изучите предложение в подробной презентации и делитесь с коллегам для обсуждения! Введите Ваши данные, мы пришлем ее в течение нескольких минут!
Москва, Пресненская набережная, 12
- Класс А
- Пешком от метро
- Кондиционирование и вентиляция
- Свой паркинг
- Развитая инфраструктура
Продается офисный блок площадью 285 кв.м в бизнес-центре "Башня Федерация". .. подробнее
Презентация по предложению
Собираете информацию? Получите подробную презентацию в удобном формате!
Хотите узнать больше о предложении?
Изучите предложение в подробной презентации и делитесь с коллегам для обсуждения! Введите Ваши данные, мы пришлем ее в течение нескольких минут!
 
                        Просто ответьте на 3 вопроса, и наши специалисты сами предложат оптимальные варианты под ваш бюджет
 
									
										 
									
										 
									
										 
																
						 
									
										 
									
										 
									
										 
									
										 
									
										 
									
										 
																
						 
									
										 
									
										 
									
										 
									
										 
									
										 
									
										 
																
						 
									
										 
									
										 
									
										 
									
										 
									
										 
									
										 
									
										 
									
										 
									
										 
									
										 
																
						 
    