8.2
Смотреть все фото
БЕЗ КОМИССИИ ID: 457518 Рейтинг9.3 КлассА
Бизнес-центр «iCity»

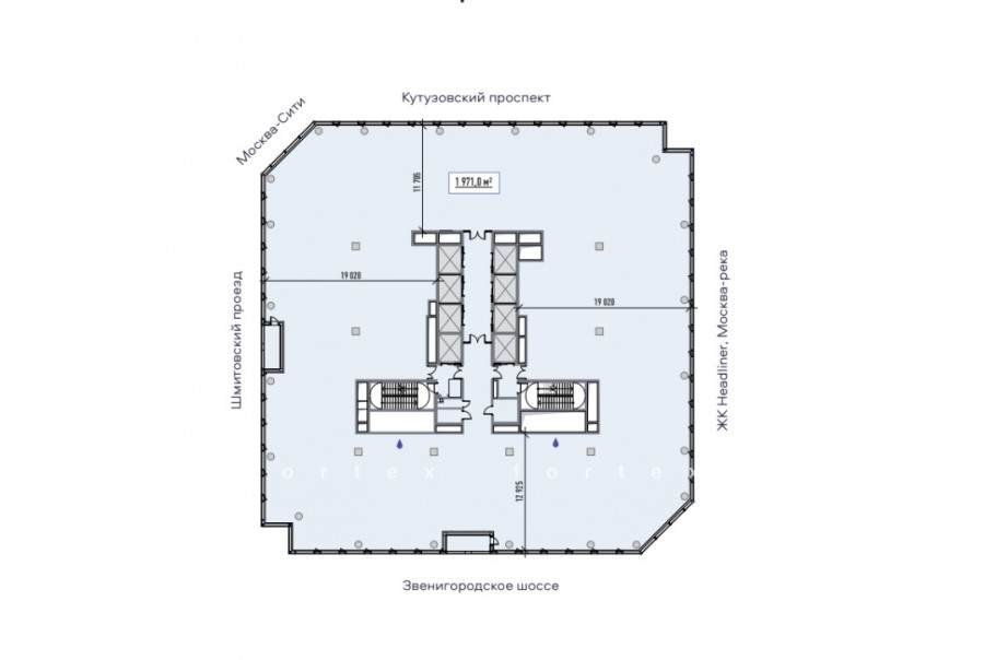
Продажа офиса 1975 м²

Москва, Шмитовский проезд, 37

Шелепиха → 840 м
~ 8 мин
Стоимость 1.72 млрд ₽ 870 000 ₽/м²

Презентация по предложению

Собираете информацию? Получите подробную презентацию в удобном формате!

Площадь 1 975 м²
Состояние Под отделку
Планировка Открытая
Этаж 48

Описание

Преимущества
  • Класс А
  • Пешком от метро
  • Новое строительство
  • Кондиционирование и вентиляция
Продается офисное помещение площадью 1975 квадратных метров в бизнес-центре "iCity".

Помещение можно адаптировать под любой бизнес благодаря функциональной планировке - идеальный баланс комфорта и экономической выгоды. Оптимальное решение для стабильного бизнеса или выгодных инвестиций.

Офис класса А:
- Помещение без отделки
- Вентиляция: Приточно-вытяжная вентиляция
- Кондиционирование: сплит-системы

О офисном центре:
Москва, ЦАО, Шмитовский проезд, 37

Удобная локация здания:
- Автомобиль: близость транспортных магистралей, таких как Кутузовский проспект, Звенигородское шоссе, Третье Транспортное Кольцо и других.
- Возможность аренды парковочных мест.
- Ближайшее метро: от метро "Шелепиха" всего 8 мин пешком



Если предложение предварительно Вам подходит:

1. Мы подготовили презентацию с информацией о помещении, фотографиями и планировкой, чтобы Вы могли поделиться ей с коллегами или руководством. Попросите об этом нашего менеджера по телефону в объявлении.
2. Мы готовы ответить на любые Ваши вопросы о помещении и коммерческих условиях продажи.

Вы можете позвонить нам в любое время. Мы ответим на Ваши вопросы по будням до 19:00, а поздно вечером или в выходные сможем передать Ваш контакт нашему менеджеру.

О бизнес-центре

Класс А
Этажность 60
Лифты Есть
Общая площадь 175 000 м²
Год постройки 2023
Паркинг Наземный и подземный
Вентиляция приточно-вытяжная
Кондиционирование сплит-системы
Телекоммуникации Интернет/Телефония

Расположение

Подробная презентацию по предложению

Собираете информацию? Получите подробную презентацию в удобном формате, чтобы обсудить вариант с коллегами или переслать руководству!

Похожие предложения в других зданиях

БЕЗ КОМИССИИ ID: 1329493 Рейтинг8.5 КлассА

Москва, Шелепихинский тупик, 17/1

Шелепиха → 1.49 км
~ 15 мин
Стоимость 1 589 940 000 ₽ 876 000 ₽/м²
Характеристики 1 815 м² 51 этаж Под отделку
Преимущества
  • Класс А
  • Пешком от метро
  • Кондиционирование и вентиляция
  • Свой паркинг

В продаже офисный блок площадью 1815 квадратных метров в бизнес-центре "TOP TOWER". .. подробнее

Презентация по предложению

Собираете информацию? Получите подробную презентацию в удобном формате!

БЕЗ КОМИССИИ ID: 1329492 Рейтинг8.5 КлассА

Москва, Шелепихинский тупик, 17/1

Шелепиха → 1.49 км
~ 15 мин
Стоимость 1 544 660 000 ₽ 845 000 ₽/м²
Характеристики 1 828 м² 50 этаж Под отделку
Преимущества
  • Класс А
  • Пешком от метро
  • Кондиционирование и вентиляция
  • Свой паркинг

В продаже офисное помещение площадью 1828 кв. метров в бизнес-центре "TOP TOWER". .. подробнее

Презентация по предложению

Собираете информацию? Получите подробную презентацию в удобном формате!

БЕЗ КОМИССИИ ID: 1329491 Рейтинг8.5 КлассА

Москва, Шелепихинский тупик, 17/1

Шелепиха → 1.49 км
~ 15 мин
Стоимость 1 496 946 000 ₽ 814 000 ₽/м²
Характеристики 1 839 м² 49 этаж Под отделку
Преимущества
  • Класс А
  • Пешком от метро
  • Кондиционирование и вентиляция
  • Свой паркинг

Продается офисный блок площадью 1839 кв.м в бизнес-центре "TOP TOWER". .. подробнее

Презентация по предложению

Собираете информацию? Получите подробную презентацию в удобном формате!

БЕЗ КОМИССИИ ID: 1329490 Рейтинг8.5 КлассА

Москва, Шелепихинский тупик, 17/1

Шелепиха → 1.49 км
~ 15 мин
Стоимость 1 453 248 000 ₽ 783 000 ₽/м²
Характеристики 1 856 м² 48 этаж Под отделку
Преимущества
  • Класс А
  • Пешком от метро
  • Кондиционирование и вентиляция
  • Свой паркинг

В продаже офисный блок общей площадью 1856 кв.м в бизнес-центре "TOP TOWER". .. подробнее

Презентация по предложению

Собираете информацию? Получите подробную презентацию в удобном формате!

БЕЗ КОМИССИИ ID: 1329489 Рейтинг8.5 КлассА

Москва, Шелепихинский тупик, 17/1

Шелепиха → 1.49 км
~ 15 мин
Стоимость 1 408 496 000 ₽ 752 000 ₽/м²
Характеристики 1 873 м² 47 этаж Под отделку
Преимущества
  • Класс А
  • Пешком от метро
  • Кондиционирование и вентиляция
  • Свой паркинг

В продаже офис площадью 1873 кв.м в бизнес-центре "TOP TOWER". .. подробнее

Презентация по предложению

Собираете информацию? Получите подробную презентацию в удобном формате!

Посмотреть все похожие предложения
Отнеситесь рационально к процессу поиска нового офиса!

Просто ответьте на 3 вопроса, и наши специалисты сами предложат оптимальные варианты под ваш бюджет

.