8.2
Смотреть все фото
БЕЗ КОМИССИИ ID: 457511 Рейтинг9.1 КлассА
Бизнес-центр «iCity»

Продажа офиса 296 м²

Москва, Шмитовский проезд, 37

Шелепиха → 883 м
~ 9 мин
Стоимость 235.32 млн ₽ 795 000 ₽/м²

Презентация по предложению

Собираете информацию? Получите подробную презентацию в удобном формате!

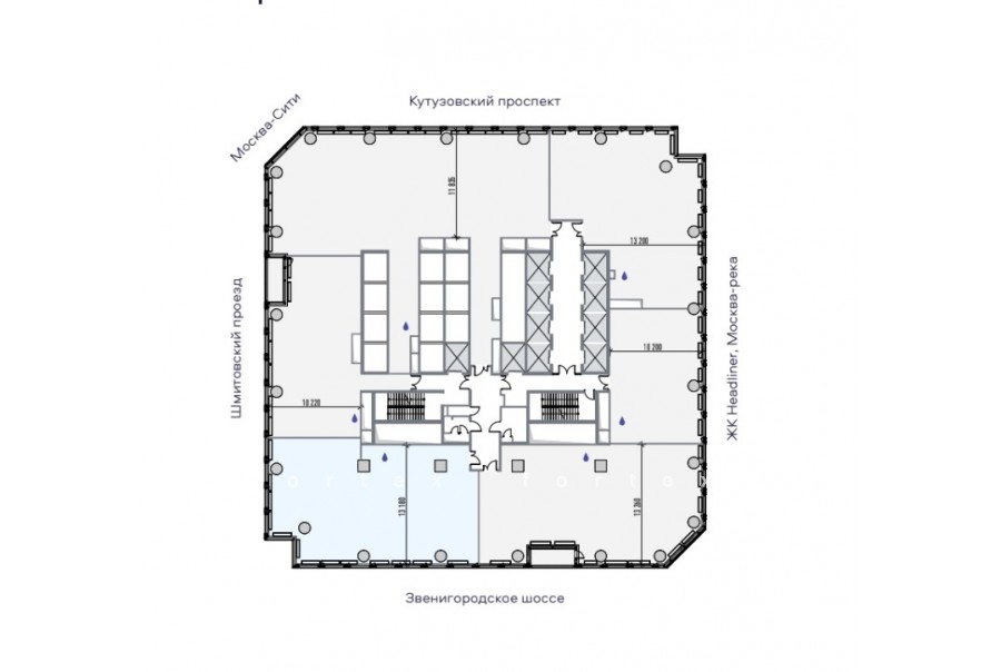
Площадь 296 м²
Состояние Под отделку
Планировка Открытая
Этаж 19

Описание

Преимущества
  • Класс А
  • Пешком от метро
  • Новое строительство
  • Кондиционирование и вентиляция
В продаже офисный блок общей площадью 296 квадратных метров в бизнес-центре "iCity".

Помещение можно адаптировать под любой бизнес благодаря функциональной планировке - идеальный баланс комфорта и экономической выгоды. Оптимальное решение для стабильного бизнеса или выгодных инвестиций.

Офис класса А:
- Помещение без отделки
- Вентиляция: Приточно-вытяжная вентиляция
- Кондиционирование: сплит-системы

О офисном центре:
Москва, ЦАО, Шмитовский проезд, 37

Удобная локация здания:
- Автомобиль: близость транспортных магистралей, таких как Звенигородское шоссе, Третье Транспортное Кольцо, Кутузовский проспект и других.
- Возможность аренды парковочных мест.
- Ближайшее метро: от метро "Шелепиха" всего 9 мин пешком



Что еще можно узнать о предложении:

1. Мы подготовили презентацию с информацией о помещении, фотографиями и планировкой, чтобы Вы могли поделиться ей с коллегами или руководством. Попросите об этом нашего менеджера по телефону в объявлении.
2. Ответим на любые Ваши вопросы, готовы обсуждать любые предложения по коммерческим условиям продажи помещения.

Звоните нам в любое время. По будням мы сможем ответить на Ваши вопросы до 19:00. В выходные или вечернее время мы передадим Ваш контакт нашему менеджеру.

О бизнес-центре

Класс А
Этажность 60
Лифты Есть
Общая площадь 175 000 м²
Год постройки 2023
Паркинг Наземный и подземный
Вентиляция приточно-вытяжная
Кондиционирование сплит-системы
Телекоммуникации Интернет/Телефония

Расположение

Подробная презентацию по предложению

Собираете информацию? Получите подробную презентацию в удобном формате, чтобы обсудить вариант с коллегами или переслать руководству!

Похожие предложения в других зданиях

БЕЗ КОМИССИИ ID: 1329493 Рейтинг8.5 КлассА

Москва, Шелепихинский тупик, 17/1

Шелепиха → 1.49 км
~ 15 мин
Стоимость 1 589 940 000 ₽ 876 000 ₽/м²
Характеристики 1 815 м² 51 этаж Под отделку
Преимущества
  • Класс А
  • Пешком от метро
  • Кондиционирование и вентиляция
  • Свой паркинг

Продается офис площадью 1815 квадратных метров в бизнес-центре "TOP TOWER". .. подробнее

Презентация по предложению

Собираете информацию? Получите подробную презентацию в удобном формате!

БЕЗ КОМИССИИ ID: 1329492 Рейтинг8.5 КлассА

Москва, Шелепихинский тупик, 17/1

Шелепиха → 1.49 км
~ 15 мин
Стоимость 1 544 660 000 ₽ 845 000 ₽/м²
Характеристики 1 828 м² 50 этаж Под отделку
Преимущества
  • Класс А
  • Пешком от метро
  • Кондиционирование и вентиляция
  • Свой паркинг

В продаже офисный блок общей площадью 1828 кв. метров в бизнес-центре "TOP TOWER". .. подробнее

Презентация по предложению

Собираете информацию? Получите подробную презентацию в удобном формате!

БЕЗ КОМИССИИ ID: 1329491 Рейтинг8.5 КлассА

Москва, Шелепихинский тупик, 17/1

Шелепиха → 1.49 км
~ 15 мин
Стоимость 1 496 946 000 ₽ 814 000 ₽/м²
Характеристики 1 839 м² 49 этаж Под отделку
Преимущества
  • Класс А
  • Пешком от метро
  • Кондиционирование и вентиляция
  • Свой паркинг

Продается офисное помещение общей площадью 1839 квадратных метров в бизнес-центре "TOP TOWER". .. подробнее

Презентация по предложению

Собираете информацию? Получите подробную презентацию в удобном формате!

БЕЗ КОМИССИИ ID: 1329490 Рейтинг8.5 КлассА

Москва, Шелепихинский тупик, 17/1

Шелепиха → 1.49 км
~ 15 мин
Стоимость 1 453 248 000 ₽ 783 000 ₽/м²
Характеристики 1 856 м² 48 этаж Под отделку
Преимущества
  • Класс А
  • Пешком от метро
  • Кондиционирование и вентиляция
  • Свой паркинг

В продаже офисный блок площадью 1856 квадратных метров в бизнес-центре "TOP TOWER". .. подробнее

Презентация по предложению

Собираете информацию? Получите подробную презентацию в удобном формате!

БЕЗ КОМИССИИ ID: 1329489 Рейтинг8.5 КлассА

Москва, Шелепихинский тупик, 17/1

Шелепиха → 1.49 км
~ 15 мин
Стоимость 1 408 496 000 ₽ 752 000 ₽/м²
Характеристики 1 873 м² 47 этаж Под отделку
Преимущества
  • Класс А
  • Пешком от метро
  • Кондиционирование и вентиляция
  • Свой паркинг

Продается офисное помещение общей площадью 1873 квадратных метров в бизнес-центре "TOP TOWER". .. подробнее

Презентация по предложению

Собираете информацию? Получите подробную презентацию в удобном формате!

Посмотреть все похожие предложения
Отнеситесь рационально к процессу поиска нового офиса!

Просто ответьте на 3 вопроса, и наши специалисты сами предложат оптимальные варианты под ваш бюджет

.