8.2
Смотреть все фото
БЕЗ КОМИССИИ ID: 237265 Рейтинг7.6 КлассB+

Москва, Потаповский переулок, 5 с2

Чистые пруды → 538 м
~ 5 мин
Арендная плата в месяц 513 000 ₽ 18 000 ₽/м² в год С учётом НДС

Презентация по предложению

Собираете информацию? Получите подробную презентацию в удобном формате!

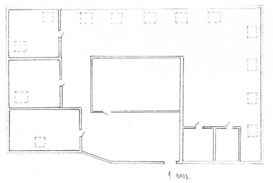
Площадь 342 м²
Состояние Готово к въезду
Планировка Смешанная
Этаж 4

Описание

Преимущества
  • Класс B+
  • Пешком от метро
  • Кондиционирование и вентиляция
  • Свой паркинг
  • Развитая инфраструктура
Предлагаем в прямую аренду помещение под офис класса B+ общей площадью 342 квадратных метров в историческом недавно отреконструированном бизнес-центре "Ильинские Ворота".

Москва, ЦАО, Потаповский переулок, 5 с2

Удобное расположение в пределах Садового кольца:
- Возможность аренды парковочных мест.
- Ближайшее метро: от метро "Чистые пруды" всего 5 мин пешком

Офис класса B+:
- Помещение с отделкой, готово к въезду
- Вентиляция: Приточно-вытяжная вентиляция
- Кондиционирование: центральное
- Развитая инфраструктура внутри здания


Что еще можно узнать о предложении:

1. Мы подготовили презентацию с информацией о помещении, фотографиями и планировкой, чтобы Вы могли поделиться ей с коллегами или руководством. Попросите об этом нашего менеджера по телефону в объявлении.
2. Задайте любые вопросы менеджеру по телефону, готовы обсуждать любые предложения по финансовым условиям договора аренды.
3. Оперативно организуем просмотр помещения, договоримся на любое удобное время, подготовим виртуальный тур.

Звоните нам в любое время. По будням мы сможем ответить на Ваши вопросы до 19:00. В выходные или вечернее время мы передадим Ваш контакт нашему менеджеру по аренде.

Коммерческие условия

Арендная плата 513 000 ₽
Ставка арендной платы 18 000 ₽ м²/год
Эксплуатационные расходы Включены в ставку
Налоги С учётом НДС
Тип договора Прямая аренда
Срок договора от 11 месяцев
Размер платежей 1 месяц
Обеспечительный платеж 1 месяц
Статус Сдан

О бизнес-центре

Класс B+
Этажность 5
Лифты Есть
Общая площадь 4 700 м²
Год постройки 1897
Паркинг Наземный
Вентиляция приточно-вытяжная
Кондиционирование центральное
Телекоммуникации Интернет/Телефония

Расположение

Подробная презентацию по предложению

Собираете информацию? Получите подробную презентацию в удобном формате, чтобы обсудить вариант с коллегами или переслать руководству!

Похожие предложения в других зданиях

БЕЗ КОМИССИИ ID: 168666 Рейтинг6.4 КлассB

Москва, Мясницкая улица, 24/7 с3

Сретенский бульвар → 382 м
~ 4 мин
Арендная плата в месяц 539 550 ₽ 19 800 ₽/м² в год С учётом НДС
Характеристики 327 м² 5 этаж Готово к въезду
Преимущества
  • Класс B
  • Пешком от метро
  • Кондиционирование и вентиляция
  • Свой паркинг
  • Развитая инфраструктура

Сдается в прямую аренду офис класса B площадью 327 квадр. метров в историческом бизнес-центре... подробнее

Презентация по предложению

Собираете информацию? Получите подробную презентацию в удобном формате!

ВОЗМОЖНО ОСВОБОЖДЕНИЕ ID: 149366 Рейтинг7.6 КлассB

Москва, Мясницкая улица, 22

Лубянка → 461 м
~ 5 мин
Арендная плата в месяц 601 667 ₽ 19 000 ₽/м² в год С учётом НДС
Характеристики 380 м² 5 этаж Готово к въезду
Преимущества
  • Класс B
  • Пешком от метро
  • Кондиционирование и вентиляция
  • Развитая инфраструктура

Предлагается в долгосрочную прямую аренду помещение под офис класса B общей площадью 380 кв. метров в бизнес-центре... подробнее

Презентация по предложению

Собираете информацию? Получите подробную презентацию в удобном формате!

БЕЗ КОМИССИИ ID: 265243 Рейтинг6.5 КлассB

Москва, Малый Златоустинский переулок, 6 с3

Китай-город → 452 м
~ 5 мин
Арендная плата в месяц 633 333 ₽ 20 000 ₽/м² в год С учётом НДС
Характеристики 380 м² -1 - 1 этаж Готово к въезду
Преимущества
  • Класс B
  • Пешком от метро
  • Кондиционирование и вентиляция

Собственник сдает в долгосрочную аренду офис класса B площадью 380 кв. метров в историческом бизнес-центре... подробнее

Презентация по предложению

Собираете информацию? Получите подробную презентацию в удобном формате!

БЕЗ КОМИССИИ ID: 279240 Рейтинг6.5 КлассB

Москва, Малый Златоустинский переулок, 6 с3

Китай-город → 452 м
~ 5 мин
Арендная плата в месяц 500 000 ₽ 20 000 ₽/м² в год С учётом НДС
Характеристики 300 м² -1 - 1 этаж Готово к въезду
Преимущества
  • Класс B
  • Пешком от метро
  • Кондиционирование и вентиляция

Предлагается в долгосрочную прямую аренду офисный блок класса B общей площадью 300 кв.м в историческом бизнес-центре... подробнее

Презентация по предложению

Собираете информацию? Получите подробную презентацию в удобном формате!

БЕЗ КОМИССИИ ID: 129518 Рейтинг5.9 КлассB

Москва, Кривоколенный переулок, 4 с3

Лубянка → 403 м
~ 4 мин
Арендная плата в месяц 508 333 ₽ 20 000 ₽/м² в год С учётом НДС
Характеристики 305 м² 1 этаж Готово к въезду
Преимущества
  • Класс B
  • Пешком от метро
  • Кондиционирование и вентиляция
  • Свой паркинг

Предлагается в прямую аренду офисное помещение класса B площадью 305 квадратных метров в бизнес-центре... подробнее

Презентация по предложению

Собираете информацию? Получите подробную презентацию в удобном формате!

Посмотреть все похожие предложения
Отнеситесь рационально к процессу поиска нового офиса!

Просто ответьте на 3 вопроса, и наши специалисты сами предложат оптимальные варианты под ваш бюджет

.