8.2
Смотреть все фото
ВОЗМОЖНО ОСВОБОЖДЕНИЕ ID: 124465 Рейтинг8.0 КлассB+

Москва, Вишнёвая улица, 9 к1

Тушинская → 1.01 км
~ 10 мин
Арендная плата в месяц по запросу потенциального арендатора Срок освобождение в течение 3 месяцев

Информация по помещению

Ознакомьтесь с дополнительной информацией по помещению и коммерческим условиям!

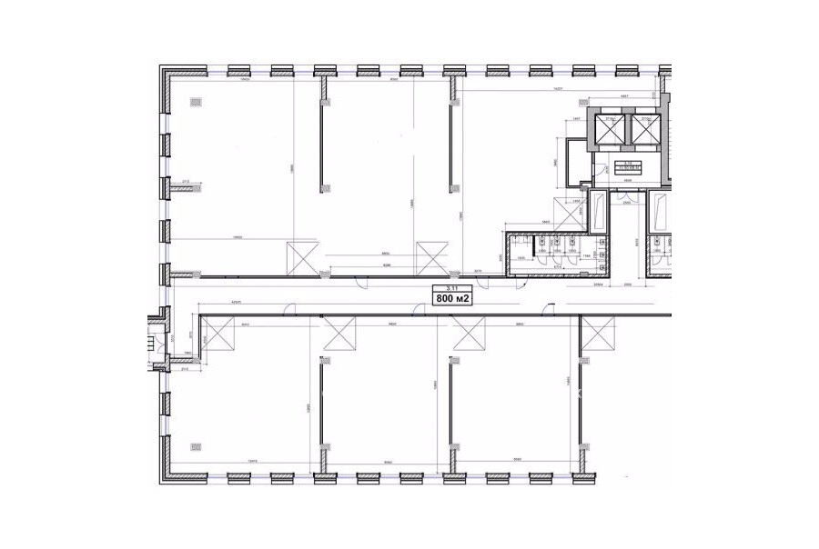
Площадь 800 м²
Планировка По запросу
Этаж 4

Описание

Преимущества
  • Класс B+
  • Пешком от метро
  • Кондиционирование и вентиляция
  • Свой паркинг
  • Несколько провайдеров связи

Коммерческие условия

Арендная плата по запросу
Ставка арендной платы по запросу
Эксплуатационные расходы Включены в ставку
Налоги С учётом НДС
Тип договора Прямая аренда
Срок договора от 11 месяцев
Размер платежей 1 месяц
Обеспечительный платеж 1 месяц
Статус Сдан

О бизнес-центре

Класс B+
Этажность 5
Лифты Есть
Общая площадь 10 000 м²
Год постройки 2015
Паркинг Наземный
Вентиляция приточно-вытяжная
Кондиционирование центральное
Телекоммуникации Интернет/Телефония

Расположение

Информация по помещению

Получите дополнительную информацию по помещению и коммерческом условиям!

Похожие предложения в других зданиях

БЕЗ КОМИССИИ ID: 49906 Рейтинг5.5 КлассB+

Москва, Походный проезд, 14 с5

Тушинская → 2.04 км
~ 20 мин
Арендная плата в месяц 1 614 292 ₽ 26 500 ₽/м² в год С учётом НДС
Характеристики 731 м² 6 этаж Готово к въезду
Преимущества
  • Класс B+
  • Пешком от метро
  • Кондиционирование и вентиляция
  • Свой паркинг
  • Несколько провайдеров связи

Сдается в долгосрочную аренду офисное помещение класса B+ общей площадью 731 квадратных метров в бизнес-центре "GS Тушино"... подробнее

Презентация по предложению

Собираете информацию? Получите подробную презентацию в удобном формате!

БЕЗ КОМИССИИ ID: 261497 Рейтинг7.8 КлассB+

Москва, Смольная улица, 14

Речной вокзал → 1.47 км
~ 15 мин
Арендная плата в месяц 1 817 667 ₽ 28 000 ₽/м² в год С учётом НДС
Характеристики 779 м² 10 этаж Готово к въезду
Преимущества
  • Класс B+
  • Пешком от метро
  • Кондиционирование и вентиляция
  • Свой паркинг
  • Развитая инфраструктура

Предлагаем в долгосрочную прямую аренду офис класса B+ площадью 779 кв. метров в недавно отреконструированном бизнес-центре "Смольный"... подробнее

Презентация по предложению

Собираете информацию? Получите подробную презентацию в удобном формате!

БЕЗ КОМИССИИ ID: 193456 Рейтинг7.6 КлассB+

Москва, Михалковская улица, 63Б с1

Коптево → 1.27 км
~ 13 мин
Арендная плата в месяц 1 911 000 ₽ 25 200 ₽/м² в год С учётом НДС
Характеристики 910 м² 10 этаж Готово к въезду
Преимущества
  • Класс B+
  • Пешком от метро
  • Кондиционирование и вентиляция
  • Свой паркинг

Сдаем в долгосрочную аренду офис класса B+ общей площадью 910 кв. метров в бизнес-центре "Головинские пруды"... подробнее

Презентация по предложению

Собираете информацию? Получите подробную презентацию в удобном формате!

БЕЗ КОМИССИИ ID: 1140885 Рейтинг7.6 КлассB+

Москва, Михалковская улица, 63Б с1

Коптево → 1.27 км
~ 13 мин
Арендная плата в месяц 1 890 000 ₽ 25 200 ₽/м² в год С учётом НДС
Характеристики 900 м² 10 этаж Готово к въезду
Преимущества
  • Класс B+
  • Пешком от метро
  • Кондиционирование и вентиляция
  • Свой паркинг

Собственник сдает в долгосрочную аренду офисный блок класса B+ общей площадью 900 кв. метров в бизнес-центре "Головинские пруды"... подробнее

Презентация по предложению

Собираете информацию? Получите подробную презентацию в удобном формате!

БЕЗ КОМИССИИ ID: 1310745 Рейтинг7.6 КлассB+

Москва, Смольная улица, 24Д

Речной вокзал → 1.31 км
~ 13 мин
Арендная плата в месяц 2 102 625 ₽ 31 500 ₽/м² в год С учётом НДС
Характеристики 801 м² 8 этаж Готово к въезду
Преимущества
  • Класс B+
  • Пешком от метро
  • Кондиционирование и вентиляция
  • Свой паркинг

Предлагается в долгосрочную прямую аренду офисное помещение класса B+ общей площадью 801 кв.м в бизнес-центре "Меридиан"... подробнее

Презентация по предложению

Собираете информацию? Получите подробную презентацию в удобном формате!

Посмотреть все похожие предложения
Отнеситесь рационально к процессу поиска нового офиса!

Просто ответьте на 3 вопроса, и наши специалисты сами предложат оптимальные варианты под ваш бюджет

.