8.2
Смотреть все фото
БЕЗ КОМИССИИ ID: 262632 Рейтинг8.6 КлассB+
Бизнес-центр «Интеграл»

Аренда офиса 3640 м²

Москва, проезд Завода Серп и Молот, 10

Авиамоторная → 1.03 км
~ 10 мин
Арендная плата в месяц 11 102 000 ₽ 36 600 ₽/м² в год С учётом НДС

Презентация по предложению

Собираете информацию? Получите подробную презентацию в удобном формате!

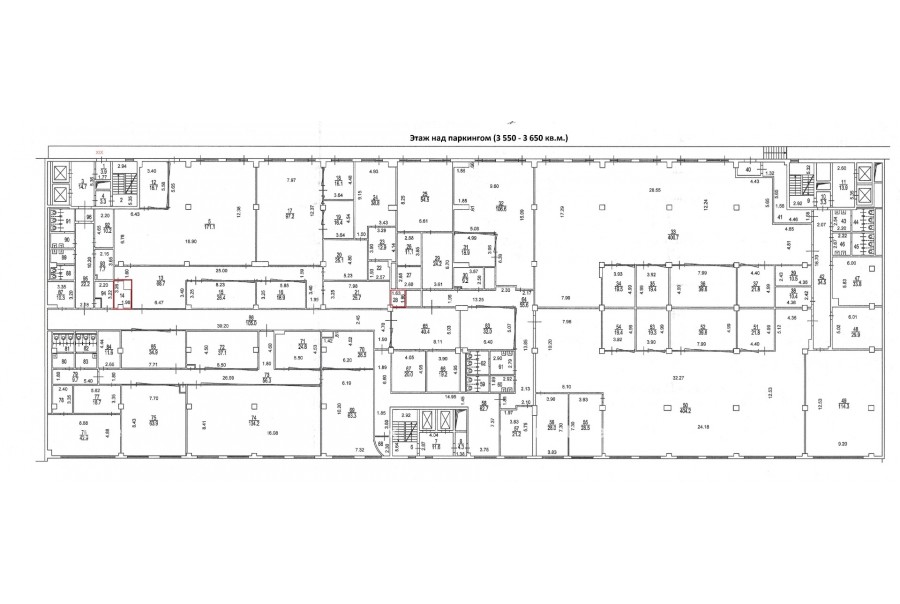
Площадь 3 640 м²
Состояние Готово к въезду
Планировка Смешанная
Этаж 6

Описание

Преимущества
  • Класс B+
  • Пешком от метро
  • Кондиционирование и вентиляция
  • Свой паркинг
  • Несколько провайдеров связи
  • Развитая инфраструктура
Сдается в долгосрочную прямую аренду офисный блок класса B+ площадью 3640 кв.м в бизнес-центре "Интеграл".

Москва, ЮВАО, проезд Завода Серп и Молот, 10

Удобная локация здания:
- Автомобиль: близость транспортных магистралей, таких как Шоссе Энтузиастов, Третье Транспортное Кольцо и других.
- Возможность аренды парковочных мест.
- Ближайшее метро: от метро "Авиамоторная" всего 10 мин пешком

Офис класса B+:
- Помещение готово к въезду
- Вентиляция: Приточно-вытяжная вентиляция
- Кондиционирование: центральное
- Презентабельный центральный ресепшн
- Круглосуточная охрана и видеонаблюдение
- Развитая инфраструктура внутри здания

Возможность заключения контракта в соответствии с 44ФЗ по госзакупкам.

Если предложение предварительно Вам подходит:

1. Мы подготовили презентацию с информацией о помещении, фотографиями и планировкой, чтобы Вы могли поделиться ей с коллегами или руководством. Попросите об этом нашего менеджера по телефону в объявлении.
2. Ответим на любые Ваши вопросы, готовы обсуждать любые предложения по коммерческим условиям аренды помещения.
3. Проводим показы ежедневно, договоримся на удобное для Вас время. Можем организовать виртуальный тур по офисному блоку.

Звоните нам в любое время. По будням мы сможем ответить на Ваши вопросы до 19:00. В выходные или вечернее время мы передадим Ваш контакт нашему менеджеру по аренде.

Коммерческие условия

Арендная плата 7 863 920 ₽
Ставка арендной платы 36 600 ₽ м²/год
Эксплуатационные расходы Включены в ставку
Налоги С учётом НДС
Тип договора Прямая аренда
Срок договора Долгосрочный
Размер платежей 1 месяц
Обеспечительный платеж 2 месяц
Статус Сдан

О бизнес-центре

Класс B+
Этажность 11
Лифты Есть
Общая площадь 73 800 м²
Год постройки 2010
Паркинг Наземный крытый
Вентиляция приточно-вытяжная
Кондиционирование центральное
Телекоммуникации Интернет/Телефония

Расположение

Подробная презентацию по предложению

Собираете информацию? Получите подробную презентацию в удобном формате, чтобы обсудить вариант с коллегами или переслать руководству!

Похожие предложения в других зданиях

БЕЗ КОМИССИИ ID: 447343 Рейтинг8.6 КлассB

Москва, улица Сергия Радонежского, 19 с3

Площадь Ильича → 285 м
~ 3 мин
Арендная плата в месяц 14 259 000 ₽ 42 000 ₽/м² в год С учётом НДС
Характеристики 4 074 м² 1 - 2 этаж Готово к въезду
Преимущества
  • Класс B
  • Пешком от метро
  • Кондиционирование и вентиляция
  • Свой паркинг

Сдаем в прямую аренду офисное помещение класса B площадью 4074 кв.м в бизнес-центре... подробнее

Презентация по предложению

Собираете информацию? Получите подробную презентацию в удобном формате!

БЕЗ КОМИССИИ ID: 222558 Рейтинг9.1 КлассА

Москва, Семёновская площадь, 1А

Семеновская → 153 м
~ 2 мин
Арендная плата в месяц 12 037 025 ₽ 40 700 ₽/м² в год С учётом НДС
Характеристики 3 549 м² 8 - 29 этаж Готово к въезду
Преимущества
  • Класс А
  • Пешком от метро
  • Кондиционирование и вентиляция
  • Свой паркинг
  • Развитая инфраструктура

Собственник сдает в прямую аренду офис класса А общей площадью 3549 квадратных метров в бизнес-центре "Соколиная Гора"... подробнее

Презентация по предложению

Собираете информацию? Получите подробную презентацию в удобном формате!

БЕЗ КОМИССИИ ID: 260638 Рейтинг8.6 КлассB+

Москва, проезд Завода Серп и Молот, 10

Авиамоторная → 1.03 км
~ 10 мин
Арендная плата в месяц 9 610 550 ₽ 36 600 ₽/м² в год С учётом НДС
Характеристики 3 151 м² 5 этаж Готово к въезду
Преимущества
  • Класс B+
  • Пешком от метро
  • Кондиционирование и вентиляция
  • Свой паркинг
  • Несколько провайдеров связи
  • Развитая инфраструктура

Сдается в долгосрочную аренду помещение под офис класса B+ общей площадью 3151 кв. метров в бизнес-центре "Интеграл"... подробнее

Презентация по предложению

Собираете информацию? Получите подробную презентацию в удобном формате!

Посмотреть все похожие предложения
Отнеситесь рационально к процессу поиска нового офиса!

Просто ответьте на 3 вопроса, и наши специалисты сами предложат оптимальные варианты под ваш бюджет

.