8.2

Виртуальный тур

Смотреть все фото
ВОЗМОЖНО ОСВОБОЖДЕНИЕ ID: 997691 Рейтинг6.9 КлассB
Бизнес-центр «Интерьер»

Аренда офиса 530 м²

Москва, 1-й Магистральный проезд, 11 с1

Хорошёвская → 1.89 км
~ 19 мин
Арендная плата в месяц по запросу потенциального арендатора Срок освобождение в течение 3 месяцев

Информация по помещению

Ознакомьтесь с дополнительной информацией по помещению и коммерческим условиям!

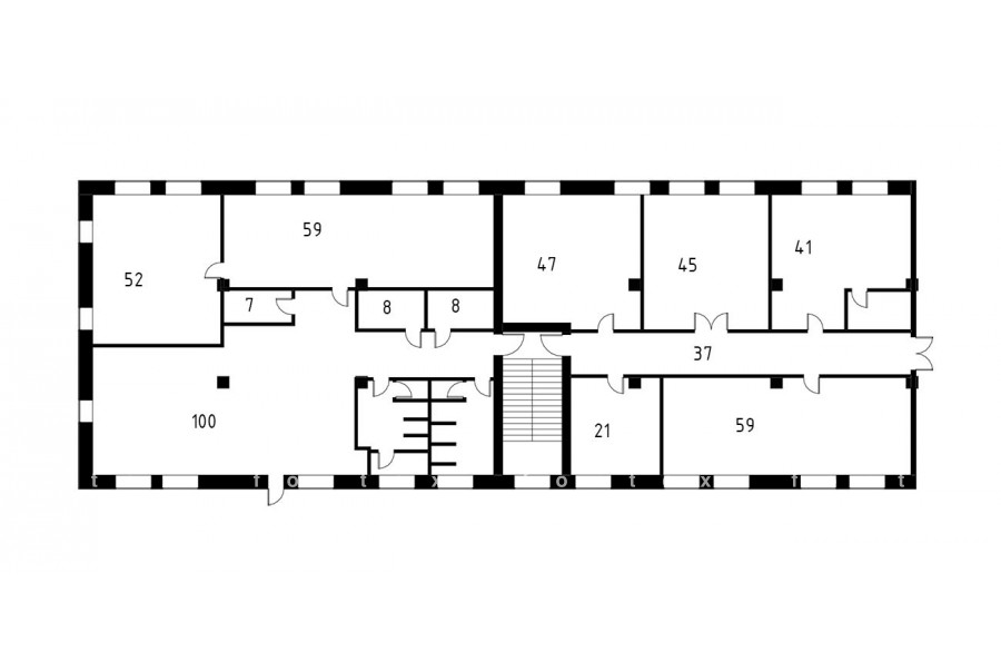
Площадь 530 м²
Планировка Смешанная
Этаж 2

Описание

Преимущества
  • Класс B
  • Пешком от метро
  • Кондиционирование и вентиляция
  • Свой паркинг

Коммерческие условия

Арендная плата по запросу
Ставка арендной платы по запросу
Эксплуатационные расходы Включены в ставку
Налоги С учётом НДС
Тип договора Прямая аренда
Срок договора от 11 месяцев
Размер платежей 1 месяц
Обеспечительный платеж 1,5 месяц
Статус Сдан

О бизнес-центре

Класс B
Этажность 5
Лифты Есть
Общая площадь 14 500 м²
Год постройки 2007
Паркинг Наземный
Вентиляция приточно-вытяжная
Кондиционирование сплит-системы
Телекоммуникации Интернет/Телефония

Расположение

Информация по помещению

Получите дополнительную информацию по помещению и коммерческом условиям!

Похожие предложения в других зданиях

БЕЗ КОМИССИИ ID: 1253289 Рейтинг4.8 КлассB

Москва, 1-я Магистральная улица, 13 с7

Беговая → 1.76 км
~ 18 мин
Арендная плата в месяц 1 092 000 ₽ 25 200 ₽/м² в год С учётом НДС
Характеристики 520 м² 3 этаж Готово к въезду
Преимущества
  • Класс B
  • Пешком от метро
  • Кондиционирование и вентиляция
  • Свой паркинг

Предлагаем в долгосрочную аренду офисный блок класса B площадью 520 квадратных метров в бизнес-центре... подробнее

>

Виртуальный тур

Презентация по предложению

Собираете информацию? Получите подробную презентацию в удобном формате!

БЕЗ КОМИССИИ ID: 1246042 Рейтинг8.5 КлассB+

Москва, 1-й Магистральный тупик, 5А

Беговая → 1.39 км
~ 14 мин
Арендная плата в месяц 1 027 816 ₽ 25 200 ₽/м² в год С учётом НДС
Характеристики 490 м² 5 этаж Готово к въезду
Преимущества
  • Класс B+
  • Пешком от метро
  • Кондиционирование и вентиляция

Предлагаем в долгосрочную прямую аренду офисный блок класса B+ общей площадью 490 квадратных метров в бизнес-центре "Магистраль Плаза"... подробнее

>

Виртуальный тур

Презентация по предложению

Собираете информацию? Получите подробную презентацию в удобном формате!

БЕЗ КОМИССИИ ID: 1312910 Рейтинг4.9 КлассB

Москва, 2-й Хорошёвский проезд, 7А

Беговая → 879 м
~ 9 мин
Арендная плата в месяц 1 150 800 ₽ 25 200 ₽/м² в год С учётом НДС
Характеристики 548 м² 1 - 4 этаж Готово к въезду
Преимущества
  • Класс B
  • Пешком от метро
  • Кондиционирование и вентиляция
  • Свой паркинг
  • Несколько провайдеров связи
  • Развитая инфраструктура

Предлагаем в долгосрочную аренду помещение под офис класса B площадью 548 квадр. метров в бизнес-центре "Красная Пресня"... подробнее

Презентация по предложению

Собираете информацию? Получите подробную презентацию в удобном формате!

БЕЗ КОМИССИИ ID: 1373197 Рейтинг5.2 КлассB

Москва, 4-я Магистральная улица, 5 с1

Хорошёвская → 405 м
~ 4 мин
Арендная плата в месяц 980 027 ₽ 24 400 ₽/м² в год С учётом НДС
Характеристики 482 м² 4 этаж Готово к въезду
Преимущества
  • Класс B
  • Пешком от метро
  • Кондиционирование и вентиляция
  • Свой паркинг
  • Развитая инфраструктура

Предлагаем в долгосрочную прямую аренду офисный блок класса B общей площадью 482 кв. метров в историческом бизнес-центре "На Магистральной"... подробнее

>

Виртуальный тур

Презентация по предложению

Собираете информацию? Получите подробную презентацию в удобном формате!

БЕЗ КОМИССИИ ID: 306096 Рейтинг7.1 КлассB+

Москва, Хорошёвское шоссе, 16 к1

Беговая → 156 м
~ 2 мин
Арендная плата в месяц 886 667 ₽ 19 000 ₽/м² в год С учётом НДС
Характеристики 560 м² 4 этаж Готово к въезду
Преимущества
  • Класс B+
  • Пешком от метро
  • Кондиционирование и вентиляция
  • Свой паркинг

Предлагается в долгосрочную прямую аренду офисный блок класса B+ площадью 560 кв. метров в бизнес-центре... подробнее

Презентация по предложению

Собираете информацию? Получите подробную презентацию в удобном формате!

Посмотреть все похожие предложения
Отнеситесь рационально к процессу поиска нового офиса!

Просто ответьте на 3 вопроса, и наши специалисты сами предложат оптимальные варианты под ваш бюджет

.