8.2
Смотреть все фото
БЕЗ КОМИССИИ ID: 1291548 Рейтинг5.7 КлассB

Москва, улица Ивана Франко, 4 к10

Кунцевская → 896 м
~ 9 мин
Арендная плата в месяц 1 486 200 ₽ 14 800 ₽/м² в год С учётом НДС

Презентация по предложению

Собираете информацию? Получите подробную презентацию в удобном формате!

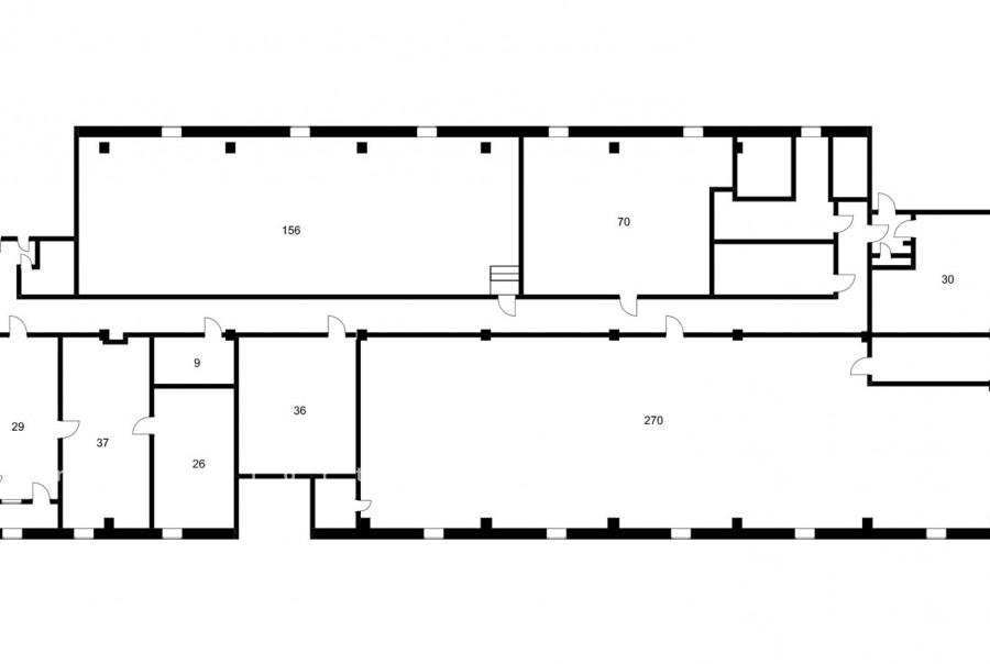
Площадь 1 201 м²
Состояние Готово к въезду
Планировка Смешанная
Этаж 7

Описание

Преимущества
  • Класс B
  • Пешком от метро
  • Кондиционирование и вентиляция
  • Свой паркинг
Сдаем в долгосрочную аренду офисный блок класса B общей площадью 1201 квадратных метров в бизнес-центре.

Москва, ЗАО, улица Ивана Франко, 4 к10

Удобная локация здания:
- Автомобиль: близость транспортных магистралей, таких как Кутузовский проспект, Рублевское шоссе, Можайское шоссе и других.
- Возможность аренды парковочных мест.
- Ближайшее метро: от метро "Кунцевская" всего 12 мин пешком

Офис класса B:
- Помещение готово к въезду
- Кондиционирование: центральное


Если предложение предварительно Вам подходит:

1. Мы подготовили презентацию с информацией о помещении, фотографиями и планировкой, чтобы Вы могли поделиться ей с коллегами или руководством. Попросите об этом нашего менеджера по телефону в объявлении.
2. Задайте любые вопросы менеджеру по телефону, готовы обсуждать любые предложения по финансовым условиям договора аренды.
3. Оперативно организуем просмотр помещения, договоримся на любое удобное время, подготовим виртуальный тур.

Звоните нам в любое время. По будням мы сможем ответить на Ваши вопросы до 19:00. В выходные или вечернее время мы передадим Ваш контакт нашему менеджеру по аренде.

Коммерческие условия

Арендная плата 1 351 130 ₽
Ставка арендной платы 14 800 ₽ м²/год
Эксплуатационные расходы Включены в ставку
Налоги С учётом НДС
Тип договора Прямая аренда
Срок договора от 11 месяцев
Размер платежей 1 месяц
Обеспечительный платеж 1 месяц
Статус Сдан

О бизнес-центре

Класс B
Этажность 13
Лифты Есть
Общая площадь 16 464 м²
Год постройки 1977
Паркинг Наземный
Вентиляция естественная
Кондиционирование центральное
Телекоммуникации Интернет/Телефония

Расположение

Подробная презентацию по предложению

Собираете информацию? Получите подробную презентацию в удобном формате, чтобы обсудить вариант с коллегами или переслать руководству!

Похожие предложения в других зданиях

БЕЗ КОМИССИИ ID: 72201 Рейтинг6.1 КлассB

Москва, Гродненская улица, 5а

Давыдково → 1.91 км
~ 19 мин
Арендная плата в месяц 1 283 333 ₽ 14 000 ₽/м² в год С учётом НДС
Характеристики 1 100 м² 1 - 2 этаж Готово к въезду
Преимущества
  • Класс B
  • Пешком от метро
  • Кондиционирование и вентиляция
  • Свой паркинг

Предлагается в долгосрочную аренду офис класса B общей площадью 1100 квадр. метров в бизнес-центре... подробнее

Презентация по предложению

Собираете информацию? Получите подробную презентацию в удобном формате!

БЕЗ КОМИССИИ ID: 277157 Рейтинг7.4 КлассB+

Москва, Верейская улица, 29 с154

Давыдково → 1.35 км
~ 14 мин
Арендная плата в месяц 1 642 500 ₽ 15 000 ₽/м² в год С учётом НДС
Характеристики 1 314 м² 3 этаж Готово к въезду
Преимущества
  • Класс B+
  • Пешком от метро
  • Кондиционирование и вентиляция
  • Свой паркинг
  • Развитая инфраструктура

Предлагаем в прямую аренду офис класса B+ площадью 1314 квадратных метров в бизнес-центре "Верейская Плаза I"... подробнее

Презентация по предложению

Собираете информацию? Получите подробную презентацию в удобном формате!

БЕЗ КОМИССИИ ID: 77188 Рейтинг5.0 КлассB

Москва, Дорогобужская улица, 14 к1

Кунцевская → 4.2 км
~ 16 мин
Арендная плата в месяц 1 275 750 ₽ 12 600 ₽/м² в год С учётом НДС
Характеристики 1 215 м² 2 - 3 этаж Готово к въезду
Преимущества
  • Класс B
  • Кондиционирование и вентиляция
  • Свой паркинг

Предлагаем в прямую аренду офисный блок класса B общей площадью 1215 квадр. метров в недавно отреконструированном бизнес-центре... подробнее

Презентация по предложению

Собираете информацию? Получите подробную презентацию в удобном формате!

БЕЗ КОМИССИИ ID: 9563 Рейтинг5.0 КлассB

Москва, Дорогобужская улица, 14 к1

Кунцевская → 4.2 км
~ 16 мин
Арендная плата в месяц 1 155 000 ₽ 12 600 ₽/м² в год С учётом НДС
Характеристики 1 100 м² 2 этаж Готово к въезду
Преимущества
  • Класс B
  • Кондиционирование и вентиляция
  • Свой паркинг

Собственник сдает в долгосрочную прямую аренду офисный блок класса B общей площадью 1100 кв. метров в недавно отреконструированном бизнес-центре... подробнее

Презентация по предложению

Собираете информацию? Получите подробную презентацию в удобном формате!

БЕЗ КОМИССИИ ID: 127189 Рейтинг5.4 КлассB

Москва, Молодогвардейская улица, 57

Молодежная → 1.21 км
~ 16 мин
Арендная плата в месяц 1 137 500 ₽ 13 000 ₽/м² в год С учётом НДС
Характеристики 1 050 м² 1 - 4 этаж Готово к въезду
Преимущества
  • Класс B
  • Пешком от метро
  • Кондиционирование и вентиляция
  • Свой паркинг
  • Развитая инфраструктура

Предлагаем в долгосрочную прямую аренду офисное помещение класса B общей площадью 1050 квадратных метров в недавно отреконструированном бизнес-центре... подробнее

Презентация по предложению

Собираете информацию? Получите подробную презентацию в удобном формате!

Посмотреть все похожие предложения
Отнеситесь рационально к процессу поиска нового офиса!

Просто ответьте на 3 вопроса, и наши специалисты сами предложат оптимальные варианты под ваш бюджет

.