8.2
Смотреть все фото
БЕЗ КОМИССИИ ID: 1314443 Рейтинг5.3 КлассB
Бизнес-центр «Каховка 31 к2»

Аренда офиса 508 м²

Москва, улица Каховка, 31 к2

Зюзино → 512 м
~ 5 мин
Арендная плата в месяц 1 008 000 ₽ 23 800 ₽/м² в год С учётом НДС

Презентация по предложению

Собираете информацию? Получите подробную презентацию в удобном формате!

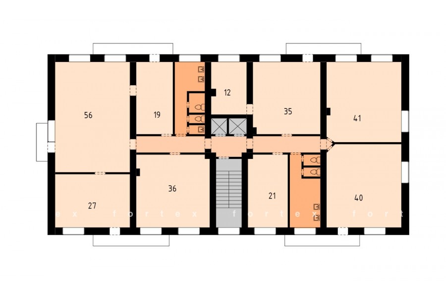
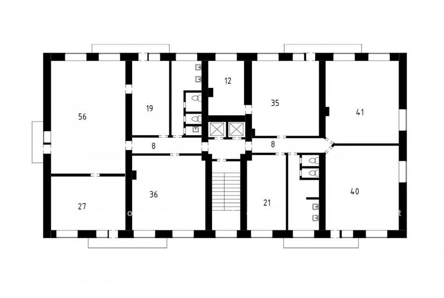
Площадь 508 м²
Состояние Готово к въезду
Планировка Смешанная
Этаж 11

Описание

Преимущества
  • Класс B
  • Пешком от метро
  • Кондиционирование и вентиляция
  • Несколько провайдеров связи
Сдается в прямую аренду офисный блок класса B площадью 666 квадр. метров в бизнес-центре.

Москва, ЮЗАО, улица Каховка, 31 к2

Удобное расположение здания для всех видов транспорта:
- Автомобиль: близость транспортных магистралей, таких как Профсоюзная улица, Севастопольский проспект и других.
- Ближайшее метро: от метро "Зюзино" всего 5 мин пешком

Офис класса B:
- Офис с отделкой, полностью готов к аренде
- Кондиционирование: сплит-системы


Если данное предложение подходит Вашему запросу:

1. Получите презентацию в течение 10 минут в Whatsapp или на почту с фотографиями и планировкой, чтобы обсудить данный вариант с коллегами или переслать руководству. Для этого позвоните по телефону, указанному в объявлении.
2. Мы готовы ответить на любые Ваши вопросы о помещении и коммерческих условиях аренды.
3. Проводим показы ежедневно, договоримся на удобное для Вас время. Можем организовать виртуальный тур по офисному блоку.

Вы можете позвонить нам в любое время. Мы ответим на Ваши вопросы по будням до 19:00, а поздно вечером или в выходные зафиксируем Ваш контакт и перезвоним в рабочее время.

Коммерческие условия

Арендная плата 1 008 000 ₽
Ставка арендной платы 23 800 ₽ м²/год
Эксплуатационные расходы Включены в ставку
Налоги С учётом НДС
Тип договора Прямая аренда
Срок договора от 11 месяцев
Размер платежей 1 месяц
Обеспечительный платеж 1 месяц
Статус Сдан

О бизнес-центре

Класс B
Этажность 12
Лифты Есть
Общая площадь 4 320 м²
Паркинг Стихийный
Вентиляция естественная
Кондиционирование сплит-системы
Телекоммуникации Интернет/Телефония

Расположение

Подробная презентацию по предложению

Собираете информацию? Получите подробную презентацию в удобном формате, чтобы обсудить вариант с коллегами или переслать руководству!

Похожие предложения в других зданиях

БЕЗ КОМИССИИ ID: 59545 Рейтинг4.5 КлассB

Москва, Новочерёмушкинская улица, 69

Новые Черемушки → 965 м
~ 10 мин
Арендная плата в месяц 916 667 ₽ 22 000 ₽/м² в год С учётом НДС
Характеристики 500 м² 7 этаж Готово к въезду
Преимущества
  • Класс B
  • Пешком от метро
  • Развитая инфраструктура

Предлагается в долгосрочную прямую аренду офис класса B площадью 500 квадратных метров в бизнес-центре... подробнее

Презентация по предложению

Собираете информацию? Получите подробную презентацию в удобном формате!

БЕЗ КОМИССИИ ID: 1328267 Рейтинг8.0 КлассB+

Москва, Научный проезд, 19

Калужская → 1.41 км
~ 14 мин
Арендная плата в месяц 1 024 991 ₽ 23 800 ₽/м² в год Упрощённая система налогообложения
Характеристики 516 м² 4 - 7 этаж Готово к въезду
Преимущества
  • Класс B+
  • Пешком от метро
  • Кондиционирование и вентиляция
  • Развитая инфраструктура

Предлагается в долгосрочную прямую аренду офис класса B+ общей площадью 516 квадр. метров в бизнес-центре "9 Акров"... подробнее

Презентация по предложению

Собираете информацию? Получите подробную презентацию в удобном формате!

БЕЗ КОМИССИИ ID: 1328268 Рейтинг8.0 КлассB+

Москва, Научный проезд, 19

Калужская → 1.41 км
~ 14 мин
Арендная плата в месяц 1 024 991 ₽ 23 800 ₽/м² в год Упрощённая система налогообложения
Характеристики 516 м² 4 - 7 этаж Готово к въезду
Преимущества
  • Класс B+
  • Пешком от метро
  • Кондиционирование и вентиляция
  • Развитая инфраструктура

Предлагаем в долгосрочную прямую аренду офисный блок класса B+ площадью 646 квадр. метров в бизнес-центре "9 Акров"... подробнее

Презентация по предложению

Собираете информацию? Получите подробную презентацию в удобном формате!

БЕЗ КОМИССИИ ID: 1376821 Рейтинг8.0 КлассB+

Москва, Научный проезд, 19

Калужская → 1.41 км
~ 14 мин
Арендная плата в месяц 894 325 ₽ 24 900 ₽/м² в год Упрощённая система налогообложения
Характеристики 431 м² 7 этаж Готово к въезду
Преимущества
  • Класс B+
  • Пешком от метро
  • Кондиционирование и вентиляция
  • Развитая инфраструктура

Предлагается в долгосрочную аренду офисный блок класса B+ общей площадью 431 квадратных метров в бизнес-центре "9 Акров"... подробнее

Презентация по предложению

Собираете информацию? Получите подробную презентацию в удобном формате!

БЕЗ КОМИССИИ ID: 1379726 Рейтинг8.0 КлассB+

Москва, улица Обручева, 52 с3

Зюзино → 1.46 км
~ 15 мин
Арендная плата в месяц 997 500 ₽ 21 000 ₽/м² в год С учётом НДС
Характеристики 570 м² 2 - 4 этаж Готово к въезду
Преимущества
  • Класс B+
  • Пешком от метро
  • Кондиционирование и вентиляция
  • Свой паркинг

Предлагаем в прямую аренду офисное помещение класса B+ общей площадью 570 кв.м в бизнес-центре "РТС Обручева"... подробнее

Презентация по предложению

Собираете информацию? Получите подробную презентацию в удобном формате!

Посмотреть все похожие предложения
Отнеситесь рационально к процессу поиска нового офиса!

Просто ответьте на 3 вопроса, и наши специалисты сами предложат оптимальные варианты под ваш бюджет

.