8.2
Смотреть все фото
БЕЗ КОМИССИИ ID: 488108 Рейтинг9.0 КлассА
Бизнес-центр «Калибр-Парк»

Аренда офиса 1318 м²

Москва, улица Годовикова, 9 с17

Алексеевская → 681 м
~ 7 мин
Арендная плата в месяц 2 251 600 ₽ 20 500 ₽/м² в год С учётом НДС

Презентация по предложению

Собираете информацию? Получите подробную презентацию в удобном формате!

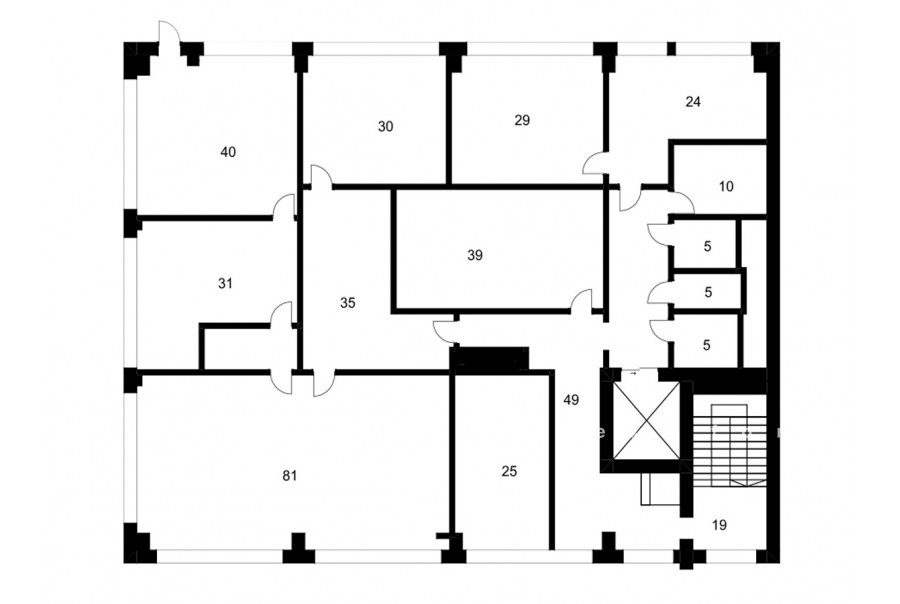
Площадь 1 318 м²
Состояние Готово к въезду
Планировка Смешанная
Этаж 1 - 4

Описание

Преимущества
  • Класс А
  • Пешком от метро
  • Новое строительство
  • Кондиционирование и вентиляция
Предлагается в долгосрочную аренду офисное помещение класса А общей площадью 1318 кв.м в новом бизнес-центре "Калибр-Парк".

Москва, СВАО, улица Годовикова, 9 с17

Удобная локация здания:
- Автомобиль: близость транспортных магистралей, таких как Третье Транспортное Кольцо, Проспект Мира и других.
- Возможность аренды парковочных мест.
- Ближайшее метро: от метро "Алексеевская" всего 10 мин пешком

Офис класса А:
- Офис с отделкой, полностью готов к аренде
- Вентиляция: Приточно-вытяжная вентиляция
- Кондиционирование: центральное

Возможность заключения контракта в соответствии с 44ФЗ по госзакупкам.

Что еще можно узнать о предложении:

1. Мы подготовили презентацию с информацией о помещении, фотографиями и планировкой, чтобы Вы могли поделиться ей с коллегами или руководством. Попросите об этом нашего менеджера по телефону в объявлении.
2. Ответим на любые Ваши вопросы, готовы обсуждать любые предложения по коммерческим условиям аренды помещения.
3. Оперативно организуем просмотр помещения с менеджерами на объекте или подготовим виртуальный тур.

Звоните нам в любое время. По будням мы сможем ответить на Ваши вопросы до 19:00. В выходные или вечернее время мы передадим Ваш контакт нашему менеджеру по аренде.

Коммерческие условия

Арендная плата 2 746 930 ₽
Ставка арендной платы 20 500 ₽ м²/год
Эксплуатационные расходы Включены в ставку
Налоги С учётом НДС
Тип договора Прямая аренда
Срок договора Долгосрочный
Размер платежей 1 месяц
Обеспечительный платеж 2 месяц
Статус Сдан

О бизнес-центре

Класс А
Этажность 9
Лифты Есть
Общая площадь 37 100 м²
Год постройки 2019
Паркинг Наземный и подземный
Вентиляция приточно-вытяжная
Кондиционирование центральное
Телекоммуникации Интернет/Телефония

Расположение

Подробная презентацию по предложению

Собираете информацию? Получите подробную презентацию в удобном формате, чтобы обсудить вариант с коллегами или переслать руководству!

Похожие предложения в других зданиях

БЕЗ КОМИССИИ ID: 1379075 Рейтинг7.6 КлассB

Москва, улица Годовикова, 9 с1

Алексеевская → 959 м
~ 10 мин
Арендная плата в месяц 2 411 911 ₽ 22 400 ₽/м² в год С учётом НДС
Характеристики 1 291 м² 1 - 6 этаж Готово к въезду
Преимущества
  • Класс B
  • Пешком от метро
  • Кондиционирование и вентиляция
  • Свой паркинг
  • Несколько провайдеров связи
  • Развитая инфраструктура

Предлагается в долгосрочную прямую аренду офисный блок класса B площадью 1291 квадратных метров в недавно отреконструированном бизнес-центре "Калибр"... подробнее

Презентация по предложению

Собираете информацию? Получите подробную презентацию в удобном формате!

БЕЗ КОМИССИИ ID: 220047 Рейтинг7.2 КлассB

Москва, проспект Мира, 95 с1

Алексеевская → 180 м
~ 2 мин
Арендная плата в месяц 1 950 000 ₽ 18 000 ₽/м² в год С учётом НДС
Характеристики 1 300 м² 14 - 15 этаж Готово к въезду
Преимущества
  • Класс B
  • Пешком от метро
  • Кондиционирование и вентиляция
  • Развитая инфраструктура

Собственник сдает в долгосрочную прямую аренду офисный блок класса B площадью 1300 квадр. метров в бизнес-центре... подробнее

Презентация по предложению

Собираете информацию? Получите подробную презентацию в удобном формате!

БЕЗ КОМИССИИ ID: 250794 Рейтинг6.3 КлассB

Москва, проезд Ольминского, 3a c3

Алексеевская → 860 м
~ 9 мин
Арендная плата в месяц 2 080 833 ₽ 22 000 ₽/м² в год С учётом НДС
Характеристики 1 135 м² 5 этаж Готово к въезду
Преимущества
  • Класс B
  • Пешком от метро
  • Кондиционирование и вентиляция
  • Свой паркинг

Предлагаем в долгосрочную прямую аренду помещение под офис класса B общей площадью 1135 кв.м в бизнес-центре... подробнее

Презентация по предложению

Собираете информацию? Получите подробную презентацию в удобном формате!

БЕЗ КОМИССИИ ID: 126974 Рейтинг7.8 КлассB+

Москва, Зубарев переулок, 15 к1

Алексеевская → 644 м
~ 6 мин
Арендная плата в месяц 1 827 167 ₽ 19 000 ₽/м² в год С учётом НДС
Характеристики 1 154 м² 6 этаж Готово к въезду
Преимущества
  • Класс B+
  • Пешком от метро
  • Кондиционирование и вентиляция
  • Свой паркинг
  • Несколько провайдеров связи
  • Развитая инфраструктура

Предлагаем в долгосрочную прямую аренду офисный блок класса B+ общей площадью 1154 квадр. метров в бизнес-центре "Чайка Плаза 1"... подробнее

Презентация по предложению

Собираете информацию? Получите подробную презентацию в удобном формате!

БЕЗ КОМИССИИ ID: 164766 Рейтинг8.3 КлассB+

Москва, проспект Мира, 102 к2

Алексеевская → 741 м
~ 7 мин
Арендная плата в месяц 1 994 750 ₽ 20 200 ₽/м² в год С учётом НДС
Характеристики 1 185 м² 0 - 4 этаж Под отделку
Преимущества
  • Класс B+
  • Пешком от метро
  • Кондиционирование и вентиляция
  • Свой паркинг
  • Несколько провайдеров связи

Предлагаем в долгосрочную прямую аренду офисный блок класса B+ площадью 1185 кв.м в историческом недавно отреконструированном бизнес-центре "Парк Мира"... подробнее

Презентация по предложению

Собираете информацию? Получите подробную презентацию в удобном формате!

Посмотреть все похожие предложения
Отнеситесь рационально к процессу поиска нового офиса!

Просто ответьте на 3 вопроса, и наши специалисты сами предложат оптимальные варианты под ваш бюджет

.