8.2
Смотреть все фото
БЕЗ КОМИССИИ ID: 176487 Рейтинг8.4 КлассB+
Бизнес-центр «Капельский 5»

Аренда офиса 2274 м²

Москва, Капельский переулок, 5

Проспект Мира → 490 м
~ 5 мин
Арендная плата в месяц 4 737 500 ₽ 25 000 ₽/м² в год С учётом НДС

Презентация по предложению

Собираете информацию? Получите подробную презентацию в удобном формате!

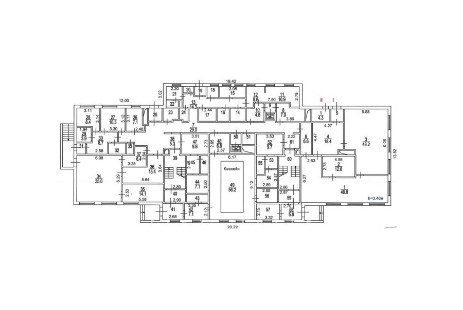
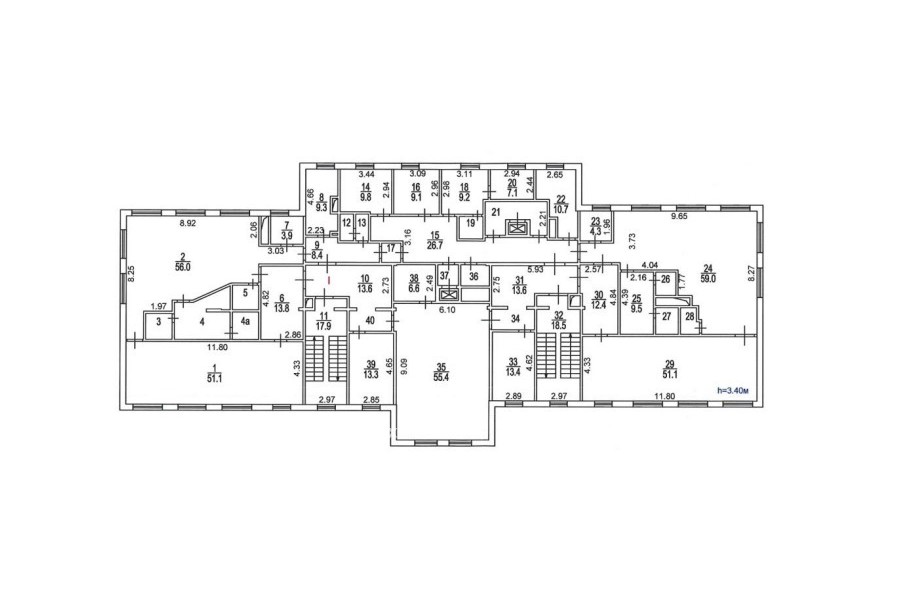
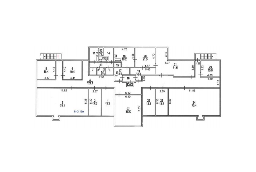
Площадь 2 274 м²
Состояние Под отделку
Планировка Смешанная
Этаж -1 - 3

Описание

Преимущества
  • Класс B+
  • Пешком от метро
  • Кондиционирование и вентиляция
  • Свой паркинг
Собственник сдает в долгосрочную аренду офис класса B+ площадью 2274 квадратных метров в недавно отреконструированном бизнес-центре.

Москва, ЦАО, Капельский переулок, 5

Удобное расположение здания для всех видов транспорта:
- Автомобиль: близость транспортных магистралей, таких как Третье Транспортное Кольцо, Проспект Мира и других.
- Возможность аренды парковочных мест.
- Ближайшее метро: от метро "Проспект Мира" всего 7 мин пешком

Офис класса B+:
- Офис в состоянии shell & core
- Вентиляция: Приточно-вытяжная вентиляция
- Кондиционирование: центральное

Возможность заключения контракта в соответствии с 44ФЗ по госзакупкам.

Что еще можно узнать о предложении:

1. Мы подготовили презентацию с информацией о помещении, фотографиями и планировкой, чтобы Вы могли поделиться ей с коллегами или руководством. Попросите об этом нашего менеджера по телефону в объявлении.
2. Ответим на любые Ваши вопросы, готовы обсуждать любые предложения по коммерческим условиям аренды помещения.
3. Покажем помещение в удобное для Вас время с менеджером в здании, при необходимости подготовим виртуальный тур.

Звоните нам в любое время. По будням мы сможем ответить на Ваши вопросы до 19:00. В выходные или вечернее время мы передадим Ваш контакт нашему менеджеру по аренде.

Коммерческие условия

Арендная плата 4 737 500 ₽
Ставка арендной платы 25 000 ₽ м²/год
Эксплуатационные расходы Включены в ставку
Налоги С учётом НДС
Тип договора Прямая аренда
Срок договора от 11 месяцев
Размер платежей 1 месяц
Обеспечительный платеж 1 месяц
Статус Сдан

О бизнес-центре

Класс B+
Этажность 4
Лифты Есть
Общая площадь 2 430 м²
Паркинг Наземный
Вентиляция приточно-вытяжная
Кондиционирование центральное
Телекоммуникации Интернет/Телефония

Расположение

Подробная презентацию по предложению

Собираете информацию? Получите подробную презентацию в удобном формате, чтобы обсудить вариант с коллегами или переслать руководству!

Похожие предложения в других зданиях

БЕЗ КОМИССИИ ID: 8523 Рейтинг8.8 КлассА

Москва, Олимпийский проспект, 16 с5

Проспект Мира → 886 м
~ 9 мин
Арендная плата в месяц 5 625 000 ₽ 27 000 ₽/м² в год С учётом НДС
Характеристики 2 500 м² 5 этаж Под отделку
Преимущества
  • Класс А
  • Пешком от метро
  • Кондиционирование и вентиляция
  • Свой паркинг
  • Развитая инфраструктура

Сдается в долгосрочную аренду офисный блок класса А площадью 2500 квадр. метров в бизнес-центре "Олимпик Холл"... подробнее

Презентация по предложению

Собираете информацию? Получите подробную презентацию в удобном формате!

БЕЗ КОМИССИИ ID: 48094 Рейтинг8.8 КлассА

Москва, Олимпийский проспект, 16 с5

Проспект Мира → 886 м
~ 9 мин
Арендная плата в месяц 4 520 250 ₽ 27 000 ₽/м² в год С учётом НДС
Характеристики 2 009 м² 3 этаж Под отделку
Преимущества
  • Класс А
  • Пешком от метро
  • Кондиционирование и вентиляция
  • Свой паркинг
  • Развитая инфраструктура

Сдаем в долгосрочную прямую аренду офисное помещение класса А площадью 2009 кв.м в бизнес-центре "Олимпик Холл"... подробнее

Презентация по предложению

Собираете информацию? Получите подробную презентацию в удобном формате!

БЕЗ КОМИССИИ ID: 19164 Рейтинг8.8 КлассА

Москва, Олимпийский проспект, 16 с5

Проспект Мира → 886 м
~ 9 мин
Арендная плата в месяц 4 500 000 ₽ 27 000 ₽/м² в год С учётом НДС
Характеристики 2 000 м² 5 этаж Под отделку
Преимущества
  • Класс А
  • Пешком от метро
  • Кондиционирование и вентиляция
  • Свой паркинг
  • Развитая инфраструктура

Предлагаем в прямую аренду офисное помещение класса А общей площадью 2000 кв.м в бизнес-центре "Олимпик Холл"... подробнее

Презентация по предложению

Собираете информацию? Получите подробную презентацию в удобном формате!

БЕЗ КОМИССИИ ID: 240548 Рейтинг8.1 КлассB

Москва, Банный переулок, 9

Проспект Мира → 820 м
~ 8 мин
Арендная плата в месяц 4 696 400 ₽ 23 600 ₽/м² в год С учётом НДС
Характеристики 2 388 м² 3 этаж Готово к въезду
Преимущества
  • Класс B
  • Пешком от метро
  • Кондиционирование и вентиляция
  • Свой паркинг

Сдается в долгосрочную аренду офисный блок класса B общей площадью 2388 квадратных метров в бизнес-центре... подробнее

Презентация по предложению

Собираете информацию? Получите подробную презентацию в удобном формате!

ВОЗМОЖНО ОСВОБОЖДЕНИЕ ID: 268004 Рейтинг8.1 КлассB

Москва, Банный переулок, 9

Проспект Мира → 820 м
~ 8 мин
Арендная плата в месяц 3 921 533 ₽ 23 600 ₽/м² в год С учётом НДС
Характеристики 1 994 м² 2 - 4 этаж Готово к въезду
Преимущества
  • Класс B
  • Пешком от метро
  • Кондиционирование и вентиляция
  • Свой паркинг

Сдаем в долгосрочную прямую аренду офисное помещение класса B общей площадью 1994 квадратных метров в бизнес-центре... подробнее

Презентация по предложению

Собираете информацию? Получите подробную презентацию в удобном формате!

Посмотреть все похожие предложения
Отнеситесь рационально к процессу поиска нового офиса!

Просто ответьте на 3 вопроса, и наши специалисты сами предложат оптимальные варианты под ваш бюджет

.