8.2

Виртуальный тур

Смотреть все фото
БЕЗ КОМИССИИ ID: 282829 Рейтинг8.3 КлассB+

Москва, Спасопесковский переулок, 7/1 с1

Смоленская → 411 м
~ 4 мин
Арендная плата в месяц 585 700 ₽ 33 000 ₽/м² в год С учётом НДС

Презентация по предложению

Собираете информацию? Получите подробную презентацию в удобном формате!

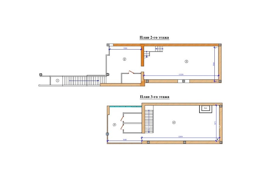
Площадь 213 м²
Состояние Готово к въезду
Планировка Смешанная
Этаж 2 - 3

Описание

Преимущества
  • Класс B+
  • Пешком от метро
  • Кондиционирование и вентиляция
  • Свой паркинг
  • Развитая инфраструктура
Предлагается в долгосрочную прямую аренду офисный блок класса B+ общей площадью 213 квадратных метров в бизнес-центре "Каракорум Плаза".

Москва, ЦАО, Спасопесковский переулок, 7 Удобное расположение в пределах Садового кольца:
- Возможность аренды парковочных мест.
- Ближайшее метро: от метро "Смоленская" всего 4 мин пешком

Офис класса B+:
- Офис с отделкой, полностью готов к аренде
- Вентиляция: Приточно-вытяжная вентиляция
- Кондиционирование: центральное
- Развитая инфраструктура внутри здания


Что еще можно узнать о предложении:

1. Мы подготовили презентацию с информацией о помещении, фотографиями и планировкой, чтобы Вы могли поделиться ей с коллегами или руководством. Попросите об этом нашего менеджера по телефону в объявлении.
2. Мы готовы ответить на любые Ваши вопросы о помещении и коммерческих условиях аренды.
3.

Вы можете позвонить нам в любое время. Мы ответим на Ваши вопросы по будням до 19:00, а поздно вечером или в выходные зафиксируем Ваш контакт и перезвоним в рабочее время.

Коммерческие условия

Арендная плата 585 750 ₽
Ставка арендной платы 33 000 ₽ м²/год
Эксплуатационные расходы Включены в ставку
Налоги С учётом НДС
Тип договора Прямая аренда
Срок договора от 11 месяцев
Размер платежей 1 месяц
Обеспечительный платеж 1 месяц
Статус Сдан

О бизнес-центре

Класс B+
Этажность 10
Лифты Есть
Общая площадь 2 400 м²
Год постройки 2003
Паркинг Наземный
Вентиляция приточно-вытяжная
Кондиционирование центральное
Телекоммуникации Интернет/Телефония

Расположение

Подробная презентацию по предложению

Собираете информацию? Получите подробную презентацию в удобном формате, чтобы обсудить вариант с коллегами или переслать руководству!

Похожие предложения в других зданиях

ВОЗМОЖНО ОСВОБОЖДЕНИЕ ID: 934969 Рейтинг8.4 КлассB

Москва, улица Арбат, 36/2 с6

Смоленская → 451 м
~ 5 мин
Арендная плата в месяц 600 000 ₽ 30 000 ₽/м² в год С учётом НДС
Характеристики 240 м² 3 этаж Готово к въезду
Преимущества
  • Класс B
  • Пешком от метро
  • Кондиционирование и вентиляция
  • Свой паркинг

Предлагается в долгосрочную прямую аренду помещение под офис класса B площадью 240 квадр. метров в бизнес-центре... подробнее

Презентация по предложению

Собираете информацию? Получите подробную презентацию в удобном формате!

БЕЗ КОМИССИИ ID: 176450 Рейтинг8.4 КлассB

Москва, улица Арбат, 36/2 с6

Смоленская → 451 м
~ 5 мин
Арендная плата в месяц 500 000 ₽ 30 000 ₽/м² в год С учётом НДС
Характеристики 200 м² 3 этаж Готово к въезду
Преимущества
  • Класс B
  • Пешком от метро
  • Кондиционирование и вентиляция
  • Свой паркинг

Сдается в долгосрочную прямую аренду офис класса B общей площадью 200 квадратных метров в бизнес-центре... подробнее

Презентация по предложению

Собираете информацию? Получите подробную презентацию в удобном формате!

БЕЗ КОМИССИИ ID: 1098310 Рейтинг7.1 КлассB+

Москва, улица Новый Арбат, 21

Смоленская → 668 м
~ 7 мин
Арендная плата в месяц 641 133 ₽ 32 600 ₽/м² в год С учётом НДС
Характеристики 236 м² 13 этаж Готово к въезду
Преимущества
  • Класс B+
  • Пешком от метро
  • Кондиционирование и вентиляция
  • Несколько провайдеров связи
  • Развитая инфраструктура

Сдается в прямую аренду офисное помещение класса B+ общей площадью 236 квадр. метров в недавно отреконструированном бизнес-центре "Новый Арбат"... подробнее

>

Виртуальный тур

Презентация по предложению

Собираете информацию? Получите подробную презентацию в удобном формате!

БЕЗ КОМИССИИ ID: 256231 Рейтинг7.1 КлассB+

Москва, улица Новый Арбат, 21

Смоленская → 668 м
~ 7 мин
Арендная плата в месяц 541 667 ₽ 32 500 ₽/м² в год С учётом НДС
Характеристики 200 м² 24 этаж Готово к въезду
Преимущества
  • Класс B+
  • Пешком от метро
  • Кондиционирование и вентиляция
  • Несколько провайдеров связи
  • Развитая инфраструктура

Предлагается в долгосрочную прямую аренду офисное помещение класса B+ общей площадью 200 квадр. метров в недавно отреконструированном бизнес-центре "Новый Арбат"... подробнее

Презентация по предложению

Собираете информацию? Получите подробную презентацию в удобном формате!

БЕЗ КОМИССИИ ID: 255432 Рейтинг8.2 КлассB+

Москва, переулок Сивцев Вражек, 25/9 с1

Смоленская → 739 м
~ 7 мин
Арендная плата в месяц 663 167 ₽ 34 600 ₽/м² в год С учётом НДС
Характеристики 230 м² 2 - 3 этаж Готово к въезду
Преимущества
  • Класс B+
  • Пешком от метро
  • Кондиционирование и вентиляция
  • Свой паркинг

Предлагается в долгосрочную прямую аренду офисное помещение класса B+ общей площадью 230 квадр. метров в бизнес-центре... подробнее

Презентация по предложению

Собираете информацию? Получите подробную презентацию в удобном формате!

Посмотреть все похожие предложения
Отнеситесь рационально к процессу поиска нового офиса!

Просто ответьте на 3 вопроса, и наши специалисты сами предложат оптимальные варианты под ваш бюджет

.