8.2

Виртуальный тур

Смотреть все фото
БЕЗ КОМИССИИ ID: 1212880 Рейтинг7.5 КлассB

Москва, Карамышевская набережная, 37

Народное ополчение → 1.16 км
~ 12 мин
Арендная плата в месяц 7 519 000 ₽ 19 800 ₽/м² в год С учётом НДС

Презентация по предложению

Собираете информацию? Получите подробную презентацию в удобном формате!

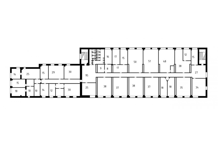
Площадь 4 557 м²
Состояние Готово к въезду
Планировка Смешанная
Этаж 1 - 3

Описание

Преимущества
  • Класс B
  • Пешком от метро
  • Кондиционирование и вентиляция
  • Свой паркинг
Собственник сдает в долгосрочную прямую аренду здание под офис класса B общей площадью 4557 квадратных метров.

Москва, СЗАО, Карамышевская набережная, 37

Удобная локация здания:
- Автомобиль: близость транспортных магистралей, таких как Проспект Маршала Жукова, Звенигородское шоссе и других.
- Возможность аренды парковочных мест.
- Ближайшее метро: от метро "Народное ополчение" всего 14 мин пешком

Офис класса B:
- Офис с отделкой, полностью готов к аренде
- Вентиляция: Приточно-вытяжная вентиляция
- Кондиционирование: сплит-системы

Возможность заключения контракта в соответствии с 44ФЗ по госзакупкам.

Если данное предложение подходит Вашему запросу:

1. Получите презентацию в течение 10 минут в Whatsapp или на почту с фотографиями и планировкой, чтобы обсудить данный вариант с коллегами или переслать руководству. Для этого позвоните по телефону, указанному в объявлении.
2. Мы готовы ответить на любые Ваши вопросы о помещении и коммерческих условиях аренды.
3. Оперативно организуем просмотр помещения, договоримся на любое удобное время, подготовим виртуальный тур.

Вы можете позвонить нам в любое время. Мы ответим на Ваши вопросы по будням до 19:00, а поздно вечером или в выходные сможем передать Ваш контакт нашему менеджеру.

Коммерческие условия

Арендная плата 6 835 500 ₽
Ставка арендной платы 19 800 ₽ м²/год
Эксплуатационные расходы Включены в ставку
Налоги С учётом НДС
Тип договора Прямая аренда
Срок договора от 11 месяцев
Размер платежей 1 месяц
Обеспечительный платеж 1 месяц
Статус Сдан

О бизнес-центре

Класс B
Этажность 3
Лифты Нет
Общая площадь 4 557 м²
Год постройки 1966
Паркинг Наземный
Вентиляция приточно-вытяжная
Кондиционирование сплит-системы
Телекоммуникации Интернет/Телефония

Расположение

Подробная презентацию по предложению

Собираете информацию? Получите подробную презентацию в удобном формате, чтобы обсудить вариант с коллегами или переслать руководству!

Похожие предложения в других зданиях

БЕЗ КОМИССИИ ID: 202754 Рейтинг6.2 КлассB

Москва, 2-й Хорошёвский проезд, 9 к2

Беговая → 927 м
~ 9 мин
Арендная плата в месяц 6 926 083 ₽ 17 000 ₽/м² в год С учётом НДС
Характеристики 4 889 м² 1 - 5 этаж Готово к въезду
Преимущества
  • Класс B
  • Пешком от метро
  • Кондиционирование и вентиляция
  • Свой паркинг

Сдается в прямую аренду помещение под офис класса B площадью 4889 кв.м в историческом недавно отреконструированном бизнес-центре "Вика-Центр"... подробнее

Презентация по предложению

Собираете информацию? Получите подробную презентацию в удобном формате!

Посмотреть все похожие предложения
Отнеситесь рационально к процессу поиска нового офиса!

Просто ответьте на 3 вопроса, и наши специалисты сами предложат оптимальные варианты под ваш бюджет

.