8.2
Смотреть все фото
БЕЗ КОМИССИИ ID: 126888 Рейтинг5.9 КлассB

Москва, улица Касаткина, 11 с1

ВДНХ → 1.71 км
~ 17 мин
Арендная плата в месяц 610 000 ₽ 10 000 ₽/м² в год С учётом НДС

Презентация по предложению

Собираете информацию? Получите подробную презентацию в удобном формате!

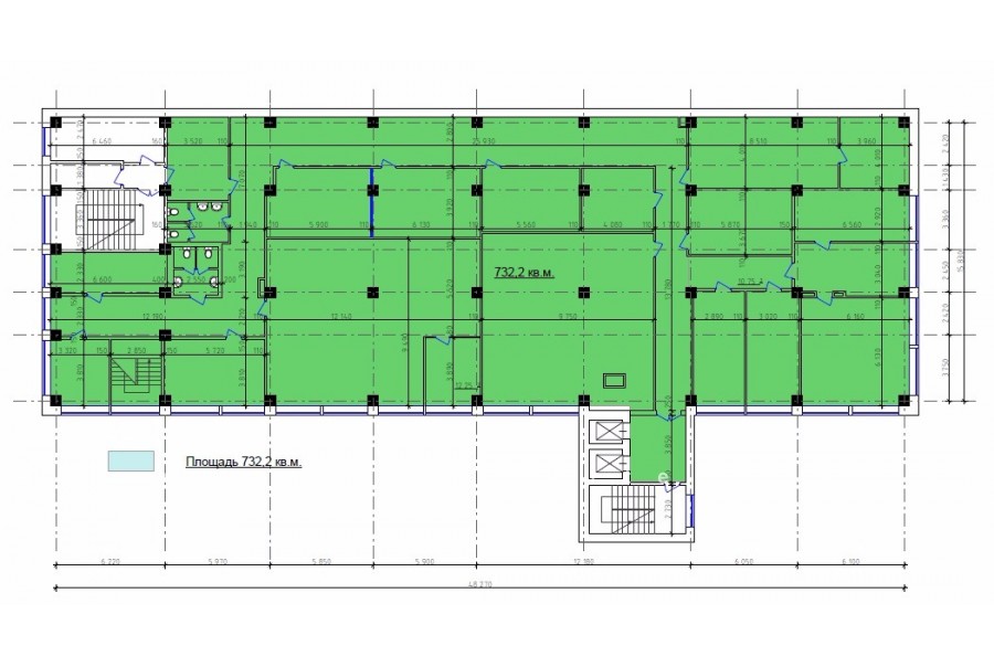
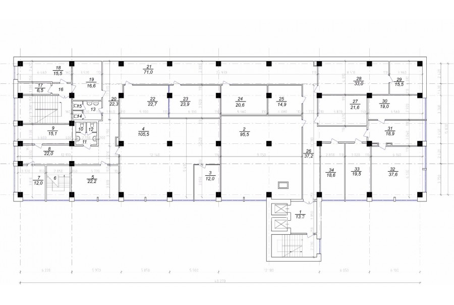
Площадь 732 м²
Состояние Готово к въезду
Планировка Кабинетная
Этаж 2

Описание

Преимущества
  • Класс B
  • Пешком от метро
  • Кондиционирование и вентиляция
  • Свой паркинг
  • Несколько провайдеров связи
  • Развитая инфраструктура
Сдается в прямую аренду помещение под офис класса B площадью 732 кв. метров в бизнес-центре.

Москва, СВАО, улица Касаткина, 11 с1

Характеристики местоположения:
- Автомобиль: близость транспортных магистралей, таких как Проспект Мира и других.
- Возможность аренды парковочных мест.
- Ближайшее метро: метро "Ростокино", далее городской транспорт до здания

Офис класса B:
- Помещение с отделкой, готово к въезду
- Вентиляция: Приточно-вытяжная вентиляция
- Кондиционирование: сплит-системы
- Круглосуточная охрана и видеонаблюдение
- Развитая инфраструктура внутри здания


Если предложение предварительно Вам подходит:

1. Мы отправим Вам подробную презентацию с планировкой и фотографиями в течение 10 минут после звонка, чтобы Вы могли поделиться информацией с руководством или с коллегами.
2. Ответим на любые Ваши вопросы, готовы обсуждать любые предложения по коммерческим условиям аренды помещения.
3. Оперативно организуем просмотр помещения с менеджерами на объекте или подготовим виртуальный тур.

Звоните нам в любое время. По будням мы сможем ответить на Ваши вопросы до 19:00. В выходные или вечернее время мы передадим Ваш контакт нашему менеджеру по аренде.

Коммерческие условия

Арендная плата 610 000 ₽
Ставка арендной платы 10 000 ₽ м²/год
Эксплуатационные расходы Включены в ставку
Налоги С учётом НДС
Тип договора Прямая аренда
Срок договора от 11 месяцев
Размер платежей 1 месяц
Обеспечительный платеж 1 месяц
Статус Сдан

О бизнес-центре

Класс B
Этажность 8
Лифты Нет
Общая площадь 26 450 м²
Год постройки 2007
Паркинг Наземный
Вентиляция приточно-вытяжная
Кондиционирование сплит-системы
Телекоммуникации Интернет/Телефония

Расположение

Подробная презентацию по предложению

Собираете информацию? Получите подробную презентацию в удобном формате, чтобы обсудить вариант с коллегами или переслать руководству!

Похожие предложения в других зданиях

БЕЗ КОМИССИИ ID: 270004 Рейтинг5.7 КлассB

Москва, Маломосковская улица, 22 с1

Алексеевская → 1.16 км
~ 12 мин
Арендная плата в месяц 733 333 ₽ 11 000 ₽/м² в год С учётом НДС
Характеристики 800 м² 1 - 3 этаж Готово к въезду
Преимущества
  • Класс B
  • Пешком от метро
  • Кондиционирование и вентиляция
  • Свой паркинг
  • Развитая инфраструктура

Сдается в прямую аренду офис класса B площадью 800 кв. метров в недавно отреконструированном бизнес-центре "Антарис"... подробнее

Презентация по предложению

Собираете информацию? Получите подробную презентацию в удобном формате!

БЕЗ КОМИССИИ ID: 137272 Рейтинг4.0 КлассB

Москва, улица Бочкова, 11А с1

Алексеевская → 1.01 км
~ 10 мин
Арендная плата в месяц 516 667 ₽ 10 000 ₽/м² в год С учётом НДС
Характеристики 620 м² 1 - 2 этаж Готово к въезду
Преимущества
  • Класс B
  • Пешком от метро

Предлагаем в прямую аренду помещение под офис класса B общей площадью 620 кв.м в бизнес-центре... подробнее

Презентация по предложению

Собираете информацию? Получите подробную презентацию в удобном формате!

БЕЗ КОМИССИИ ID: 1265267 Рейтинг6.9 КлассB

Москва, Кольская улица, 12

Свиблово → 933 м
~ 9 мин
Арендная плата в месяц 595 833 ₽ 11 000 ₽/м² в год С учётом НДС
Характеристики 650 м² 2 этаж Готово к въезду
Преимущества
  • Класс B
  • Пешком от метро
  • Кондиционирование и вентиляция
  • Свой паркинг
  • Развитая инфраструктура

Сдаем в прямую аренду офисный блок класса B площадью 650 кв.м в бизнес-центре... подробнее

Презентация по предложению

Собираете информацию? Получите подробную презентацию в удобном формате!

БЕЗ КОМИССИИ ID: 20330 Рейтинг3.5 КлассB

Москва, Ярославское шоссе, 51

Бабушкинская → 2.42 км
~ 19 мин
Арендная плата в месяц 554 167 ₽ 9 500 ₽/м² в год С учётом НДС
Характеристики 700 м² 1 этаж Под отделку
Преимущества
  • Класс B
  • Кондиционирование и вентиляция
  • Свой паркинг

Сдаем в долгосрочную прямую аренду офисный блок класса B общей площадью 700 квадратных метров в бизнес-центре... подробнее

Презентация по предложению

Собираете информацию? Получите подробную презентацию в удобном формате!

Посмотреть все похожие предложения
Отнеситесь рационально к процессу поиска нового офиса!

Просто ответьте на 3 вопроса, и наши специалисты сами предложат оптимальные варианты под ваш бюджет

.