8.2
Смотреть все фото
БЕЗ КОМИССИИ ID: 221890 Рейтинг5.7 КлассB
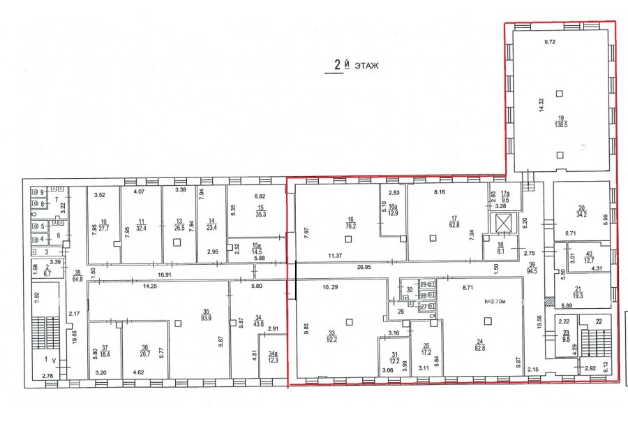
Бизнес-центр «Кэпитал Хаус»

Аренда офиса 707 м²

Москва, Летниковская улица, 11/10

Павелецкая → 1.01 км
~ 10 мин
Арендная плата в месяц 883 700 ₽ 15 000 ₽/м² в год С учётом НДС

Презентация по предложению

Собираете информацию? Получите подробную презентацию в удобном формате!

Площадь 707 м²
Состояние Готово к въезду
Планировка Кабинетная
Этаж 2

Описание

Преимущества
  • Класс B
  • Пешком от метро
  • Кондиционирование и вентиляция
  • Свой паркинг
  • Несколько провайдеров связи
Предлагается в долгосрочную аренду офисное помещение класса B площадью 707 квадр. метров в бизнес-центре "Кэпитал Хаус".

10

Удобная локация здания:
- Автомобиль: близость транспортных магистралей, таких как Садовое Кольцо и других.
- Возможность аренды парковочных мест.
- Ближайшее метро: от метро "Павелецкая" всего 13 мин пешком

Офис класса B:
- Помещение готово к въезду
- Кондиционирование: сплит-системы
- Круглосуточная охрана и видеонаблюдение


Если данное предложение подходит Вашему запросу:

1. Мы подготовили презентацию с информацией о помещении, фотографиями и планировкой, чтобы Вы могли поделиться ей с коллегами или руководством. Попросите об этом нашего менеджера по телефону в объявлении.
2. Задайте любые вопросы менеджеру по телефону, готовы обсуждать любые предложения по финансовым условиям договора аренды.
3. Проводим показы ежедневно, договоримся на удобное для Вас время. Можем организовать виртуальный тур по офисному блоку.

Вы можете позвонить нам в любое время. Мы ответим на Ваши вопросы по будням до 19:00, а поздно вечером или в выходные зафиксируем Ваш контакт и перезвоним в рабочее время.

Коммерческие условия

Арендная плата 883 750 ₽
Ставка арендной платы 15 000 ₽ м²/год
Эксплуатационные расходы Включены в ставку
Налоги С учётом НДС
Тип договора Прямая аренда
Срок договора от 11 месяцев
Размер платежей 1 месяц
Обеспечительный платеж 1 месяц
Статус Сдан

О бизнес-центре

Класс B
Этажность 5
Лифты Есть
Общая площадь 43 000 м²
Паркинг Наземный
Вентиляция естественная
Кондиционирование сплит-системы
Телекоммуникации Интернет/Телефония

Расположение

Подробная презентацию по предложению

Собираете информацию? Получите подробную презентацию в удобном формате, чтобы обсудить вариант с коллегами или переслать руководству!

Похожие предложения в других зданиях

БЕЗ КОМИССИИ ID: 5561 Рейтинг7.2 КлассB

Москва, 1-й Кожевнический переулок, 6 с1

Павелецкая → 973 м
~ 10 мин
Арендная плата в месяц 1 133 333 ₽ 17 000 ₽/м² в год С учётом НДС
Характеристики 800 м² 3 этаж Готово к въезду
Преимущества
  • Класс B
  • Пешком от метро
  • Кондиционирование и вентиляция
  • Свой паркинг
  • Несколько провайдеров связи
  • Развитая инфраструктура

Предлагаем в долгосрочную прямую аренду офисный блок класса B площадью 800 кв. метров в недавно отреконструированном бизнес-центре "Павелецкий"... подробнее

Презентация по предложению

Собираете информацию? Получите подробную презентацию в удобном формате!

ВОЗМОЖНО ОСВОБОЖДЕНИЕ ID: 124351 Рейтинг7.2 КлассB

Москва, 1-й Кожевнический переулок, 6 с1

Павелецкая → 973 м
~ 10 мин
Арендная плата в месяц 866 667 ₽ 16 000 ₽/м² в год С учётом НДС
Характеристики 650 м² 2 этаж Готово к въезду
Преимущества
  • Класс B
  • Пешком от метро
  • Кондиционирование и вентиляция
  • Свой паркинг
  • Несколько провайдеров связи
  • Развитая инфраструктура

Предлагаем в долгосрочную аренду офисный блок класса B площадью 650 кв. метров в недавно отреконструированном бизнес-центре "Павелецкий"... подробнее

Презентация по предложению

Собираете информацию? Получите подробную презентацию в удобном формате!

БЕЗ КОМИССИИ ID: 241154 Рейтинг6.0 КлассB

Москва, 2-й Кожевнический переулок, 12

Павелецкая → 1.31 км
~ 13 мин
Арендная плата в месяц 1 129 083 ₽ 17 000 ₽/м² в год С учётом НДС
Характеристики 797 м² 2 этаж Готово к въезду
Преимущества
  • Класс B
  • Пешком от метро
  • Кондиционирование и вентиляция
  • Свой паркинг
  • Несколько провайдеров связи
  • Развитая инфраструктура

Предлагаем в прямую аренду офис класса B площадью 797 квадр. метров в недавно отреконструированном бизнес-центре "Горизонт"... подробнее

Презентация по предложению

Собираете информацию? Получите подробную презентацию в удобном формате!

БЕЗ КОМИССИИ ID: 78372 Рейтинг6.5 КлассB

Москва, Дербеневская улица, 20 с2

Павелецкая → 1.73 км
~ 17 мин
Арендная плата в месяц 650 000 ₽ 13 000 ₽/м² в год С учётом НДС
Характеристики 600 м² 3 - 4 этаж Готово к въезду
Преимущества
  • Класс B
  • Пешком от метро
  • Кондиционирование и вентиляция
  • Несколько провайдеров связи

Сдаем в прямую аренду офис класса B общей площадью 600 кв.м в бизнес-центре "Дербеневский ДД"... подробнее

Презентация по предложению

Собираете информацию? Получите подробную презентацию в удобном формате!

БЕЗ КОМИССИИ ID: 697609 Рейтинг7.9 КлассB+

Москва, Дербеневская набережная, 11

Павелецкая → 1.88 км
~ 19 мин
Арендная плата в месяц 738 292 ₽ 14 500 ₽/м² в год С учётом НДС
Характеристики 611 м² 2 этаж Готово к въезду
Преимущества
  • Класс B+
  • Пешком от метро
  • Кондиционирование и вентиляция
  • Свой паркинг
  • Несколько провайдеров связи
  • Развитая инфраструктура

Сдается в долгосрочную аренду офисный блок класса B+ площадью 611 квадратных метров в бизнес-центре "Полларс"... подробнее

Презентация по предложению

Собираете информацию? Получите подробную презентацию в удобном формате!

Посмотреть все похожие предложения
Отнеситесь рационально к процессу поиска нового офиса!

Просто ответьте на 3 вопроса, и наши специалисты сами предложат оптимальные варианты под ваш бюджет

.