8.2
Смотреть все фото
ВОЗМОЖНО ОСВОБОЖДЕНИЕ ID: 272035 Рейтинг6.2 КлассB
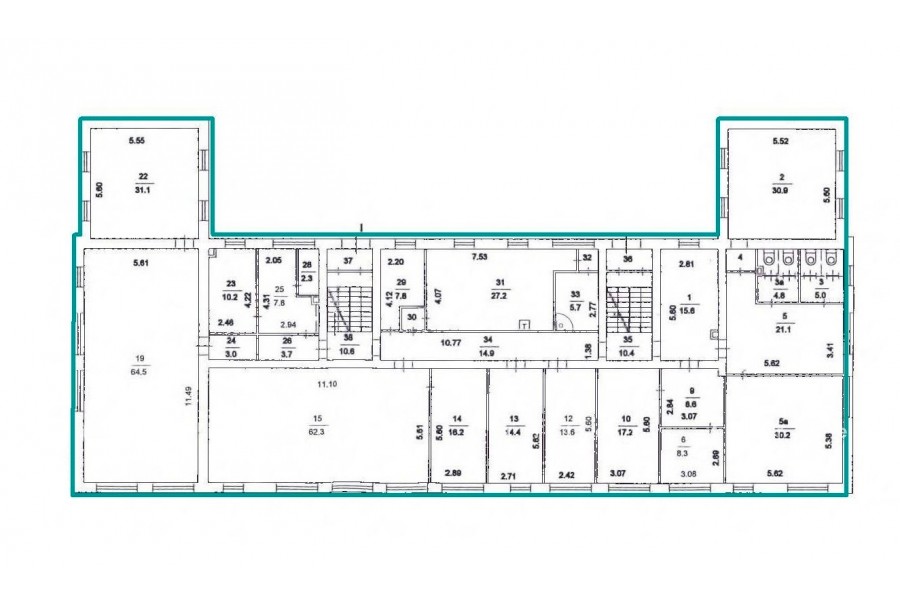
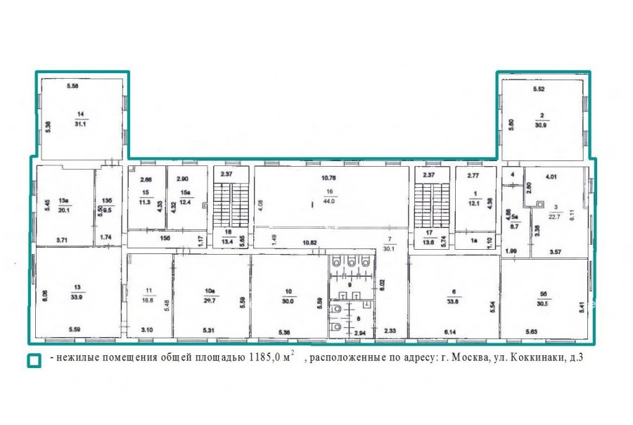
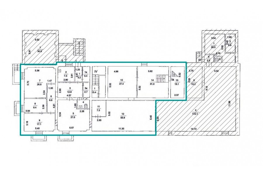
Бизнес-центр «Коккинаки 3»

Аренда офиса 1185 м²

Москва, улица Коккинаки, 3

Аэропорт → 1.04 км
~ 10 мин
Арендная плата в месяц по запросу потенциального арендатора Срок освобождение в течение 3 месяцев

Информация по помещению

Ознакомьтесь с дополнительной информацией по помещению и коммерческим условиям!

Площадь 1 185 м²
Планировка Кабинетная
Этаж 1 - 2

Описание

Преимущества
  • Класс B
  • Пешком от метро
  • Кондиционирование и вентиляция
  • Свой паркинг

Коммерческие условия

Арендная плата по запросу
Ставка арендной платы по запросу
Эксплуатационные расходы Включены в ставку
Налоги С учётом НДС
Тип договора Прямая аренда
Срок договора Долгосрочный
Размер платежей 1 месяц
Обеспечительный платеж 1 месяц
Статус Сдан

О бизнес-центре

Класс B
Этажность 2
Лифты Нет
Общая площадь 1 363 м²
Год постройки 1963
Паркинг Наземный
Вентиляция естественная
Кондиционирование сплит-системы
Телекоммуникации Интернет/Телефония

Расположение

Информация по помещению

Получите дополнительную информацию по помещению и коммерческом условиям!

Похожие предложения в других зданиях

БЕЗ КОМИССИИ ID: 290573 Рейтинг4.9 КлассB

Москва, улица Коккинаки, 4

Аэропорт → 1.19 км
~ 12 мин
Арендная плата в месяц 1 453 500 ₽ 17 000 ₽/м² в год С учётом НДС
Характеристики 1 026 м² 2 этаж Готово к въезду
Преимущества
  • Класс B
  • Пешком от метро
  • Кондиционирование и вентиляция
  • Свой паркинг

Предлагается в прямую аренду офис класса B площадью 1026 кв. метров в историческом бизнес-центре... подробнее

>

Виртуальный тур

Презентация по предложению

Собираете информацию? Получите подробную презентацию в удобном формате!

БЕЗ КОМИССИИ ID: 103494 Рейтинг7.7 КлассB+

Москва, 4-я улица 8 Марта, 6А

Аэропорт → 1.38 км
~ 14 мин
Арендная плата в месяц 1 767 475 ₽ 18 300 ₽/м² в год С учётом НДС
Характеристики 1 159 м² 2 этаж Готово к въезду
Преимущества
  • Класс B+
  • Пешком от метро
  • Кондиционирование и вентиляция
  • Несколько провайдеров связи

Предлагаем в долгосрочную прямую аренду офисное помещение класса B+ общей площадью 1159 квадр. метров в бизнес-центре "Аэропорт"... подробнее

Презентация по предложению

Собираете информацию? Получите подробную презентацию в удобном формате!

БЕЗ КОМИССИИ ID: 109597 Рейтинг4.6 КлассB

Москва, улица Мишина, 46

Петровский парк → 947 м
~ 9 мин
Арендная плата в месяц 1 761 667 ₽ 20 000 ₽/м² в год С учётом НДС
Характеристики 1 057 м² 1 - 3 этаж Готово к въезду
Преимущества
  • Класс B
  • Пешком от метро
  • Кондиционирование и вентиляция

Предлагается в прямую аренду офис класса B площадью 1057 кв. метров в недавно отреконструированном бизнес-центре... подробнее

Презентация по предложению

Собираете информацию? Получите подробную презентацию в удобном формате!

БЕЗ КОМИССИИ ID: 147713 Рейтинг5.8 КлассB

Москва, Мишина улица, 35

Петровский парк → 769 м
~ 8 мин
Арендная плата в месяц 1 871 417 ₽ 17 000 ₽/м² в год С учётом НДС
Характеристики 1 321 м² 3 этаж Готово к въезду
Преимущества
  • Класс B
  • Пешком от метро
  • Кондиционирование и вентиляция
  • Свой паркинг

Сдается в долгосрочную прямую аренду помещение под офис класса B общей площадью 1321 квадр. метров в бизнес-центре... подробнее

Презентация по предложению

Собираете информацию? Получите подробную презентацию в удобном формате!

ВОЗМОЖНО ОСВОБОЖДЕНИЕ ID: 5434 Рейтинг7.4 КлассB

Москва, Ленинградский проспект, 37 к9

Динамо → 849 м
~ 8 мин
Арендная плата в месяц 2 000 000 ₽ 20 000 ₽/м² в год С учётом НДС
Характеристики 1 200 м² 3 этаж Готово к въезду
Преимущества
  • Класс B
  • Пешком от метро
  • Кондиционирование и вентиляция
  • Свой паркинг
  • Развитая инфраструктура

Предлагаем в долгосрочную аренду офисное помещение класса B общей площадью 1200 кв. метров в бизнес-центре "Аэростар Плаза"... подробнее

Презентация по предложению

Собираете информацию? Получите подробную презентацию в удобном формате!

Посмотреть все похожие предложения
Отнеситесь рационально к процессу поиска нового офиса!

Просто ответьте на 3 вопроса, и наши специалисты сами предложат оптимальные варианты под ваш бюджет

.