8.2
Смотреть все фото
БЕЗ КОМИССИИ ID: 1379109 Рейтинг7.4 КлассB

Москва, Колодезный переулок, 3с25

Преображенская площадь → 950 м
~ 10 мин
Арендная плата в месяц 329 700 ₽ 32 700 ₽/м² в год Упрощённая система налогообложения

Презентация по предложению

Собираете информацию? Получите подробную презентацию в удобном формате!

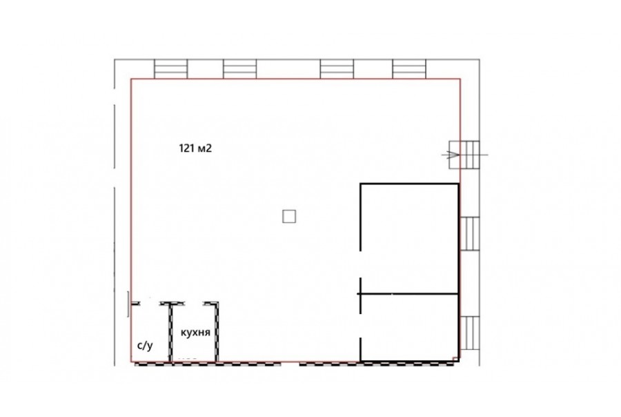
Площадь 121 м²
Состояние Готово к въезду
Планировка Смешанная
Этаж 1

Описание

Преимущества
  • Класс B
  • Пешком от метро
  • Кондиционирование и вентиляция
  • Свой паркинг
Сдается в прямую аренду офисное помещение класса B общей площадью 121 квадратных метров в недавно отреконструированном бизнес-центре.

Москва, ВАО, Колодезный переулок, 3с25

Удобная локация здания:
- Автомобиль: близость транспортных магистралей, таких как Русаковская улица, улица Стромынка, Большая Черкизовская улица и других.
- Возможность аренды парковочных мест.
- Ближайшее метро: от метро "Преображенская площадь" всего 10 мин пешком

Офис класса B:
- Помещение с отделкой, готово к въезду
- Вентиляция: Приточно-вытяжная вентиляция
- Кондиционирование: сплит-системы


Если предложение предварительно Вам подходит:

1. Мы подготовили презентацию с информацией о помещении, фотографиями и планировкой, чтобы Вы могли поделиться ей с коллегами или руководством. Попросите об этом нашего менеджера по телефону в объявлении.
2. Мы готовы ответить на любые Ваши вопросы о помещении и коммерческих условиях аренды.
3. Оперативно организуем просмотр помещения, договоримся на любое удобное время, подготовим виртуальный тур.

Звоните нам в любое время. По будням мы сможем ответить на Ваши вопросы до 19:00. В выходные или вечернее время мы передадим Ваш контакт нашему менеджеру по аренде.

Коммерческие условия

Арендная плата 329 730 ₽
Ставка арендной платы 32 700 ₽ м²/год
Эксплуатационные расходы Включены в ставку
Налоги Упрощённая система налогообложения
Тип договора Прямая аренда
Срок договора Долгосрочный
Размер платежей 1 месяц
Обеспечительный платеж 1 месяц
Статус Свободен

О бизнес-центре

Класс B
Этажность 4
Лифты Есть
Общая площадь 5 090 м²
Паркинг Наземный
Вентиляция приточно-вытяжная
Кондиционирование сплит-системы
Телекоммуникации Интернет/Телефония

Расположение

Подробная презентацию по предложению

Собираете информацию? Получите подробную презентацию в удобном формате, чтобы обсудить вариант с коллегами или переслать руководству!

Похожие предложения в других зданиях

БЕЗ КОМИССИИ ID: 1377312 Рейтинг8.4 КлассB

Москва, Переведеновский переулок, 13 с18

Электрозаводская → 1.38 км
~ 14 мин
Арендная плата в месяц 401 050 ₽ 37 000 ₽/м² в год Упрощённая система налогообложения
Характеристики 130 м² 4 - 6 этаж Готово к въезду
Преимущества
  • Класс B
  • Пешком от метро
  • Кондиционирование и вентиляция
  • Свой паркинг

Сдается в долгосрочную прямую аренду офисный блок класса B общей площадью 130 кв. метров в историческом бизнес-центре "МФК Союз"... подробнее

Презентация по предложению

Собираете информацию? Получите подробную презентацию в удобном формате!

БЕЗ КОМИССИИ ID: 1373407 Рейтинг8.4 КлассB+

Москва, Русаковская улица, 13

Красносельская → 766 м
~ 8 мин
Арендная плата в месяц 319 583 ₽ 29 500 ₽/м² в год Упрощённая система налогообложения
Характеристики 130 м² 16 этаж Готово к въезду
Преимущества
  • Класс B+
  • Пешком от метро
  • Кондиционирование и вентиляция
  • Свой паркинг
  • Несколько провайдеров связи
  • Развитая инфраструктура

Предлагаем в долгосрочную прямую аренду офис класса B+ площадью 130 кв.м в бизнес-центре "Бородино"... подробнее

Презентация по предложению

Собираете информацию? Получите подробную презентацию в удобном формате!

БЕЗ КОМИССИИ ID: 1377979 Рейтинг7.7 КлассB+

Москва, улица Фридриха Энгельса, 46 с1

Бауманская → 1.07 км
~ 11 мин
Арендная плата в месяц 330 000 ₽ 36 000 ₽/м² в год Упрощённая система налогообложения
Характеристики 110 м² 5 этаж Готово к въезду
Преимущества
  • Класс B+
  • Пешком от метро
  • Кондиционирование и вентиляция

Предлагается в прямую аренду помещение под офис класса B+ общей площадью 110 квадр. метров в историческом бизнес-центре "Лофт 46"... подробнее

Презентация по предложению

Собираете информацию? Получите подробную презентацию в удобном формате!

БЕЗ КОМИССИИ ID: 1379112 Рейтинг7.7 КлассB+

Москва, улица Фридриха Энгельса, 46 с1

Бауманская → 1.07 км
~ 11 мин
Арендная плата в месяц 315 000 ₽ 36 000 ₽/м² в год Упрощённая система налогообложения
Характеристики 105 м² 3 этаж Готово к въезду
Преимущества
  • Класс B+
  • Пешком от метро
  • Кондиционирование и вентиляция

Предлагается в прямую аренду офисное помещение класса B+ площадью 105 кв. метров в историческом бизнес-центре "Лофт 46"... подробнее

Презентация по предложению

Собираете информацию? Получите подробную презентацию в удобном формате!

Посмотреть все похожие предложения
Отнеситесь рационально к процессу поиска нового офиса!

Просто ответьте на 3 вопроса, и наши специалисты сами предложат оптимальные варианты под ваш бюджет

.