8.2
Смотреть все фото
БЕЗ КОМИССИИ ID: 367459 Рейтинг8.6 КлассА
Бизнес-центр «Конкорд»

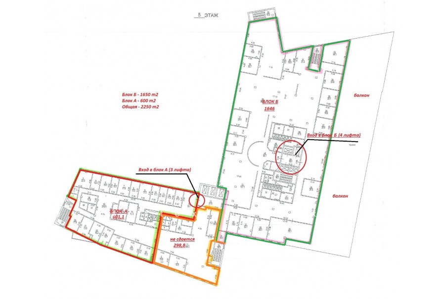
Аренда офиса 600 м²

Москва, улица Шаболовка, 10

Шаболовская → 599 м
~ 6 мин
Арендная плата в месяц 1 450 000 ₽ 29 000 ₽/м² в год С учётом НДС

Презентация по предложению

Собираете информацию? Получите подробную презентацию в удобном формате!

Площадь 600 м²
Состояние Готово к въезду
Планировка Смешанная
Этаж 5

Описание

Преимущества
  • Класс А
  • Пешком от метро
  • Кондиционирование и вентиляция
Предлагаем в долгосрочную аренду офис класса А общей площадью 600 квадр. метров в бизнес-центре "Конкорд".

Москва, ЦАО, улица Шаболовка, 10

Удобное расположение здания для всех видов транспорта:
- Автомобиль: близость транспортных магистралей, таких как Ленинский проспект, Садовое Кольцо и других.
- Возможность аренды парковочных мест.
- Ближайшее метро: от метро "Шаболовская" всего 6 мин пешком

Офис класса А:
- Офис с отделкой, полностью готов к аренде
- Вентиляция: Приточно-вытяжная вентиляция
- Кондиционирование: центральное
- Презентабельный центральный ресепшн
- Круглосуточная охрана и видеонаблюдение

Возможность заключения контракта в соответствии с 44ФЗ по госзакупкам.

Если предложение предварительно Вам подходит:

1. Мы отправим Вам подробную презентацию с планировкой и фотографиями в течение 10 минут после звонка, чтобы Вы могли поделиться информацией с руководством или с коллегами.
2. Ответим на любые Ваши вопросы, готовы обсуждать любые предложения по коммерческим условиям аренды помещения.
3. Оперативно организуем просмотр помещения, договоримся на любое удобное время, подготовим виртуальный тур.

Звоните нам в любое время. По будням мы сможем ответить на Ваши вопросы до 19:00. В выходные или вечернее время мы передадим Ваш контакт нашему менеджеру по аренде.

Коммерческие условия

Арендная плата 1 450 050 ₽
Ставка арендной платы 29 000 ₽ м²/год
Эксплуатационные расходы Включены в ставку
Налоги С учётом НДС
Тип договора Прямая аренда
Срок договора Долгосрочный
Размер платежей 2 месяц
Обеспечительный платеж 2 месяц
Статус Сдан

О бизнес-центре

Класс А
Этажность 8
Лифты Есть
Общая площадь 28 500 м²
Год постройки 2006
Паркинг Наземный и подземный
Вентиляция приточно-вытяжная
Кондиционирование центральное
Телекоммуникации Интернет/Телефония

Расположение

Подробная презентацию по предложению

Собираете информацию? Получите подробную презентацию в удобном формате, чтобы обсудить вариант с коллегами или переслать руководству!

Похожие предложения в других зданиях

БЕЗ КОМИССИИ ID: 208043 Рейтинг7.5 КлассB

Москва, Донская улица, 13

Шаболовская → 807 м
~ 8 мин
Арендная плата в месяц 1 360 000 ₽ 32 000 ₽/м² в год С учётом НДС
Характеристики 510 м² 2 этаж Готово к въезду
Преимущества
  • Класс B
  • Пешком от метро
  • Кондиционирование и вентиляция
  • Свой паркинг

Предлагаем в долгосрочную аренду офис класса B площадью 510 кв.м в бизнес-центре... подробнее

Презентация по предложению

Собираете информацию? Получите подробную презентацию в удобном формате!

БЕЗ КОМИССИИ ID: 1319125 Рейтинг7.9 КлассB

Москва, улица Шаболовка, 31Г

Шаболовская → 328 м
~ 3 мин
Арендная плата в месяц 1 473 542 ₽ 27 500 ₽/м² в год С учётом НДС
Характеристики 643 м² 1 этаж Готово к въезду
Преимущества
  • Класс B
  • Пешком от метро
  • Кондиционирование и вентиляция
  • Свой паркинг
  • Несколько провайдеров связи
  • Развитая инфраструктура

Предлагается в долгосрочную прямую аренду офисный блок класса B общей площадью 643 квадратных метров в недавно отреконструированном бизнес-центре... подробнее

Презентация по предложению

Собираете информацию? Получите подробную презентацию в удобном формате!

БЕЗ КОМИССИИ ID: 1192388 Рейтинг7.9 КлассB

Москва, улица Шаболовка, 31Г

Шаболовская → 328 м
~ 3 мин
Арендная плата в месяц 1 320 638 ₽ 28 400 ₽/м² в год С учётом НДС
Характеристики 559 м² 5 этаж Готово к въезду
Преимущества
  • Класс B
  • Пешком от метро
  • Кондиционирование и вентиляция
  • Свой паркинг
  • Несколько провайдеров связи
  • Развитая инфраструктура

Сдается в аренду офисное помещение класса B площадью 559 кв.м в недавно отреконструированном бизнес-центре... подробнее

>

Виртуальный тур

Презентация по предложению

Собираете информацию? Получите подробную презентацию в удобном формате!

БЕЗ КОМИССИИ ID: 1319127 Рейтинг7.9 КлассB

Москва, улица Шаболовка, 31Г

Шаболовская → 328 м
~ 3 мин
Арендная плата в месяц 1 258 125 ₽ 27 500 ₽/м² в год С учётом НДС
Характеристики 549 м² 4 этаж Готово к въезду
Преимущества
  • Класс B
  • Пешком от метро
  • Кондиционирование и вентиляция
  • Свой паркинг
  • Несколько провайдеров связи
  • Развитая инфраструктура

Предлагается в прямую аренду помещение под офис класса B площадью 549 квадратных метров в недавно отреконструированном бизнес-центре... подробнее

Презентация по предложению

Собираете информацию? Получите подробную презентацию в удобном формате!

ВОЗМОЖНО ОСВОБОЖДЕНИЕ ID: 302290 Рейтинг7.9 КлассB

Москва, улица Шаболовка, 31Г

Шаболовская → 328 м
~ 3 мин
Арендная плата в месяц 1 186 800 ₽ 27 600 ₽/м² в год С учётом НДС
Характеристики 516 м² 3 этаж Готово к въезду
Преимущества
  • Класс B
  • Пешком от метро
  • Кондиционирование и вентиляция
  • Свой паркинг
  • Несколько провайдеров связи
  • Развитая инфраструктура

Предлагается в долгосрочную аренду офисный блок класса B общей площадью 516 квадр. метров в недавно отреконструированном бизнес-центре... подробнее

>

Виртуальный тур

Презентация по предложению

Собираете информацию? Получите подробную презентацию в удобном формате!

Посмотреть все похожие предложения
Отнеситесь рационально к процессу поиска нового офиса!

Просто ответьте на 3 вопроса, и наши специалисты сами предложат оптимальные варианты под ваш бюджет

.