8.2
Смотреть все фото
БЕЗ КОМИССИИ ID: 1292219 Рейтинг7.8 КлассB
Бизнес-центр «Коптевская 65»

Аренда офиса 1197 м²

Москва, Коптевская улица, 65

Коптево → 1.45 км
~ 15 мин
Арендная плата в месяц 2 140 000 ₽ 21 500 ₽/м² в год С учётом НДС

Презентация по предложению

Собираете информацию? Получите подробную презентацию в удобном формате!

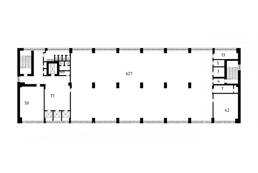
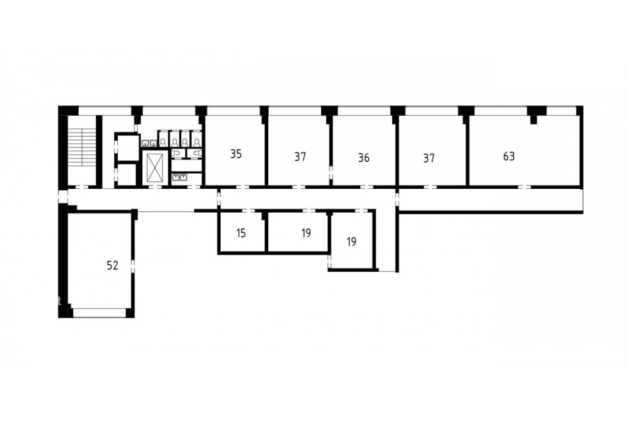
Площадь 1 197 м²
Состояние Готово к въезду
Планировка Смешанная
Этаж 3

Описание

Преимущества
  • Класс B
  • Пешком от метро
  • Кондиционирование и вентиляция
  • Свой паркинг
Сдается в прямую аренду офисный блок класса B общей площадью 1197 кв.м в бизнес-центре.

Москва, САО, Коптевская улица, 65

Удобная локация здания:
- Автомобиль: близость транспортных магистралей, таких как Ленинградское шоссе и других.
- Возможность аренды парковочных мест.
- Ближайшее метро: от метро "Коптево" всего 9 мин транспортом

Офис класса B:
- Помещение с отделкой, готово к въезду
- Вентиляция: Приточно-вытяжная вентиляция
- Кондиционирование: центральное


Если предложение предварительно Вам подходит:

1. Мы подготовили презентацию с информацией о помещении, фотографиями и планировкой, чтобы Вы могли поделиться ей с коллегами или руководством. Попросите об этом нашего менеджера по телефону в объявлении.
2. Задайте любые вопросы менеджеру по телефону, готовы обсуждать любые предложения по финансовым условиям договора аренды.
3. Оперативно организуем просмотр помещения, договоримся на любое удобное время, подготовим виртуальный тур.

Звоните нам в любое время. По будням мы сможем ответить на Ваши вопросы до 19:00. В выходные или вечернее время мы передадим Ваш контакт нашему менеджеру по аренде.

Коммерческие условия

Арендная плата 1 945 520 ₽
Ставка арендной платы 21 500 ₽ м²/год
Эксплуатационные расходы Включены в ставку
Налоги С учётом НДС
Тип договора Прямая аренда
Срок договора от 11 месяцев
Размер платежей 1 месяц
Обеспечительный платеж 1 месяц
Статус Сдан

О бизнес-центре

Класс B
Этажность 4
Лифты Есть
Общая площадь 4 609 м²
Год постройки 1973
Паркинг Наземный
Вентиляция приточно-вытяжная
Кондиционирование центральное
Телекоммуникации Интернет/Телефония

Расположение

Подробная презентацию по предложению

Собираете информацию? Получите подробную презентацию в удобном формате, чтобы обсудить вариант с коллегами или переслать руководству!

Похожие предложения в других зданиях

БЕЗ КОМИССИИ ID: 230883 Рейтинг7.1 КлассB

Москва, Большая Академическая улица, 5

Войковская → 1.76 км
~ 18 мин
Арендная плата в месяц 2 330 250 ₽ 23 900 ₽/м² в год С учётом НДС
Характеристики 1 170 м² 4 - 5 этаж Готово к въезду
Преимущества
  • Класс B
  • Пешком от метро
  • Кондиционирование и вентиляция

Сдается в долгосрочную аренду помещение под офис класса B общей площадью 1170 квадр. метров в бизнес-центре... подробнее

Презентация по предложению

Собираете информацию? Получите подробную презентацию в удобном формате!

БЕЗ КОМИССИИ ID: 282296 Рейтинг7.6 КлассB

Москва, Ленинградский проспект, 80 к17

Сокол → 498 м
~ 5 мин
Арендная плата в месяц 2 058 000 ₽ 21 000 ₽/м² в год С учётом НДС
Характеристики 1 176 м² 1 этаж Готово к въезду
Преимущества
  • Класс B
  • Пешком от метро
  • Кондиционирование и вентиляция
  • Свой паркинг

Предлагаем в долгосрочную прямую аренду офис класса B площадью 1176 квадр. метров в бизнес-центре... подробнее

Презентация по предложению

Собираете информацию? Получите подробную презентацию в удобном формате!

БЕЗ КОМИССИИ ID: 1017678 Рейтинг4.8 КлассB

Москва, Волоколамское шоссе, 5 с1

Сокол → 1.03 км
~ 10 мин
Арендная плата в месяц 1 820 833 ₽ 19 000 ₽/м² в год С учётом НДС
Характеристики 1 150 м² 1 - 2 этаж Готово к въезду
Преимущества
  • Класс B
  • Пешком от метро

Предлагаем в долгосрочную аренду офис класса B площадью 1150 кв. метров в историческом бизнес-центре... подробнее

Презентация по предложению

Собираете информацию? Получите подробную презентацию в удобном формате!

БЕЗ КОМИССИИ ID: 1305991 Рейтинг7.8 КлассB+

Москва, 1-й Волоколамский проезд, 10

Панфиловская → 1.07 км
~ 11 мин
Арендная плата в месяц 2 541 397 ₽ 24 300 ₽/м² в год С учётом НДС
Характеристики 1 253 м² 2 этаж Готово к въезду
Преимущества
  • Класс B+
  • Пешком от метро
  • Кондиционирование и вентиляция
  • Свой паркинг
  • Несколько провайдеров связи
  • Развитая инфраструктура

Предлагаем в долгосрочную прямую аренду офис класса B+ площадью 1253 квадр. метров в бизнес-центре "Диапазон"... подробнее

>

Виртуальный тур

Презентация по предложению

Собираете информацию? Получите подробную презентацию в удобном формате!

БЕЗ КОМИССИИ ID: 1290799 Рейтинг7.4 КлассB

Москва, улица Мещерякова, д5 к1

Тушинская → 1.3 км
~ 13 мин
Арендная плата в месяц 2 749 847 ₽ 24 300 ₽/м² в год С учётом НДС
Характеристики 1 357 м² -1 - 5 этаж Готово к въезду
Преимущества
  • Класс B
  • Пешком от метро
  • Кондиционирование и вентиляция
  • Свой паркинг

Предлагаем в прямую аренду здание под офис класса B общей площадью 1357 квадр. метров. .. подробнее

Презентация по предложению

Собираете информацию? Получите подробную презентацию в удобном формате!

Посмотреть все похожие предложения
Отнеситесь рационально к процессу поиска нового офиса!

Просто ответьте на 3 вопроса, и наши специалисты сами предложат оптимальные варианты под ваш бюджет

.