8.2

Виртуальный тур

Виртуальный тур

Виртуальный тур

Смотреть все фото
БЕЗ КОМИССИИ ID: 1055657 Рейтинг7.8 КлассB
Бизнес-центр «Коптевская 65»

Аренда офиса 4200 м²

Москва, Коптевская улица, 65

Коптево → 1.45 км
~ 15 мин
Арендная плата в месяц 6 300 000 ₽ 18 000 ₽/м² в год С учётом НДС

Презентация по предложению

Собираете информацию? Получите подробную презентацию в удобном формате!

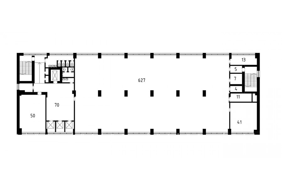
Площадь 4 200 м²
Состояние Готово к въезду
Планировка Кабинетная
Этаж -1 - 4

Описание

Преимущества
  • Класс B
  • Пешком от метро
  • Кондиционирование и вентиляция
  • Свой паркинг
Сдается в долгосрочную аренду помещение под офис класса B общей площадью 4200 квадратных метров в бизнес-центре.

Москва, САО, Коптевская улица, 65

Удобная локация здания:
- Автомобиль: близость транспортных магистралей, таких как Ленинградское шоссе и других.
- Возможность аренды парковочных мест.
- Ближайшее метро: от метро "Коптево" всего 9 мин транспортом

Офис класса B:
- Помещение с отделкой, готово к въезду
- Вентиляция: Приточно-вытяжная вентиляция
- Кондиционирование: центральное

Возможность заключения контракта в соответствии с 44ФЗ по госзакупкам.

Если предложение предварительно Вам подходит:

1. Мы отправим Вам подробную презентацию с планировкой и фотографиями в течение 10 минут после звонка, чтобы Вы могли поделиться информацией с руководством или с коллегами.
2. Мы готовы ответить на любые Ваши вопросы о помещении и коммерческих условиях аренды.
3. Покажем помещение в удобное для Вас время с менеджером в здании, при необходимости подготовим виртуальный тур.

Вы можете позвонить нам в любое время. Мы ответим на Ваши вопросы по будням до 19:00, а поздно вечером или в выходные сможем передать Ваш контакт нашему менеджеру.

Коммерческие условия

Арендная плата 6 300 000 ₽
Ставка арендной платы 18 000 ₽ м²/год
Эксплуатационные расходы Включены в ставку
Налоги С учётом НДС
Тип договора Прямая аренда
Срок договора от 11 месяцев
Размер платежей 1 месяц
Обеспечительный платеж 1 месяц
Статус Сдан

О бизнес-центре

Класс B
Этажность 4
Лифты Есть
Общая площадь 4 609 м²
Год постройки 1973
Паркинг Наземный
Вентиляция приточно-вытяжная
Кондиционирование центральное
Телекоммуникации Интернет/Телефония

Расположение

Подробная презентацию по предложению

Собираете информацию? Получите подробную презентацию в удобном формате, чтобы обсудить вариант с коллегами или переслать руководству!

Похожие предложения в других зданиях

БЕЗ КОМИССИИ ID: 212513 Рейтинг7.6 КлассB+

Москва, Нарвская улица, 6 с3

Водный стадион → 1.58 км
~ 16 мин
Арендная плата в месяц 8 000 000 ₽ 20 000 ₽/м² в год С учётом НДС
Характеристики 4 800 м² 1 - 6 этаж Под отделку
Преимущества
  • Класс B+
  • Пешком от метро
  • Кондиционирование и вентиляция
  • Свой паркинг

Предлагаем в долгосрочную прямую аренду офисное помещение класса B+ площадью 4800 квадратных метров в бизнес-центре... подробнее

Презентация по предложению

Собираете информацию? Получите подробную презентацию в удобном формате!

БЕЗ КОМИССИИ ID: 212487 Рейтинг7.6 КлассB+

Москва, Нарвская улица, 6 с3

Водный стадион → 1.58 км
~ 16 мин
Арендная плата в месяц 6 666 667 ₽ 20 000 ₽/м² в год С учётом НДС
Характеристики 4 000 м² 1 - 5 этаж Под отделку
Преимущества
  • Класс B+
  • Пешком от метро
  • Кондиционирование и вентиляция
  • Свой паркинг

Сдается в долгосрочную аренду офисное помещение класса B+ общей площадью 4000 кв.м в бизнес-центре... подробнее

Презентация по предложению

Собираете информацию? Получите подробную презентацию в удобном формате!

БЕЗ КОМИССИИ ID: 899030 Рейтинг5.8 КлассB

Москва, улица Прянишникова, 5А

Лихоборы → 1.94 км
~ 19 мин
Арендная плата в месяц 5 991 083 ₽ 17 000 ₽/м² в год С учётом НДС
Характеристики 4 229 м² 1 - 3 этаж Готово к въезду
Преимущества
  • Класс B
  • Пешком от метро
  • Кондиционирование и вентиляция

Сдается в долгосрочную прямую аренду офис класса B площадью 4229 квадр. метров в историческом бизнес-центре... подробнее

Презентация по предложению

Собираете информацию? Получите подробную презентацию в удобном формате!

Посмотреть все похожие предложения
Отнеситесь рационально к процессу поиска нового офиса!

Просто ответьте на 3 вопроса, и наши специалисты сами предложат оптимальные варианты под ваш бюджет

.