8.2
Смотреть все фото
БЕЗ КОМИССИИ ID: 237387 Рейтинг6.7 КлассB

Москва, улица Космонавта Волкова, 14

Войковская → 1.61 км
~ 16 мин
Арендная плата в месяц 1 242 500 ₽ 17 500 ₽/м² в год С учётом НДС

Презентация по предложению

Собираете информацию? Получите подробную презентацию в удобном формате!

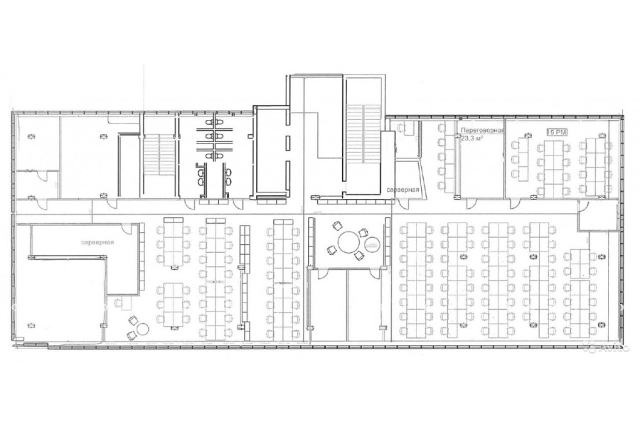
Площадь 852 м²
Состояние Готово к въезду
Планировка Смешанная
Этаж 6

Описание

Преимущества
  • Класс B
  • Пешком от метро
  • Кондиционирование и вентиляция
  • Свой паркинг
Предлагается в долгосрочную аренду офис класса B общей площадью 852 квадратных метров в бизнес-центре.

Москва, САО, улица Космонавта Волкова, 14

Характеристики местоположения:
- Автомобиль: близость транспортных магистралей, таких как Ленинградское шоссе, Волоколамское шоссе, Ленинградский проспект и других.
- Возможность аренды парковочных мест.
- Ближайшее метро: от метро "Войковская" можно добраться пешком или на городском транспорте

Офис класса B:
- Офис с отделкой, полностью готов к аренде
- Вентиляция: Приточно-вытяжная вентиляция
- Кондиционирование: сплит-системы
- Круглосуточная охрана и видеонаблюдение

Возможность заключения контракта в соответствии с 44ФЗ по госзакупкам.

Что еще можно узнать о предложении:

1. Получите презентацию в течение 10 минут в Whatsapp или на почту с фотографиями и планировкой, чтобы обсудить данный вариант с коллегами или переслать руководству. Для этого позвоните по телефону, указанному в объявлении.
2. Задайте любые вопросы менеджеру по телефону, готовы обсуждать любые предложения по финансовым условиям договора аренды.
3. Оперативно организуем просмотр помещения, договоримся на любое удобное время, подготовим виртуальный тур.

Вы можете позвонить нам в любое время. Мы ответим на Ваши вопросы по будням до 19:00, а поздно вечером или в выходные зафиксируем Ваш контакт и перезвоним в рабочее время.

Коммерческие условия

Арендная плата 1 242 500 ₽
Ставка арендной платы 17 500 ₽ м²/год
Эксплуатационные расходы Включены в ставку
Налоги С учётом НДС
Тип договора Прямая аренда
Срок договора от 11 месяцев
Размер платежей 1 месяц
Обеспечительный платеж 1 месяц
Статус Сдан

О бизнес-центре

Класс B
Этажность 8
Лифты Есть
Общая площадь 9 406 м²
Год постройки 1970
Паркинг Наземный
Вентиляция приточно-вытяжная
Кондиционирование сплит-системы
Телекоммуникации Интернет/Телефония

Расположение

Подробная презентацию по предложению

Собираете информацию? Получите подробную презентацию в удобном формате, чтобы обсудить вариант с коллегами или переслать руководству!

Похожие предложения в других зданиях

БЕЗ КОМИССИИ ID: 439555 Рейтинг5.8 КлассB

Москва, улица Космонавта Волкова, 20

Сокол → 1.75 км
~ 18 мин
Арендная плата в месяц 1 301 400 ₽ 16 200 ₽/м² в год С учётом НДС
Характеристики 964 м² 4 - 8 этаж Готово к въезду
Преимущества
  • Класс B
  • Пешком от метро
  • Кондиционирование и вентиляция
  • Свой паркинг

Сдается в прямую аренду помещение под офис класса B площадью 964 квадратных метров в бизнес-центре... подробнее

Презентация по предложению

Собираете информацию? Получите подробную презентацию в удобном формате!

ВОЗМОЖНО ОСВОБОЖДЕНИЕ ID: 296580 Рейтинг5.8 КлассB

Москва, улица Космонавта Волкова, 20

Сокол → 1.75 км
~ 18 мин
Арендная плата в месяц 913 750 ₽ 15 000 ₽/м² в год С учётом НДС
Характеристики 731 м² 4 этаж Готово к въезду
Преимущества
  • Класс B
  • Пешком от метро
  • Кондиционирование и вентиляция
  • Свой паркинг

Сдается в долгосрочную прямую аренду помещение под офис класса B площадью 731 кв. метров в бизнес-центре... подробнее

Презентация по предложению

Собираете информацию? Получите подробную презентацию в удобном формате!

БЕЗ КОМИССИИ ID: 61571 Рейтинг6.6 КлассB

Москва, Балтийская улица, 15

Сокол → 783 м
~ 8 мин
Арендная плата в месяц 1 316 667 ₽ 20 000 ₽/м² в год С учётом НДС
Характеристики 790 м² 5 - 6 этаж Готово к въезду
Преимущества
  • Класс B
  • Пешком от метро
  • Кондиционирование и вентиляция
  • Свой паркинг
  • Развитая инфраструктура

Предлагается в долгосрочную прямую аренду офис класса B общей площадью 790 кв. метров в недавно отреконструированном бизнес-центре "Балтийский"... подробнее

Презентация по предложению

Собираете информацию? Получите подробную презентацию в удобном формате!

БЕЗ КОМИССИИ ID: 299571 Рейтинг6.8 КлассB

Москва, Ленинградский проспект, 80 к66

Сокол → 784 м
~ 8 мин
Арендная плата в месяц 1 252 000 ₽ 16 000 ₽/м² в год С учётом НДС
Характеристики 939 м² 12 этаж Готово к въезду
Преимущества
  • Класс B
  • Пешком от метро
  • Кондиционирование и вентиляция

Предлагаем в долгосрочную прямую аренду офис класса B площадью 939 квадратных метров в бизнес-центре... подробнее

Презентация по предложению

Собираете информацию? Получите подробную презентацию в удобном формате!

БЕЗ КОМИССИИ ID: 265528 Рейтинг5.3 КлассB

Москва, Большой Коптевский проезд, 3 с1

Аэропорт → 1.1 км
~ 11 мин
Арендная плата в месяц 1 000 000 ₽ 15 000 ₽/м² в год С учётом НДС
Характеристики 800 м² 1 - 4 этаж Готово к въезду
Преимущества
  • Класс B
  • Пешком от метро
  • Кондиционирование и вентиляция
  • Свой паркинг

Сдаем в долгосрочную прямую аренду помещение под офис класса B площадью 800 квадр. метров в историческом бизнес-центре... подробнее

Презентация по предложению

Собираете информацию? Получите подробную презентацию в удобном формате!

Посмотреть все похожие предложения
Отнеситесь рационально к процессу поиска нового офиса!

Просто ответьте на 3 вопроса, и наши специалисты сами предложат оптимальные варианты под ваш бюджет

.