8.2
Смотреть все фото
БЕЗ КОМИССИИ ID: 1282355 Рейтинг6.2 КлассB

Москва, Котельническая набережная, 25 с1

Таганская → 768 м
~ 8 мин
Арендная плата в месяц 848 300 ₽ 23 500 ₽/м² в год С учётом НДС

Презентация по предложению

Собираете информацию? Получите подробную презентацию в удобном формате!

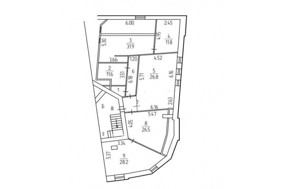
Площадь 433 м²
Состояние Готово к въезду
Планировка Смешанная
Этаж 5

Описание

Преимущества
  • Класс B
  • Пешком от метро
  • Свой паркинг
Собственник сдает в долгосрочную прямую аренду офисный блок класса B общей площадью 433 кв. метров в бизнес-центре.

Москва, ЦАО, Котельническая набережная, 25 с1

Удобное расположение в пределах Садового кольца:
- Ближайшее метро: от метро "Таганская" всего 9 мин пешком

Офис класса B:
- Помещение с отделкой, готово к въезду


Что еще можно узнать о предложении:

1. Получите презентацию в течение 10 минут в Whatsapp или на почту с фотографиями и планировкой, чтобы обсудить данный вариант с коллегами или переслать руководству. Для этого позвоните по телефону, указанному в объявлении.
2. Мы готовы ответить на любые Ваши вопросы о помещении и коммерческих условиях аренды.
3. Оперативно организуем просмотр помещения, договоримся на любое удобное время, подготовим виртуальный тур.

Звоните нам в любое время. По будням мы сможем ответить на Ваши вопросы до 19:00. В выходные или вечернее время мы передадим Ваш контакт нашему менеджеру по аренде.

Коммерческие условия

Арендная плата 771 170 ₽
Ставка арендной платы 23 500 ₽ м²/год
Эксплуатационные расходы Включены в ставку
Налоги С учётом НДС
Тип договора Прямая аренда
Срок договора от 11 месяцев
Размер платежей 1 месяц
Обеспечительный платеж 1 месяц
Статус Сдан

О бизнес-центре

Класс B
Этажность 5
Лифты Нет
Общая площадь 1 500 м²
Год постройки 2007
Паркинг Наземный
Вентиляция приточно-вытяжная
Кондиционирование сплит-системы
Телекоммуникации Интернет/Телефония

Расположение

Подробная презентацию по предложению

Собираете информацию? Получите подробную презентацию в удобном формате, чтобы обсудить вариант с коллегами или переслать руководству!

Похожие предложения в других зданиях

БЕЗ КОМИССИИ ID: 241797 Рейтинг5.4 КлассB

Москва, Гончарная улица, 11 с1

Таганская → 584 м
~ 6 мин
Арендная плата в месяц 788 333 ₽ 22 000 ₽/м² в год С учётом НДС
Характеристики 430 м² 1 - 2 этаж Готово к въезду
Преимущества
  • Класс B
  • Пешком от метро

Предлагается в долгосрочную прямую аренду офисное помещение класса B общей площадью 430 кв.м в историческом бизнес-центре... подробнее

Презентация по предложению

Собираете информацию? Получите подробную презентацию в удобном формате!

БЕЗ КОМИССИИ ID: 304035 Рейтинг6.3 КлассB

Москва, Верхняя Радищевская улица, 16 с2

Таганская → 320 м
~ 3 мин
Арендная плата в месяц 974 600 ₽ 26 400 ₽/м² в год С учётом НДС
Характеристики 443 м² 1 этаж Готово к въезду
Преимущества
  • Класс B
  • Пешком от метро
  • Кондиционирование и вентиляция

Сдается в прямую аренду помещение под офис класса B площадью 443 кв. метров в бизнес-центре... подробнее

>

Виртуальный тур

Презентация по предложению

Собираете информацию? Получите подробную презентацию в удобном формате!

БЕЗ КОМИССИИ ID: 145642 Рейтинг6.9 КлассB

Москва, Верхняя Радищевская улица, 5 с4

Таганская → 479 м
~ 5 мин
Арендная плата в месяц 920 000 ₽ 23 000 ₽/м² в год С учётом НДС
Характеристики 480 м² 0 - 3 этаж Готово к въезду
Преимущества
  • Класс B
  • Пешком от метро
  • Кондиционирование и вентиляция
  • Свой паркинг
  • Несколько провайдеров связи

Сдается в долгосрочную прямую аренду помещение под офис класса B общей площадью 480 квадратных метров в историческом бизнес-центре... подробнее

Презентация по предложению

Собираете информацию? Получите подробную презентацию в удобном формате!

БЕЗ КОМИССИИ ID: 288611 Рейтинг8.0 КлассB

Москва, Тетеринский переулок, 4 с1

Таганская → 507 м
~ 5 мин
Арендная плата в месяц 800 000 ₽ 24 000 ₽/м² в год С учётом НДС
Характеристики 400 м² этаж Готово к въезду
Преимущества
  • Класс B
  • Пешком от метро
  • Кондиционирование и вентиляция
  • Свой паркинг
  • Развитая инфраструктура

Сдается в прямую аренду офисное помещение класса B площадью 400 кв.м в бизнес-центре... подробнее

Презентация по предложению

Собираете информацию? Получите подробную презентацию в удобном формате!

БЕЗ КОМИССИИ ID: 199279 Рейтинг5.0 КлассB

Москва, Тетеринский переулок, 12 с4

Таганская → 485 м
~ 5 мин
Арендная плата в месяц 700 000 ₽ 21 000 ₽/м² в год С учётом НДС
Характеристики 400 м² 0 - 2 этаж Под отделку
Преимущества
  • Класс B
  • Пешком от метро
  • Кондиционирование и вентиляция

Предлагается в долгосрочную прямую аренду помещение под офис класса B площадью 400 кв.м в бизнес-центре... подробнее

Презентация по предложению

Собираете информацию? Получите подробную презентацию в удобном формате!

Посмотреть все похожие предложения
Отнеситесь рационально к процессу поиска нового офиса!

Просто ответьте на 3 вопроса, и наши специалисты сами предложат оптимальные варианты под ваш бюджет

.