8.2
Смотреть все фото
БЕЗ КОМИССИИ ID: 306438 Рейтинг8.2 КлассB+

Москва, улица Красная Пресня, 22

Краснопресненская → 541 м
~ 5 мин
Арендная плата в месяц 6 402 900 ₽ 55 000 ₽/м² в год С учётом НДС

Презентация по предложению

Собираете информацию? Получите подробную презентацию в удобном формате!

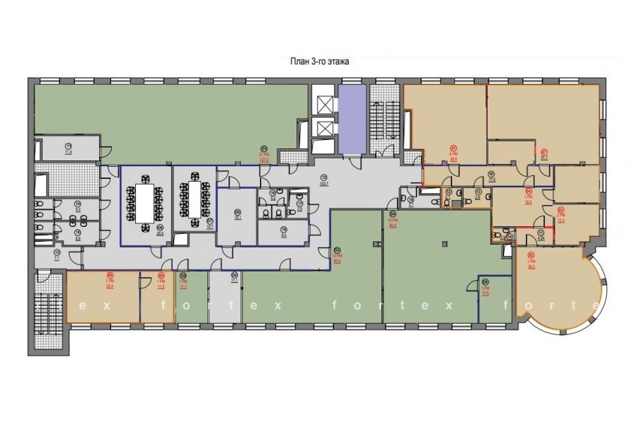
Площадь 1 397 м²
Состояние Готово к въезду
Планировка Смешанная
Этаж 2 - 3

Описание

Преимущества
  • Класс B+
  • Пешком от метро
  • Кондиционирование и вентиляция
  • Свой паркинг
  • Несколько провайдеров связи
  • Развитая инфраструктура
Сдается в долгосрочную аренду офис класса B+ площадью 1397 кв. метров в бизнес-центре.

Москва, ЦАО, улица Красная Пресня, 22

Удобное расположение здания для всех видов транспорта:
- Автомобиль: близость транспортных магистралей, таких как Звенигородское шоссе, Садовое Кольцо и других.
- Возможность аренды парковочных мест.
- Ближайшее метро: от метро "Краснопресненская" всего 5 мин пешком

Офис класса B+:
- Помещение с отделкой, готово к въезду
- Вентиляция: Приточно-вытяжная вентиляция
- Кондиционирование: центральное
- Круглосуточная охрана и видеонаблюдение
- Развитая инфраструктура внутри здания

Возможность заключения контракта в соответствии с 44ФЗ по госзакупкам.

Если предложение предварительно Вам подходит:

1. Мы отправим Вам подробную презентацию с планировкой и фотографиями в течение 10 минут после звонка, чтобы Вы могли поделиться информацией с руководством или с коллегами.
2. Мы готовы ответить на любые Ваши вопросы о помещении и коммерческих условиях аренды.
3. Оперативно организуем просмотр помещения с менеджерами на объекте или подготовим виртуальный тур.

Звоните нам в любое время. По будням мы сможем ответить на Ваши вопросы до 19:00. В выходные или вечернее время мы передадим Ваш контакт нашему менеджеру по аренде.

Коммерческие условия

Арендная плата 3 841 750 ₽
Ставка арендной платы 55 000 ₽ м²/год
Эксплуатационные расходы Включены в ставку
Налоги С учётом НДС
Тип договора Прямая аренда
Срок договора от 11 месяцев
Размер платежей 1 месяц
Обеспечительный платеж 2 месяц
Статус Сдан

О бизнес-центре

Класс B+
Этажность 7
Лифты Есть
Общая площадь 6 000 м²
Год постройки 2003
Паркинг Подземный
Вентиляция приточно-вытяжная
Кондиционирование центральное
Телекоммуникации Интернет/Телефония

Расположение

Подробная презентацию по предложению

Собираете информацию? Получите подробную презентацию в удобном формате, чтобы обсудить вариант с коллегами или переслать руководству!

Похожие предложения в других зданиях

БЕЗ КОМИССИИ ID: 270165 Рейтинг8.0 КлассB+

Москва, Малая Грузинская улица, 3

Улица 1905 года → 634 м
~ 6 мин
Арендная плата в месяц 6 216 000 ₽ 48 000 ₽/м² в год С учётом НДС
Характеристики 1 554 м² 6 - 8 этаж Готово к въезду
Преимущества
  • Класс B+
  • Пешком от метро
  • Кондиционирование и вентиляция
  • Свой паркинг

Предлагается в аренду офис класса B+ площадью 1554 кв. метров в бизнес-центре "Тропикано 2"... подробнее

Презентация по предложению

Собираете информацию? Получите подробную презентацию в удобном формате!

ВОЗМОЖНО ОСВОБОЖДЕНИЕ ID: 1288266 Рейтинг8.8 КлассА

Москва, Малый Конюшковский переулок, 2

Краснопресненская → 404 м
~ 4 мин
Арендная плата в месяц 5 044 875 ₽ 49 500 ₽/м² в год С учётом НДС
Характеристики 1 223 м² 1 этаж Готово к въезду
Преимущества
  • Класс А
  • Пешком от метро
  • Кондиционирование и вентиляция
  • Свой паркинг

Собственник сдает в долгосрочную прямую аренду офисный блок класса А площадью 1223 кв. метров в бизнес-центре "MOD Design"... подробнее

Презентация по предложению

Собираете информацию? Получите подробную презентацию в удобном формате!

БЕЗ КОМИССИИ ID: 1179174 Рейтинг9.3 КлассА

Москва, Новинский бульвар, 31

Баррикадная → 454 м
~ 5 мин
Арендная плата в месяц 7 336 267 ₽ 55 000 ₽/м² в год С учётом НДС
Характеристики 1 600 м² 5 этаж Готово к въезду
Преимущества
  • Класс А
  • Пешком от метро
  • Кондиционирование и вентиляция
  • Свой паркинг
  • Несколько провайдеров связи
  • Развитая инфраструктура

Предлагаем в долгосрочную аренду офис класса А площадью 1600 кв. метров в бизнес-центре "Новинский пассаж"... подробнее

Презентация по предложению

Собираете информацию? Получите подробную презентацию в удобном формате!

БЕЗ КОМИССИИ ID: 961237 Рейтинг8.3 КлассB

Москва, Шмитовский проезд, 3 с3

Улица 1905 года → 960 м
~ 10 мин
Арендная плата в месяц 6 600 000 ₽ 49 500 ₽/м² в год С учётом НДС
Характеристики 1 600 м² -1 - 3 этаж Готово к въезду
Преимущества
  • Класс B
  • Пешком от метро
  • Кондиционирование и вентиляция
  • Свой паркинг
  • Развитая инфраструктура

Предлагаем в прямую аренду офисный блок класса B площадью 1600 квадр. метров в бизнес-центре... подробнее

Презентация по предложению

Собираете информацию? Получите подробную презентацию в удобном формате!

ВОЗМОЖНО ОСВОБОЖДЕНИЕ ID: 293608 Рейтинг8.8 КлассА

Москва, Гранатный переулок, 12

Баррикадная → 757 м
~ 8 мин
Арендная плата в месяц 7 126 525 ₽ 63 300 ₽/м² в год С учётом НДС
Характеристики 1 351 м² 1 - 4 этаж Готово к въезду
Преимущества
  • Класс А
  • Пешком от метро
  • Кондиционирование и вентиляция
  • Свой паркинг

Сдаем в долгосрочную прямую аренду помещение под офис класса А площадью 1351 кв.м в недавно отреконструированном бизнес-центре... подробнее

Презентация по предложению

Собираете информацию? Получите подробную презентацию в удобном формате!

Посмотреть все похожие предложения
Отнеситесь рационально к процессу поиска нового офиса!

Просто ответьте на 3 вопроса, и наши специалисты сами предложат оптимальные варианты под ваш бюджет

.