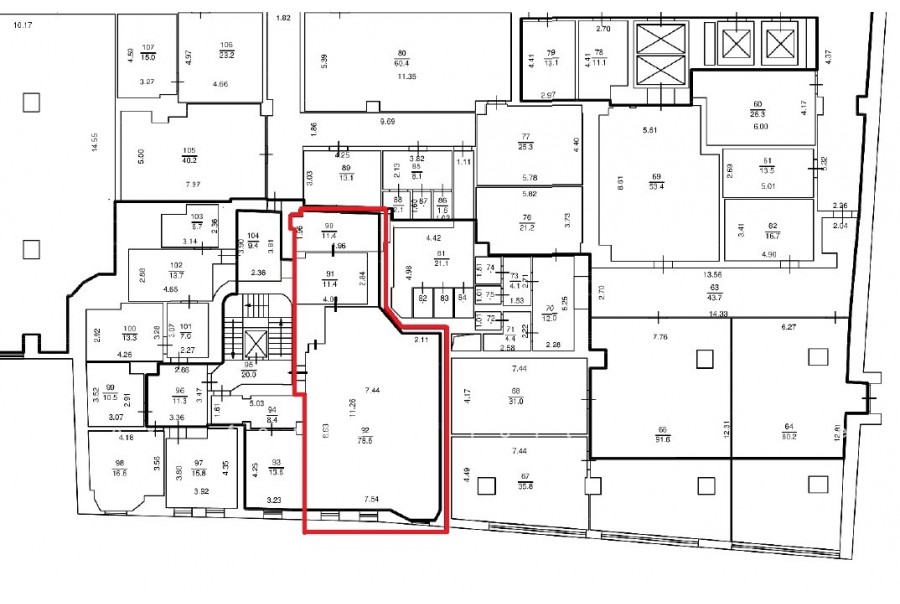
Аренда офиса 112 м²
Москва, Краснопролетарская улица, 16 с1
Хотите узнать больше о предложении?
Изучите предложение в подробной презентации и делитесь с коллегам для обсуждения! Введите Ваши данные, мы пришлем ее в течение нескольких минут!
Презентация по предложению
Собираете информацию? Получите подробную презентацию в удобном формате!
Описание
- Класс B
- Пешком от метро
- Кондиционирование и вентиляция
- Свой паркинг
- Несколько провайдеров связи
- Развитая инфраструктура
Москва, ЦАО, Краснопролетарская улица, 16 с1
Удобная локация здания:
- Автомобиль: близость транспортных магистралей, таких как Садовое Кольцо и других.
- Возможность аренды парковочных мест.
- Ближайшее метро: от метро "Новослободская" всего 7 мин пешком
Офис класса B:
- Помещение с отделкой, готово к въезду
- Вентиляция: Приточно-вытяжная вентиляция
- Кондиционирование: центральное
- Презентабельный центральный ресепшн
- Круглосуточная охрана и видеонаблюдение
- Развитая инфраструктура внутри здания
Что еще можно узнать о предложении:
1. Получите презентацию в течение 10 минут в Whatsapp или на почту с фотографиями и планировкой, чтобы обсудить данный вариант с коллегами или переслать руководству. Для этого позвоните по телефону, указанному в объявлении.
2. Ответим на любые Ваши вопросы, готовы обсуждать любые предложения по коммерческим условиям аренды помещения.
3. Оперативно организуем просмотр помещения с менеджерами на объекте или подготовим виртуальный тур.
Звоните нам в любое время. По будням мы сможем ответить на Ваши вопросы до 19:00. В выходные или вечернее время мы передадим Ваш контакт нашему менеджеру по аренде.
Коммерческие условия
О бизнес-центре
Расположение
Подробная презентацию по предложению
Собираете информацию? Получите подробную презентацию в удобном формате, чтобы обсудить вариант с коллегами или переслать руководству!
Похожие предложения в других зданиях
Москва, улица Малая Дмитровка, 23/15 с1
- Класс B
- Пешком от метро
- Кондиционирование и вентиляция
- Свой паркинг
Предлагается в долгосрочную прямую аренду офисный блок класса B площадью 123 квадратных метров в бизнес-центре... подробнее
Презентация по предложению
Собираете информацию? Получите подробную презентацию в удобном формате!
Хотите узнать больше о предложении?
Изучите предложение в подробной презентации и делитесь с коллегам для обсуждения! Введите Ваши данные, мы пришлем ее в течение нескольких минут!
Москва, улица Сущёвский Вал, 49 с1
- Класс B+
- Пешком от метро
- Новое строительство
- Кондиционирование и вентиляция
Предлагаем в долгосрочную прямую аренду офис класса B+ площадью 121 квадратных метров в новом бизнес-центре "JAZZ"... подробнее
Презентация по предложению
Собираете информацию? Получите подробную презентацию в удобном формате!
Хотите узнать больше о предложении?
Изучите предложение в подробной презентации и делитесь с коллегам для обсуждения! Введите Ваши данные, мы пришлем ее в течение нескольких минут!
 
                        Просто ответьте на 3 вопроса, и наши специалисты сами предложат оптимальные варианты под ваш бюджет
 
									
										 
									
										 
									
										 
									
										 
									
										 
									
										 
									
										 
									
										 
									
										 
									
										 
									
										 
									
										 
									
										 
									
										 
									
										 
									
										 
									
										 
									
										 
									
										 
									
										 
									
										 
									
										 
									
										 
									
										 
									
										 
									
										 
									
										 
									
										 
									
										 
									
										 
									
										 
									
										 
									
										 
									
										 
									
										 
																
						 
									
										 
									
										 
									
										 
									
										 
									
										 
									
										 
																
						 
									
										 
									
										 
									
										 
									
										 
									
										 
									
										 
																
						 
    