8.2
Смотреть все фото
БЕЗ КОМИССИИ ID: 282014 Рейтинг7.8 КлассB

Москва, Краснопролетарская улица, 16 с1

Новослободская → 668 м
~ 7 мин
Арендная плата в месяц 2 776 700 ₽ 42 500 ₽/м² в год С учётом НДС

Презентация по предложению

Собираете информацию? Получите подробную презентацию в удобном формате!

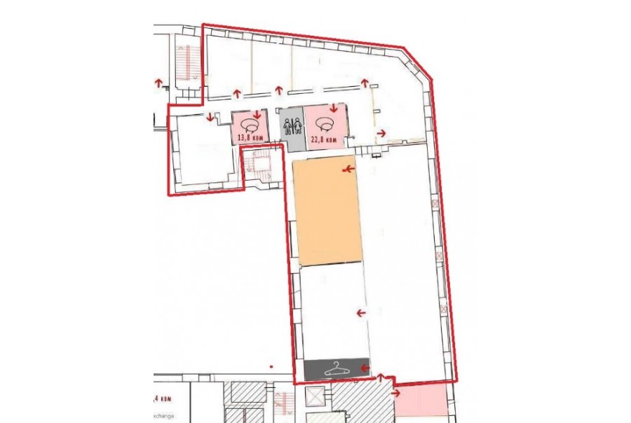
Площадь 784 м²
Состояние Готово к въезду
Планировка Смешанная
Этаж 6

Описание

Преимущества
  • Класс B
  • Пешком от метро
  • Кондиционирование и вентиляция
  • Свой паркинг
  • Несколько провайдеров связи
  • Развитая инфраструктура
Предлагаем в долгосрочную прямую аренду офисное помещение класса B общей площадью 784 квадратных метров в бизнес-центре "Красный Пролетарий".

Москва, ЦАО, Краснопролетарская улица, 16 с1

Удобная локация здания:
- Автомобиль: близость транспортных магистралей, таких как Садовое Кольцо и других.
- Возможность аренды парковочных мест.
- Ближайшее метро: от метро "Новослободская" всего 7 мин пешком

Офис класса B:
- Офис с отделкой, полностью готов к аренде
- Вентиляция: Приточно-вытяжная вентиляция
- Кондиционирование: центральное
- Презентабельный центральный ресепшн
- Круглосуточная охрана и видеонаблюдение
- Развитая инфраструктура внутри здания

Возможность заключения контракта в соответствии с 44ФЗ по госзакупкам.

Если предложение предварительно Вам подходит:

1. Получите презентацию в течение 10 минут в Whatsapp или на почту с фотографиями и планировкой, чтобы обсудить данный вариант с коллегами или переслать руководству. Для этого позвоните по телефону, указанному в объявлении.
2. Мы готовы ответить на любые Ваши вопросы о помещении и коммерческих условиях аренды.
3. Покажем помещение в удобное для Вас время с менеджером в здании, при необходимости подготовим виртуальный тур.

Звоните нам в любое время. По будням мы сможем ответить на Ваши вопросы до 19:00. В выходные или вечернее время мы передадим Ваш контакт нашему менеджеру по аренде.

Коммерческие условия

Арендная плата 1 633 330 ₽
Ставка арендной платы 42 500 ₽ м²/год
Эксплуатационные расходы Включены в ставку
Налоги С учётом НДС
Тип договора Прямая аренда
Срок договора от 11 месяцев
Размер платежей 1 месяц
Обеспечительный платеж 1 месяц
Статус Сдан

О бизнес-центре

Класс B
Этажность 6
Лифты Есть
Общая площадь 55 500 м²
Паркинг Наземный
Вентиляция приточно-вытяжная
Кондиционирование центральное
Телекоммуникации Интернет/Телефония

Расположение

Подробная презентацию по предложению

Собираете информацию? Получите подробную презентацию в удобном формате, чтобы обсудить вариант с коллегами или переслать руководству!

Похожие предложения в других зданиях

ВОЗМОЖНО ОСВОБОЖДЕНИЕ ID: 1222906 Рейтинг9.1 КлассА

Москва, Краснопролетарская улица, 4

Новослободская → 879 м
~ 9 мин
Арендная плата в месяц 3 254 797 ₽ 45 600 ₽/м² в год С учётом НДС
Характеристики 856 м² 3 этаж Готово к въезду
Преимущества
  • Класс А
  • Пешком от метро
  • Кондиционирование и вентиляция
  • Свой паркинг
  • Развитая инфраструктура

Сдается в прямую аренду офис класса А площадью 856 квадратных метров в бизнес-центре "Эрмитаж Плаза"... подробнее

>

Виртуальный тур

Презентация по предложению

Собираете информацию? Получите подробную презентацию в удобном формате!

БЕЗ КОМИССИИ ID: 1378472 Рейтинг8.8 КлассА

Москва, Краснопролетарская улица, 36

Новослободская → 412 м
~ 4 мин
Арендная плата в месяц 3 700 667 ₽ 61 000 ₽/м² в год С учётом НДС
Характеристики 728 м² 3 этаж Готово к въезду
Преимущества
  • Класс А
  • Пешком от метро
  • Кондиционирование и вентиляция
  • Свой паркинг
  • Развитая инфраструктура

Предлагается в прямую аренду помещение под офис класса А площадью 728 кв. метров в бизнес-центре "Амбер Плаза"... подробнее

Презентация по предложению

Собираете информацию? Получите подробную презентацию в удобном формате!

БЕЗ КОМИССИИ ID: 1302136 Рейтинг8.9 КлассА

Москва, Долгоруковская улица, 7

Новослободская → 687 м
~ 7 мин
Арендная плата в месяц 2 920 680 ₽ 48 700 ₽/м² в год С учётом НДС
Характеристики 720 м² 3 этаж Готово к въезду
Преимущества
  • Класс А
  • Пешком от метро
  • Кондиционирование и вентиляция
  • Развитая инфраструктура

Предлагается в долгосрочную прямую аренду помещение под офис класса А общей площадью 720 квадр. метров в бизнес-центре "Садовая Плаза"... подробнее

Презентация по предложению

Собираете информацию? Получите подробную презентацию в удобном формате!

БЕЗ КОМИССИИ ID: 1302135 Рейтинг8.9 КлассА

Москва, Долгоруковская улица, 7

Новослободская → 687 м
~ 7 мин
Арендная плата в месяц 2 794 929 ₽ 48 700 ₽/м² в год С учётом НДС
Характеристики 689 м² 3 этаж Готово к въезду
Преимущества
  • Класс А
  • Пешком от метро
  • Кондиционирование и вентиляция
  • Развитая инфраструктура

Предлагаем в прямую аренду офисное помещение класса А общей площадью 689 кв.м в бизнес-центре "Садовая Плаза"... подробнее

Презентация по предложению

Собираете информацию? Получите подробную презентацию в удобном формате!

БЕЗ КОМИССИИ ID: 344232 Рейтинг7.7 КлассB

Москва, улица Каретный Ряд, 8

Маяковская → 946 м
~ 9 мин
Арендная плата в месяц 3 000 000 ₽ 40 000 ₽/м² в год С учётом НДС
Характеристики 900 м² 3 этаж Готово к въезду
Преимущества
  • Класс B
  • Пешком от метро
  • Кондиционирование и вентиляция

Сдается в долгосрочную аренду офисное помещение класса B общей площадью 900 кв.м в бизнес-центре... подробнее

Презентация по предложению

Собираете информацию? Получите подробную презентацию в удобном формате!

Посмотреть все похожие предложения
Отнеситесь рационально к процессу поиска нового офиса!

Просто ответьте на 3 вопроса, и наши специалисты сами предложат оптимальные варианты под ваш бюджет

.