8.2
Смотреть все фото
БЕЗ КОМИССИИ ID: 1378403 Рейтинг6.0 КлассB

Москва, Кривоколенный переулок, 5 с4

Тургеневская → 540 м
~ 5 мин
Арендная плата в месяц 140 000 ₽ 28 500 ₽/м² в год Упрощённая система налогообложения

Презентация по предложению

Собираете информацию? Получите подробную презентацию в удобном формате!

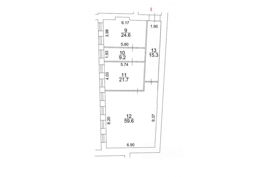
Площадь 59 м²
Состояние Готово к въезду
Планировка Смешанная
Этаж 4

Описание

Преимущества
  • Класс B
  • Пешком от метро
  • Кондиционирование и вентиляция
  • Развитая инфраструктура
Предлагается в прямую аренду офис класса B площадью 59 кв.м в историческом бизнес-центре.

Москва, ЦАО, Кривоколенный переулок, 5 с4

Удобное расположение в пределах Садового кольца:
- Ближайшее метро: от метро "Сретенский бульвар" всего 5 мин пешком

Офис класса B:
- Офис с отделкой, полностью готов к аренде
- Вентиляция: Приточно-вытяжная вентиляция


Если предложение предварительно Вам подходит:

1. Мы подготовили презентацию с информацией о помещении, фотографиями и планировкой, чтобы Вы могли поделиться ей с коллегами или руководством. Попросите об этом нашего менеджера по телефону в объявлении.
2. Ответим на любые Ваши вопросы, готовы обсуждать любые предложения по коммерческим условиям аренды помещения.
3. Проводим показы ежедневно, договоримся на удобное для Вас время. Можем организовать виртуальный тур по офисному блоку.

Звоните нам в любое время. По будням мы сможем ответить на Ваши вопросы до 19:00. В выходные или вечернее время мы передадим Ваш контакт нашему менеджеру по аренде.

Коммерческие условия

Арендная плата 140 000 ₽
Ставка арендной платы 28 500 ₽ м²/год
Эксплуатационные расходы Включены в ставку
Налоги Упрощённая система налогообложения
Тип договора Прямая аренда
Срок договора от 11 месяцев
Размер платежей 1 месяц
Обеспечительный платеж 2 месяц
Статус Свободен

О бизнес-центре

Класс B
Этажность 5
Лифты Нет
Общая площадь 2 906 м²
Год постройки 1917
Паркинг Наземный
Вентиляция приточно-вытяжная
Кондиционирование сплит-системы
Телекоммуникации Интернет/Телефония

Расположение

Подробная презентацию по предложению

Собираете информацию? Получите подробную презентацию в удобном формате, чтобы обсудить вариант с коллегами или переслать руководству!

Похожие предложения в других зданиях

БЕЗ КОМИССИИ ID: 1302973 Рейтинг6.8 КлассB

Москва, Милютинский переулок, 18А

Сретенский бульвар → 508 м
~ 5 мин
Арендная плата в месяц 157 799 ₽ 33 800 ₽/м² в год С учётом НДС
Характеристики 56 м² 3 этаж Под отделку
Преимущества
  • Класс B
  • Пешком от метро
  • Кондиционирование и вентиляция
  • Свой паркинг
  • Развитая инфраструктура

Сдается в долгосрочную прямую аренду офисное помещение класса B общей площадью 56 квадратных метров в историческом бизнес-центре... подробнее

Презентация по предложению

Собираете информацию? Получите подробную презентацию в удобном формате!

БЕЗ КОМИССИИ ID: 1376059 Рейтинг7.3 КлассB

Москва, Малая Сухаревская площадь, 2 с2

Сухаревская → 381 м
~ 4 мин
Арендная плата в месяц 120 001 ₽ 26 200 ₽/м² в год Упрощённая система налогообложения
Характеристики 55 м² 4 этаж Готово к въезду
Преимущества
  • Класс B
  • Пешком от метро
  • Кондиционирование и вентиляция

Предлагается в долгосрочную прямую аренду офисный блок класса B площадью 55 квадр. метров в бизнес-центре... подробнее

Презентация по предложению

Собираете информацию? Получите подробную презентацию в удобном формате!

БЕЗ КОМИССИИ ID: 1373651 Рейтинг6.5 КлассB

Москва, Яузский бульвар, 13

Китай-город → 843 м
~ 8 мин
Арендная плата в месяц 130 500 ₽ 27 000 ₽/м² в год Упрощённая система налогообложения
Характеристики 58 м² -1 этаж Готово к въезду
Преимущества
  • Класс B
  • Пешком от метро
  • Кондиционирование и вентиляция

Предлагается в долгосрочную прямую аренду офис класса B общей площадью 58 кв. метров в бизнес-центре... подробнее

Презентация по предложению

Собираете информацию? Получите подробную презентацию в удобном формате!

Посмотреть все похожие предложения
Отнеситесь рационально к процессу поиска нового офиса!

Просто ответьте на 3 вопроса, и наши специалисты сами предложат оптимальные варианты под ваш бюджет

.