8.2

Виртуальный тур

Смотреть все фото
БЕЗ КОМИССИИ ID: 1313265 Рейтинг9.0 КлассА
Бизнес-центр «Кругозор»

Аренда офиса 1000 м²

Москва, улица Обручева, 30/1 с1

Калужская → 799 м
~ 8 мин
Арендная плата в месяц 2 690 100 ₽ 32 300 ₽/м² в год С учётом НДС

Презентация по предложению

Собираете информацию? Получите подробную презентацию в удобном формате!

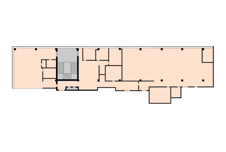
Площадь 1 000 м²
Состояние Готово к въезду
Планировка Смешанная
Этаж 5

Описание

Преимущества
  • Класс А
  • Пешком от метро
  • Кондиционирование и вентиляция
  • Свой паркинг
  • Несколько провайдеров связи
  • Развитая инфраструктура
Предлагается в долгосрочную аренду помещение под офис класса А площадью 1000 квадр. метров в бизнес-центре "Кругозор".

Москва, ЮЗАО, улица Обручева, 30 Удобная локация здания:
- Автомобиль: близость транспортных магистралей, таких как Ленинский проспект, Профсоюзная улица и других.
- Возможность аренды парковочных мест.
- Ближайшее метро: от метро "Калужская" всего 8 мин пешком

Офис класса А:
- Помещение готово к въезду
- Вентиляция: Приточно-вытяжная вентиляция
- Кондиционирование: центральное
- Презентабельный центральный ресепшн
- Круглосуточная охрана и видеонаблюдение
- Развитая инфраструктура внутри здания

Возможность заключения контракта в соответствии с 44ФЗ по госзакупкам.

Что еще можно узнать о предложении:

1. Получите презентацию в течение 10 минут в Whatsapp или на почту с фотографиями и планировкой, чтобы обсудить данный вариант с коллегами или переслать руководству. Для этого позвоните по телефону, указанному в объявлении.
2. Мы готовы ответить на любые Ваши вопросы о помещении и коммерческих условиях аренды.
3.

Вы можете позвонить нам в любое время. Мы ответим на Ваши вопросы по будням до 19:00, а поздно вечером или в выходные зафиксируем Ваш контакт и перезвоним в рабочее время.

Коммерческие условия

Арендная плата 2 562 000 ₽
Ставка арендной платы 32 300 ₽ м²/год
Эксплуатационные расходы Включены в ставку
Налоги С учётом НДС
Тип договора Субаренда
Срок договора от 11 месяцев
Размер платежей 3 месяц
Обеспечительный платеж 2 месяц
Статус Сдан

О бизнес-центре

Класс А
Этажность 14
Лифты Есть
Общая площадь 16 337 м²
Год постройки 2007
Паркинг Наземный крытый
Вентиляция приточно-вытяжная
Кондиционирование центральное
Телекоммуникации Интернет/Телефония

Расположение

Подробная презентацию по предложению

Собираете информацию? Получите подробную презентацию в удобном формате, чтобы обсудить вариант с коллегами или переслать руководству!

Похожие предложения в других зданиях

БЕЗ КОМИССИИ ID: 1262836 Рейтинг8.5 КлассB+

Москва, улица Обручева, 23 к3

Калужская → 766 м
~ 8 мин
Арендная плата в месяц 2 145 777 ₽ 28 000 ₽/м² в год С учётом НДС
Характеристики 921 м² 3 этаж Готово к въезду
Преимущества
  • Класс B+
  • Пешком от метро
  • Кондиционирование и вентиляция
  • Свой паркинг
  • Несколько провайдеров связи
  • Развитая инфраструктура

Собственник сдает в долгосрочную прямую аренду офисное помещение класса B+ площадью 921 квадр. метров в бизнес-центре "Газфилд"... подробнее

Презентация по предложению

Собираете информацию? Получите подробную презентацию в удобном формате!

БЕЗ КОМИССИИ ID: 1302835 Рейтинг9.1 КлассB+

Москва, Профсоюзная улица, 65 к1

Калужская → 309 м
~ 3 мин
Арендная плата в месяц 2 686 044 ₽ 29 500 ₽/м² в год С учётом НДС
Характеристики 1 094 м² 16 этаж Готово к въезду
Преимущества
  • Класс B+
  • Пешком от метро
  • Кондиционирование и вентиляция
  • Свой паркинг
  • Несколько провайдеров связи
  • Развитая инфраструктура

Предлагаем в прямую аренду офисный блок класса А общей площадью 1094 квадр. метров в бизнес-центре "Лотте"... подробнее

>

Виртуальный тур

Презентация по предложению

Собираете информацию? Получите подробную презентацию в удобном формате!

БЕЗ КОМИССИИ ID: 1327851 Рейтинг7.9 КлассB

Москва, Воронцовский парк, 4

Воронцовская → 816 м
~ 8 мин
Арендная плата в месяц 2 950 005 ₽ 34 700 ₽/м² в год Упрощённая система налогообложения
Характеристики 1 019 м² -1 - 3 этаж Готово к въезду
Преимущества
  • Класс B
  • Пешком от метро
  • Кондиционирование и вентиляция
  • Свой паркинг

Предлагаем в долгосрочную прямую аренду здание под офис класса B площадью 1019 квадратных метров. .. подробнее

>

Виртуальный тур

Презентация по предложению

Собираете информацию? Получите подробную презентацию в удобном формате!

БЕЗ КОМИССИИ ID: 1263375 Рейтинг7.9 КлассB

Москва, Воронцовский парк, 4

Воронцовская → 816 м
~ 8 мин
Арендная плата в месяц 2 639 928 ₽ 34 100 ₽/м² в год С учётом НДС
Характеристики 928 м² -1 - 3 этаж Готово к въезду
Преимущества
  • Класс B
  • Пешком от метро
  • Кондиционирование и вентиляция
  • Свой паркинг

Предлагается в прямую аренду здание под офис класса B площадью 928 кв. метров. .. подробнее

>

Виртуальный тур

Презентация по предложению

Собираете информацию? Получите подробную презентацию в удобном формате!

БЕЗ КОМИССИИ ID: 1282637 Рейтинг9.0 КлассА

Москва, улица Удальцова, 1А

Новаторская → 313 м
~ 3 мин
Арендная плата в месяц 2 911 230 ₽ 32 300 ₽/м² в год С учётом НДС
Характеристики 1 080 м² 2 - 6 этаж Готово к въезду
Преимущества
  • Класс А
  • Пешком от метро
  • Кондиционирование и вентиляция
  • Свой паркинг
  • Развитая инфраструктура

Сдаем в долгосрочную аренду помещение под офис класса А площадью 1080 квадратных метров в бизнес-центре "Удальцова Плаза"... подробнее

Презентация по предложению

Собираете информацию? Получите подробную презентацию в удобном формате!

Посмотреть все похожие предложения
Отнеситесь рационально к процессу поиска нового офиса!

Просто ответьте на 3 вопроса, и наши специалисты сами предложат оптимальные варианты под ваш бюджет

.