8.2
Смотреть все фото
БЕЗ КОМИССИИ ID: 1266476 Рейтинг8.7 КлассА

Москва, Крылатская улица, 15

Крылатское → 3.04 км
~ 15 мин
Арендная плата в месяц 15 121 200 ₽ 56 900 ₽/м² в год С учётом НДС

Презентация по предложению

Собираете информацию? Получите подробную презентацию в удобном формате!

Площадь 3 189 м²
Состояние Готово к въезду
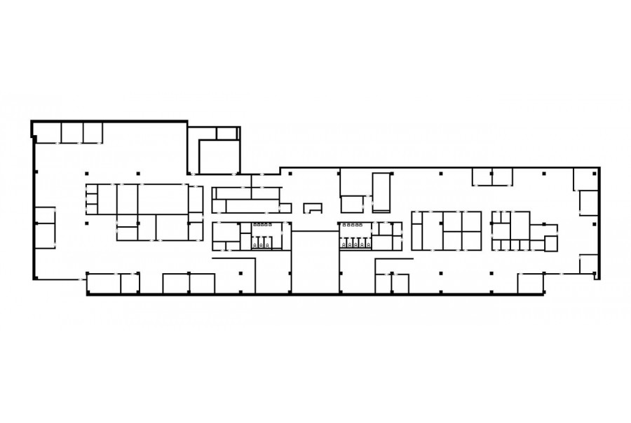
Планировка Смешанная
Этаж 3

Описание

Преимущества
  • Класс А
  • Кондиционирование и вентиляция
  • Свой паркинг
Сдаем в долгосрочную аренду помещение под офис класса А общей площадью 3189 квадр. метров в новом бизнес-центре "Крылатские холмы II".

Москва, ЗАО, Крылатская улица, 15

Характеристики местоположения:
- Автомобиль: близость транспортных магистралей, таких как Проспект Маршала Жукова и других.
- Возможность аренды парковочных мест.
- Ближайшее метро: метро "Крылатское", далее городской транспорт до здания

Офис класса А:
- Помещение готово к въезду
- Вентиляция: Приточно-вытяжная вентиляция
- Кондиционирование: центральное


Если предложение предварительно Вам подходит:

1. Мы подготовили презентацию с информацией о помещении, фотографиями и планировкой, чтобы Вы могли поделиться ей с коллегами или руководством. Попросите об этом нашего менеджера по телефону в объявлении.
2. Ответим на любые Ваши вопросы, готовы обсуждать любые предложения по коммерческим условиям аренды помещения.
3. Оперативно организуем просмотр помещения с менеджерами на объекте или подготовим виртуальный тур.

Звоните нам в любое время. По будням мы сможем ответить на Ваши вопросы до 19:00. В выходные или вечернее время мы передадим Ваш контакт нашему менеджеру по аренде.

Коммерческие условия

Арендная плата 13 746 720 ₽
Ставка арендной платы 56 900 ₽ м²/год
Эксплуатационные расходы Включены в ставку
Налоги С учётом НДС
Тип договора Прямая аренда
Срок договора Долгосрочный
Размер платежей 1 месяц
Обеспечительный платеж 3 месяц
Статус Сдан

О бизнес-центре

Класс А
Этажность 6
Лифты Есть
Общая площадь 33 500 м²
Год постройки 2015
Паркинг Наземный
Вентиляция приточно-вытяжная
Кондиционирование центральное
Телекоммуникации Интернет/Телефония

Расположение

Подробная презентацию по предложению

Собираете информацию? Получите подробную презентацию в удобном формате, чтобы обсудить вариант с коллегами или переслать руководству!

Отнеситесь рационально к процессу поиска нового офиса!

Просто ответьте на 3 вопроса, и наши специалисты сами предложат оптимальные варианты под ваш бюджет

.