8.2
Смотреть все фото
ВОЗМОЖНО ОСВОБОЖДЕНИЕ ID: 1310930 Рейтинг8.3 КлассB+
Бизнес-центр «Крылатский»

Аренда офиса 247 м²

Москва, Осенний бульвар, 23

Крылатское → 719 м
~ 7 мин
Арендная плата в месяц по запросу потенциального арендатора Срок освобождение в течение 3 месяцев

Информация по помещению

Ознакомьтесь с дополнительной информацией по помещению и коммерческим условиям!

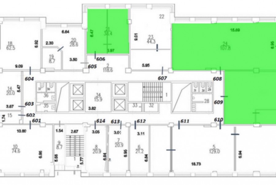
Площадь 247 м²
Планировка Кабинетная
Этаж 7

Описание

Преимущества
  • Класс B+
  • Пешком от метро
  • Кондиционирование и вентиляция
  • Свой паркинг
  • Развитая инфраструктура

Коммерческие условия

Арендная плата по запросу
Ставка арендной платы по запросу
Эксплуатационные расходы Включены в ставку
Налоги С учётом НДС
Тип договора Прямая аренда
Срок договора от 11 месяцев
Размер платежей 1 месяц
Обеспечительный платеж 3 месяц
Статус Сдан

О бизнес-центре

Класс B+
Этажность 14
Лифты Есть
Общая площадь 18 400 м²
Год постройки 2001
Паркинг Подземный
Вентиляция приточно-вытяжная
Кондиционирование центральное
Телекоммуникации Интернет/Телефония

Расположение

Информация по помещению

Получите дополнительную информацию по помещению и коммерческом условиям!

Похожие предложения в других зданиях

БЕЗ КОМИССИИ ID: 1304926 Рейтинг6.7 КлассB

Москва, Осенняя улица, 23

Крылатское → 1.18 км
~ 12 мин
Арендная плата в месяц 682 477 ₽ 37 200 ₽/м² в год С учётом НДС
Характеристики 220 м² 10 этаж Готово к въезду
Преимущества
  • Класс B
  • Пешком от метро
  • Кондиционирование и вентиляция
  • Свой паркинг
  • Развитая инфраструктура

Предлагаем в прямую аренду офисный блок класса B общей площадью 220 кв.м в бизнес-центре... подробнее

Презентация по предложению

Собираете информацию? Получите подробную презентацию в удобном формате!

БЕЗ КОМИССИИ ID: 1380615 Рейтинг8.3 КлассB+

Москва, Осенний бульвар, 23

Крылатское → 719 м
~ 7 мин
Арендная плата в месяц 966 117 ₽ 43 400 ₽/м² в год С учётом НДС
Характеристики 267 м² 7 - 13 этаж Готово к въезду
Преимущества
  • Класс B+
  • Пешком от метро
  • Кондиционирование и вентиляция
  • Свой паркинг
  • Развитая инфраструктура

Сдается в прямую аренду помещение под офис класса B+ общей площадью 267 квадратных метров в бизнес-центре "Крылатский"... подробнее

Презентация по предложению

Собираете информацию? Получите подробную презентацию в удобном формате!

Посмотреть все похожие предложения
Отнеситесь рационально к процессу поиска нового офиса!

Просто ответьте на 3 вопроса, и наши специалисты сами предложат оптимальные варианты под ваш бюджет

.