8.2
Смотреть все фото
БЕЗ КОМИССИИ ID: 228800 Рейтинг8.7 КлассB+

Москва, Турчанинов переулок, 6 с2

Парк культуры → 258 м
~ 3 мин
Арендная плата в месяц 1 512 700 ₽ 26 500 ₽/м² в год С учётом НДС

Презентация по предложению

Собираете информацию? Получите подробную презентацию в удобном формате!

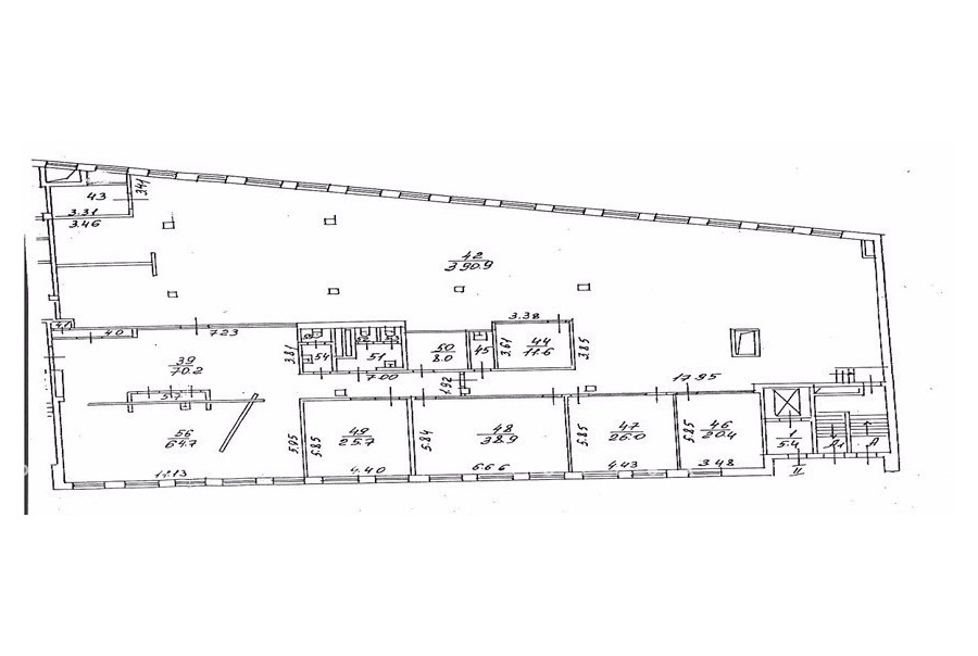
Площадь 685 м²
Состояние Готово к въезду
Планировка Открытая
Этаж 1

Описание

Преимущества
  • Класс B+
  • Пешком от метро
  • Кондиционирование и вентиляция
  • Свой паркинг
Предлагается в прямую аренду офисный блок класса B+ общей площадью 685 квадр. метров в бизнес-центре "Крымский мост".

Москва, ЦАО, Турчанинов переулок, 6 с2

Удобное расположение в пределах Садового кольца:
- Возможность аренды парковочных мест.
- Ближайшее метро: буквально 2 мин пешком от метро "Парк культуры"

Офис класса B+:
- Помещение готово к въезду
- Вентиляция: Приточно-вытяжная вентиляция
- Кондиционирование: центральное

Возможность заключения контракта в соответствии с 44ФЗ по госзакупкам.

Что еще можно узнать о предложении:

1. Мы подготовили презентацию с информацией о помещении, фотографиями и планировкой, чтобы Вы могли поделиться ей с коллегами или руководством. Попросите об этом нашего менеджера по телефону в объявлении.
2. Задайте любые вопросы менеджеру по телефону, готовы обсуждать любые предложения по финансовым условиям договора аренды.
3. Покажем помещение в удобное для Вас время с менеджером в здании, при необходимости подготовим виртуальный тур.

Звоните нам в любое время. По будням мы сможем ответить на Ваши вопросы до 19:00. В выходные или вечернее время мы передадим Ваш контакт нашему менеджеру по аренде.

Коммерческие условия

Арендная плата 2 333 000 ₽
Ставка арендной платы 26 500 ₽ м²/год
Эксплуатационные расходы Включены в ставку
Налоги С учётом НДС
Тип договора Прямая аренда
Срок договора от 11 месяцев
Размер платежей 1 месяц
Обеспечительный платеж 2 месяц
Статус Сдан

О бизнес-центре

Класс B+
Этажность 5
Лифты Есть
Общая площадь 2 558 м²
Год постройки 2004
Паркинг Подземный
Вентиляция приточно-вытяжная
Кондиционирование центральное
Телекоммуникации Интернет/Телефония

Расположение

Подробная презентацию по предложению

Собираете информацию? Получите подробную презентацию в удобном формате, чтобы обсудить вариант с коллегами или переслать руководству!

Похожие предложения в других зданиях

БЕЗ КОМИССИИ ID: 1874 Рейтинг9.0 КлассА

Москва, Коробейников переулок, 24

Парк культуры → 545 м
~ 5 мин
Арендная плата в месяц 1 676 250 ₽ 29 800 ₽/м² в год С учётом НДС
Характеристики 675 м² 3 этаж Готово к въезду
Преимущества
  • Класс А
  • Пешком от метро
  • Кондиционирование и вентиляция
  • Свой паркинг

Собственник сдает помещение под офис класса А общей площадью 675 кв.м в бизнес-центре "Чайка Плаза 6"... подробнее

Презентация по предложению

Собираете информацию? Получите подробную презентацию в удобном формате!

БЕЗ КОМИССИИ ID: 133968 Рейтинг8.2 КлассB+

Москва, Бутиковский переулок, 14 с1

Парк культуры → 758 м
~ 8 мин
Арендная плата в месяц 1 862 500 ₽ 30 000 ₽/м² в год С учётом НДС
Характеристики 745 м² 1 - 3 этаж Готово к въезду
Преимущества
  • Класс B+
  • Пешком от метро
  • Кондиционирование и вентиляция
  • Свой паркинг
  • Несколько провайдеров связи

Сдается в долгосрочную прямую аренду помещение под офис класса B+ площадью 745 кв.м в историческом недавно отреконструированном бизнес-центре "Бутиковский"... подробнее

Презентация по предложению

Собираете информацию? Получите подробную презентацию в удобном формате!

БЕЗ КОМИССИИ ID: 307404 Рейтинг8.2 КлассB+

Москва, Зубовский бульвар, 17

Парк культуры → 259 м
~ 3 мин
Арендная плата в месяц 1 850 000 ₽ 30 000 ₽/м² в год С учётом НДС
Характеристики 740 м² 8 - 9 этаж Готово к въезду
Преимущества
  • Класс B+
  • Пешком от метро
  • Кондиционирование и вентиляция
  • Свой паркинг

Сдается в прямую аренду помещение под офис класса B+ общей площадью 740 квадр. метров в бизнес-центре "Workki"... подробнее

Презентация по предложению

Собираете информацию? Получите подробную презентацию в удобном формате!

БЕЗ КОМИССИИ ID: 79830 Рейтинг8.3 КлассА

Москва, улица Остоженка, 17

Кропоткинская → 569 м
~ 6 мин
Арендная плата в месяц 1 875 000 ₽ 30 000 ₽/м² в год С учётом НДС
Характеристики 750 м² 0 - 2 этаж Готово к въезду
Преимущества
  • Класс А
  • Пешком от метро
  • Кондиционирование и вентиляция
  • Свой паркинг

Сдаем в прямую аренду офисный блок класса А площадью 750 кв. метров в историческом бизнес-центре "Паллау-ОСТ"... подробнее

Презентация по предложению

Собираете информацию? Получите подробную презентацию в удобном формате!

БЕЗ КОМИССИИ ID: 14682 Рейтинг8.3 КлассB+

Москва, улица Тимура Фрунзе, 20

Парк культуры → 532 м
~ 5 мин
Арендная плата в месяц 1 563 333 ₽ 26 800 ₽/м² в год С учётом НДС
Характеристики 700 м² 2 этаж Готово к въезду
Преимущества
  • Класс B+
  • Пешком от метро
  • Кондиционирование и вентиляция
  • Свой паркинг
  • Развитая инфраструктура

Предлагаем в долгосрочную прямую аренду офисный блок класса B+ общей площадью 700 кв.м в бизнес-центре "Строганов"... подробнее

Презентация по предложению

Собираете информацию? Получите подробную презентацию в удобном формате!

Посмотреть все похожие предложения
Отнеситесь рационально к процессу поиска нового офиса!

Просто ответьте на 3 вопроса, и наши специалисты сами предложат оптимальные варианты под ваш бюджет

.