8.2

Виртуальный тур

Смотреть все фото
ВОЗМОЖНО ОСВОБОЖДЕНИЕ ID: 1262152 Рейтинг5.7 КлассB

Москва, улица Кржижановского, 21/33 к1

Профсоюзная → 1 км
~ 10 мин
Арендная плата в месяц по запросу потенциального арендатора Срок освобождение в течение 3 месяцев

Информация по помещению

Ознакомьтесь с дополнительной информацией по помещению и коммерческим условиям!

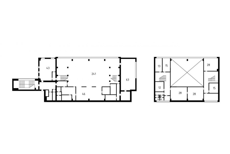
Площадь 787 м²
Планировка Смешанная
Этаж 1 - 2

Описание

Преимущества
  • Класс B
  • Пешком от метро
  • Кондиционирование и вентиляция

Коммерческие условия

Арендная плата по запросу
Ставка арендной платы по запросу
Эксплуатационные расходы Включены в ставку
Налоги С учётом НДС
Тип договора Прямая аренда
Срок договора от 11 месяцев
Размер платежей 1 месяц
Обеспечительный платеж 2 месяц
Статус Сдан

О бизнес-центре

Класс B
Этажность 5
Лифты Есть
Общая площадь 5 500 м²
Паркинг Стихийный
Вентиляция естественная
Кондиционирование сплит-системы
Телекоммуникации Интернет/Телефония

Расположение

Информация по помещению

Получите дополнительную информацию по помещению и коммерческом условиям!

Похожие предложения в других зданиях

БЕЗ КОМИССИИ ID: 1029729 Рейтинг7.7 КлассB

Москва, Профсоюзная улица, 25А

Профсоюзная → 515 м
~ 5 мин
Арендная плата в месяц 1 677 083 ₽ 25 000 ₽/м² в год С учётом НДС
Характеристики 805 м² 3 этаж Готово к въезду
Преимущества
  • Класс B
  • Пешком от метро
  • Кондиционирование и вентиляция
  • Свой паркинг
  • Развитая инфраструктура

Сдается в долгосрочную аренду офисное помещение класса B общей площадью 805 кв. метров в бизнес-центре "Профсоюзная 25А"... подробнее

Презентация по предложению

Собираете информацию? Получите подробную презентацию в удобном формате!

БЕЗ КОМИССИИ ID: 933 Рейтинг8.3 КлассА

Москва, Севастопольский проспект, 47

Нахимовский проспект → 1.57 км
~ 16 мин
Арендная плата в месяц 1 200 000 ₽ 20 000 ₽/м² в год С учётом НДС
Характеристики 720 м² 6 этаж Готово к въезду
Преимущества
  • Класс А
  • Пешком от метро
  • Кондиционирование и вентиляция
  • Свой паркинг
  • Несколько провайдеров связи

Сдается в долгосрочную аренду офис класса А площадью 720 кв.м в бизнес-центре "Нахимов"... подробнее

Презентация по предложению

Собираете информацию? Получите подробную презентацию в удобном формате!

БЕЗ КОМИССИИ ID: 1232403 Рейтинг7.7 КлассB+

Москва, Большая Черёмушкинская улица, 13 с1

Крымская → 1.16 км
~ 12 мин
Арендная плата в месяц 1 576 969 ₽ 23 600 ₽/м² в год С учётом НДС
Характеристики 801 м² 5 этаж Готово к въезду
Преимущества
  • Класс B+
  • Пешком от метро
  • Кондиционирование и вентиляция
  • Свой паркинг
  • Развитая инфраструктура

Предлагается в долгосрочную аренду помещение под офис класса B+ общей площадью 801 кв. метров в недавно отреконструированном бизнес-центре... подробнее

>

Виртуальный тур

Презентация по предложению

Собираете информацию? Получите подробную презентацию в удобном формате!

БЕЗ КОМИССИИ ID: 186678 Рейтинг8.0 КлассB+

Москва, Большая Черёмушкинская улица, 13 с4

Крымская → 1.08 км
~ 11 мин
Арендная плата в месяц 1 554 667 ₽ 22 000 ₽/м² в год С учётом НДС
Характеристики 848 м² 1 - 3 этаж Готово к въезду
Преимущества
  • Класс B+
  • Пешком от метро
  • Кондиционирование и вентиляция
  • Свой паркинг

Сдается в прямую аренду офис класса B+ площадью 848 кв. метров в новом недавно отреконструированном бизнес-центре "Березка"... подробнее

Презентация по предложению

Собираете информацию? Получите подробную презентацию в удобном формате!

ВОЗМОЖНО ОСВОБОЖДЕНИЕ ID: 164038 Рейтинг7.7 КлассB+

Москва, улица Вавилова, 47А

Академическая → 1.04 км
~ 10 мин
Арендная плата в месяц 1 375 000 ₽ 22 000 ₽/м² в год С учётом НДС
Характеристики 750 м² 4 этаж Готово к въезду
Преимущества
  • Класс B+
  • Пешком от метро
  • Кондиционирование и вентиляция
  • Свой паркинг
  • Несколько провайдеров связи

Сдается в долгосрочную аренду офисное помещение класса B+ площадью 750 квадр. метров в бизнес-центре... подробнее

Презентация по предложению

Собираете информацию? Получите подробную презентацию в удобном формате!

Посмотреть все похожие предложения
Отнеситесь рационально к процессу поиска нового офиса!

Просто ответьте на 3 вопроса, и наши специалисты сами предложат оптимальные варианты под ваш бюджет

.