8.2
Смотреть все фото
БЕЗ КОМИССИИ ID: 480927 Рейтинг7.9 КлассB+
Бизнес-центр «Куликовский»

Аренда офиса 2600 м²

Москва, улица Ленинская Слобода, 26 с3

Автозаводская → 393 м
~ 4 мин
Арендная плата в месяц 5 416 700 ₽ 25 000 ₽/м² в год С учётом НДС

Презентация по предложению

Собираете информацию? Получите подробную презентацию в удобном формате!

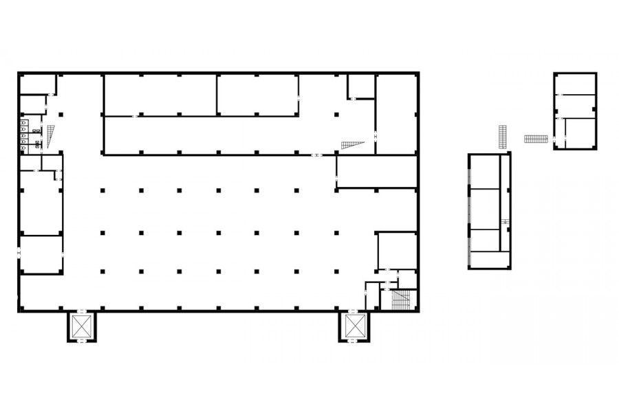
Площадь 2 600 м²
Состояние Под отделку
Планировка Смешанная
Этаж 1

Описание

Преимущества
  • Класс B+
  • Пешком от метро
  • Кондиционирование и вентиляция
  • Свой паркинг
  • Развитая инфраструктура
Предлагаем в долгосрочную аренду помещение под офис класса B+ площадью 2600 квадр. метров в бизнес-центре "Куликовский".

Москва, ЮАО, улица Ленинская Слобода, 26 с3

Удобное расположение здания для всех видов транспорта:
- Автомобиль: близость транспортных магистралей, таких как Третье Транспортное Кольцо, Проспект Андропова и других.
- Возможность аренды парковочных мест.
- Ближайшее метро: от метро "Автозаводская" всего 5 мин пешком

Офис класса B+:
- Помещение без отделки
- Вентиляция: Приточно-вытяжная вентиляция
- Кондиционирование: сплит-системы
- Круглосуточная охрана и видеонаблюдение
- Развитая инфраструктура внутри здания

Возможность заключения контракта в соответствии с 44ФЗ по госзакупкам.

Что еще можно узнать о предложении:

1. Получите презентацию в течение 10 минут в Whatsapp или на почту с фотографиями и планировкой, чтобы обсудить данный вариант с коллегами или переслать руководству. Для этого позвоните по телефону, указанному в объявлении.
2. Ответим на любые Ваши вопросы, готовы обсуждать любые предложения по коммерческим условиям аренды помещения.
3. Оперативно организуем просмотр помещения, договоримся на любое удобное время, подготовим виртуальный тур.

Звоните нам в любое время. По будням мы сможем ответить на Ваши вопросы до 19:00. В выходные или вечернее время мы передадим Ваш контакт нашему менеджеру по аренде.

Коммерческие условия

Арендная плата 5 416 670 ₽
Ставка арендной платы 25 000 ₽ м²/год
Эксплуатационные расходы Включены в ставку
Налоги С учётом НДС
Тип договора Прямая аренда
Срок договора от 11 месяцев
Размер платежей 1 месяц
Обеспечительный платеж 1 месяц
Статус Сдан

О бизнес-центре

Класс B+
Этажность 3
Лифты Нет
Общая площадь 8 700 м²
Паркинг Наземный
Вентиляция приточно-вытяжная
Кондиционирование сплит-системы
Телекоммуникации Интернет/Телефония

Расположение

Подробная презентацию по предложению

Собираете информацию? Получите подробную презентацию в удобном формате, чтобы обсудить вариант с коллегами или переслать руководству!

Похожие предложения в других зданиях

БЕЗ КОМИССИИ ID: 1179140 Рейтинг8.2 КлассB+

Москва, улица Ленинская Слобода, 19 с6

Автозаводская → 519 м
~ 5 мин
Арендная плата в месяц 5 354 580 ₽ 25 100 ₽/м² в год С учётом НДС
Характеристики 2 562 м² 6 этаж Готово к въезду
Преимущества
  • Класс B+
  • Пешком от метро
  • Кондиционирование и вентиляция
  • Свой паркинг

Предлагаем в прямую аренду офис класса B+ площадью 2562 квадратных метров в бизнес-центре "Омега плаза II"... подробнее

Презентация по предложению

Собираете информацию? Получите подробную презентацию в удобном формате!

БЕЗ КОМИССИИ ID: 15273 Рейтинг7.2 КлассB

Москва, Павелецкая набережная, 2 с1

Павелецкая → 3.17 км
~ 14 мин
Арендная плата в месяц 5 557 500 ₽ 28 500 ₽/м² в год С учётом НДС
Характеристики 2 340 м² 2 этаж Готово к въезду
Преимущества
  • Класс B
  • Кондиционирование и вентиляция
  • Свой паркинг
  • Развитая инфраструктура

Собственник сдает в аренду помещение под офис класса B площадью 2340 кв. метров в бизнес-центре "Ривер Сайд"... подробнее

Презентация по предложению

Собираете информацию? Получите подробную презентацию в удобном формате!

БЕЗ КОМИССИИ ID: 63879 Рейтинг8.5 КлассА

Москва, улица Симоновский Вал, 26А

Дубровка → 1.21 км
~ 12 мин
Арендная плата в месяц 4 913 333 ₽ 22 000 ₽/м² в год С учётом НДС
Характеристики 2 680 м² 1 - 4 этаж Готово к въезду
Преимущества
  • Класс А
  • Пешком от метро
  • Кондиционирование и вентиляция
  • Свой паркинг

Предлагается в долгосрочную аренду офис класса А площадью 2680 кв. метров в недавно отреконструированном бизнес-центре... подробнее

Презентация по предложению

Собираете информацию? Получите подробную презентацию в удобном формате!

БЕЗ КОМИССИИ ID: 303513 Рейтинг8.2 КлассB+

Москва, Дербеневская набережная, 7 с22

Павелецкая → 1.74 км
~ 17 мин
Арендная плата в месяц 6 549 667 ₽ 28 000 ₽/м² в год С учётом НДС
Характеристики 2 807 м² 4 этаж Готово к въезду
Преимущества
  • Класс B+
  • Пешком от метро
  • Кондиционирование и вентиляция
  • Свой паркинг
  • Несколько провайдеров связи
  • Развитая инфраструктура

Сдается в прямую аренду помещение под офис класса B+ площадью 2807 кв. метров в недавно отреконструированном бизнес-центре "Новоспасский"... подробнее

Презентация по предложению

Собираете информацию? Получите подробную презентацию в удобном формате!

БЕЗ КОМИССИИ ID: 305387 Рейтинг8.2 КлассB+

Москва, Дербеневская набережная, 7 с22

Павелецкая → 1.74 км
~ 17 мин
Арендная плата в месяц 5 625 000 ₽ 27 000 ₽/м² в год С учётом НДС
Характеристики 2 500 м² 1 - 3 этаж Под отделку
Преимущества
  • Класс B+
  • Пешком от метро
  • Кондиционирование и вентиляция
  • Свой паркинг
  • Несколько провайдеров связи
  • Развитая инфраструктура

Предлагается в долгосрочную аренду помещение под офис класса B+ площадью 2500 квадратных метров в недавно отреконструированном бизнес-центре "Новоспасский"... подробнее

Презентация по предложению

Собираете информацию? Получите подробную презентацию в удобном формате!

Посмотреть все похожие предложения
Отнеситесь рационально к процессу поиска нового офиса!

Просто ответьте на 3 вопроса, и наши специалисты сами предложат оптимальные варианты под ваш бюджет

.