8.2
Смотреть все фото
БЕЗ КОМИССИИ ID: 1329331 Рейтинг7.8 КлассА
Бизнес-центр «Кулон»

Аренда офиса 1769 м²

Москва, улица 8 Марта, 14

Аэропорт → 1.46 км
~ 15 мин
Арендная плата в месяц 4 855 900 ₽ 32 900 ₽/м² в год С учётом НДС

Презентация по предложению

Собираете информацию? Получите подробную презентацию в удобном формате!

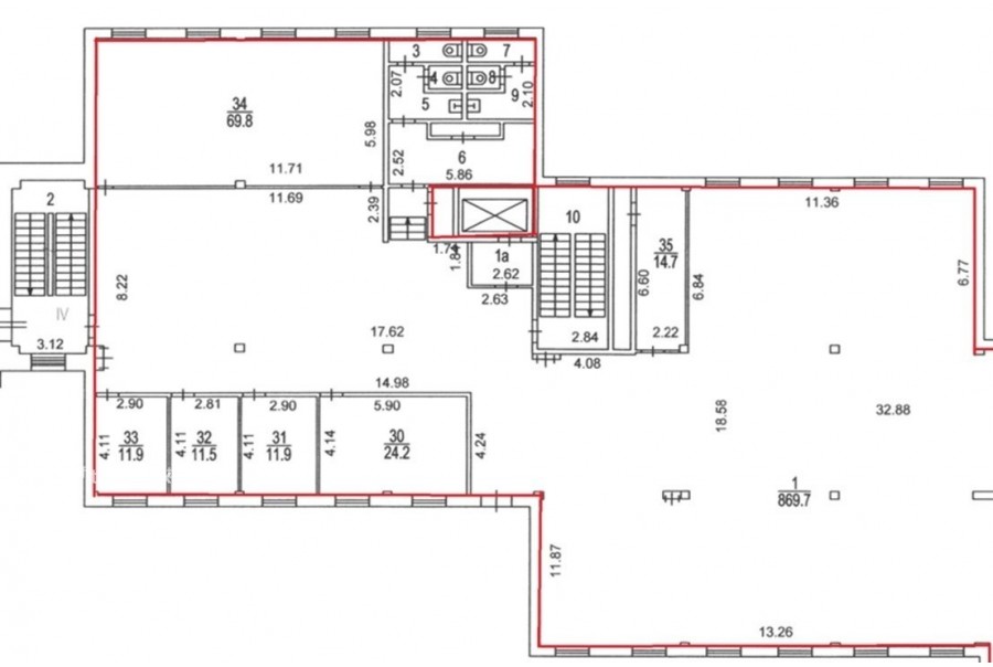
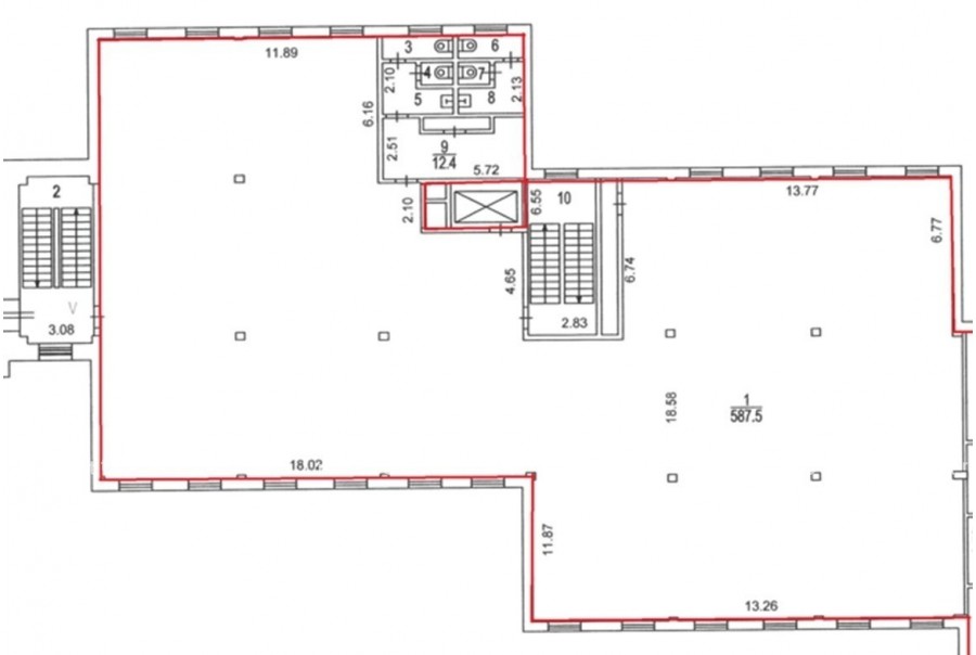
Площадь 1 769 м²
Планировка Смешанная
Этаж 3

Описание

Преимущества
  • Класс А
  • Пешком от метро
  • Кондиционирование и вентиляция
  • Свой паркинг
  • Развитая инфраструктура

Коммерческие условия

Арендная плата 4 855 910 ₽
Ставка арендной платы 32 900 ₽ м²/год
Эксплуатационные расходы Включены в ставку
Налоги С учётом НДС
Тип договора Прямая аренда
Срок договора от 11 месяцев
Размер платежей 1 месяц
Обеспечительный платеж 1 месяц
Статус Сдан

О бизнес-центре

Класс А
Этажность 9
Лифты Есть
Общая площадь 3 900 м²
Год постройки 2009
Паркинг Наземный
Вентиляция приточно-вытяжная
Кондиционирование центральное
Телекоммуникации Интернет/Телефония

Расположение

Подробная презентацию по предложению

Собираете информацию? Получите подробную презентацию в удобном формате, чтобы обсудить вариант с коллегами или переслать руководству!

Похожие предложения в других зданиях

БЕЗ КОМИССИИ ID: 1379068 Рейтинг7.5 КлассB+

Москва, 2-я Хуторская улица, 38А

Дмитровская → 882 м
~ 9 мин
Арендная плата в месяц 3 969 000 ₽ 28 000 ₽/м² в год С учётом НДС
Характеристики 1 701 м² 1 - 5 этаж Готово к въезду
Преимущества
  • Класс B+
  • Пешком от метро
  • Кондиционирование и вентиляция
  • Свой паркинг
  • Несколько провайдеров связи
  • Развитая инфраструктура

Предлагается в долгосрочную прямую аренду офис класса B+ общей площадью 1701 квадратных метров в бизнес-центре "МирЛанд"... подробнее

Презентация по предложению

Собираете информацию? Получите подробную презентацию в удобном формате!

БЕЗ КОМИССИИ ID: 1329510 Рейтинг7.5 КлассB+

Москва, 2-я Хуторская улица, 38А

Дмитровская → 882 м
~ 9 мин
Арендная плата в месяц 3 796 333 ₽ 28 000 ₽/м² в год С учётом НДС
Характеристики 1 627 м² 2 этаж Готово к въезду
Преимущества
  • Класс B+
  • Пешком от метро
  • Кондиционирование и вентиляция
  • Свой паркинг
  • Несколько провайдеров связи
  • Развитая инфраструктура

Сдается в долгосрочную аренду помещение под офис класса B+ общей площадью 1627 кв.м в бизнес-центре "МирЛанд"... подробнее

Презентация по предложению

Собираете информацию? Получите подробную презентацию в удобном формате!

БЕЗ КОМИССИИ ID: 1297726 Рейтинг8.3 КлассB+

Москва, Ленинградский проспект, 47 с2

Аэропорт → 321 м
~ 3 мин
Арендная плата в месяц 5 043 500 ₽ 30 800 ₽/м² в год С учётом НДС
Характеристики 1 965 м² 5 - 6 этаж Готово к въезду
Преимущества
  • Класс B+
  • Пешком от метро
  • Кондиционирование и вентиляция
  • Свой паркинг
  • Развитая инфраструктура

Предлагается в долгосрочную прямую аренду офисное помещение класса B+ общей площадью 1965 квадратных метров в бизнес-центре "Авион"... подробнее

>

Виртуальный тур

Презентация по предложению

Собираете информацию? Получите подробную презентацию в удобном формате!

ВОЗМОЖНО ОСВОБОЖДЕНИЕ ID: 282858 Рейтинг8.9 КлассА

Москва, улица Викторенко, 5 с1

Аэропорт → 204 м
~ 2 мин
Арендная плата в месяц 4 575 000 ₽ 36 600 ₽/м² в год С учётом НДС
Характеристики 1 500 м² 5 - 17 этаж Готово к въезду
Преимущества
  • Класс А
  • Пешком от метро
  • Кондиционирование и вентиляция
  • Свой паркинг
  • Несколько провайдеров связи
  • Развитая инфраструктура

Предлагается в долгосрочную аренду офис класса А площадью 1500 кв.м в бизнес-центре "Виктори Плаза"... подробнее

Презентация по предложению

Собираете информацию? Получите подробную презентацию в удобном формате!

БЕЗ КОМИССИИ ID: 949302 Рейтинг7.8 КлассB

Москва, Ленинградский проспект, 68

Сокол → 426 м
~ 4 мин
Арендная плата в месяц 4 750 000 ₽ 28 500 ₽/м² в год С учётом НДС
Характеристики 2 000 м² 4 - 5 этаж Готово к въезду
Преимущества
  • Класс B
  • Пешком от метро
  • Кондиционирование и вентиляция
  • Свой паркинг
  • Несколько провайдеров связи
  • Развитая инфраструктура

Предлагаем в долгосрочную аренду офис класса B площадью 2000 кв.м в бизнес-центре "Авиапарк"... подробнее

Презентация по предложению

Собираете информацию? Получите подробную презентацию в удобном формате!

Посмотреть все похожие предложения
Отнеситесь рационально к процессу поиска нового офиса!

Просто ответьте на 3 вопроса, и наши специалисты сами предложат оптимальные варианты под ваш бюджет

.