8.2
Смотреть все фото
БЕЗ КОМИССИИ ID: 241561 Рейтинг6.1 КлассB

Москва, Кутузовский проспект, 36 с23

Кутузовская → 917 м
~ 9 мин
Арендная плата в месяц 990 000 ₽ 20 000 ₽/м² в год С учётом НДС

Презентация по предложению

Собираете информацию? Получите подробную презентацию в удобном формате!

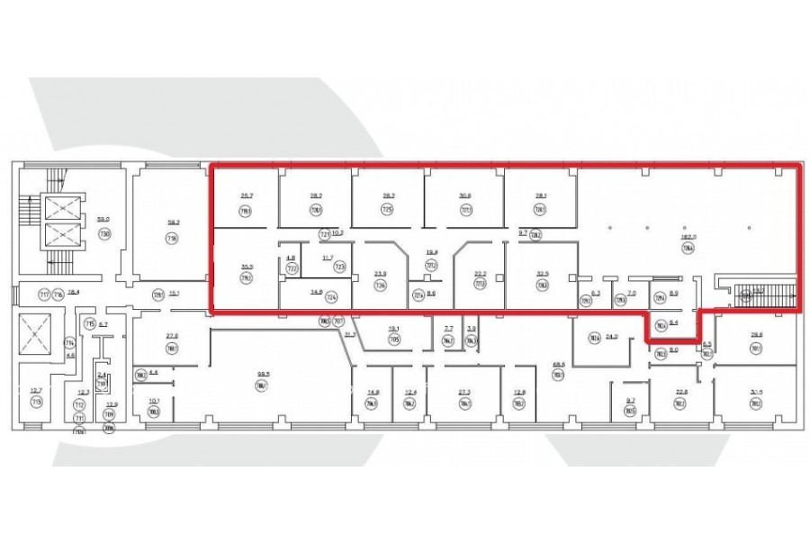
Площадь 594 м²
Состояние Готово к въезду
Планировка Открытая
Этаж 7

Описание

Преимущества
  • Класс B
  • Пешком от метро
  • Кондиционирование и вентиляция
  • Свой паркинг
  • Развитая инфраструктура
Предлагается в прямую аренду офис класса B площадью 594 кв.м в бизнес-центре.

Москва, ЗАО, Кутузовский проспект, 36 с23

Удобная локация здания:
- Автомобиль: близость транспортных магистралей, таких как Третье Транспортное Кольцо, Кутузовский проспект и других.
- Возможность аренды парковочных мест.
- Ближайшее метро: от метро "Парк Победы" всего 16 мин пешком

Офис класса B:
- Офис с отделкой, полностью готов к аренде
- Вентиляция: Приточно-вытяжная вентиляция
- Развитая инфраструктура внутри здания

Возможность заключения контракта в соответствии с 44ФЗ по госзакупкам.

Если данное предложение подходит Вашему запросу:

1. Мы отправим Вам подробную презентацию с планировкой и фотографиями в течение 10 минут после звонка, чтобы Вы могли поделиться информацией с руководством или с коллегами.
2. Мы готовы ответить на любые Ваши вопросы о помещении и коммерческих условиях аренды.
3. Проводим показы ежедневно, договоримся на удобное для Вас время. Можем организовать виртуальный тур по офисному блоку.

Вы можете позвонить нам в любое время. Мы ответим на Ваши вопросы по будням до 19:00, а поздно вечером или в выходные сможем передать Ваш контакт нашему менеджеру.

Коммерческие условия

Арендная плата 1 108 800 ₽
Ставка арендной платы 20 000 ₽ м²/год
Эксплуатационные расходы Включены в ставку
Налоги С учётом НДС
Тип договора Прямая аренда
Срок договора от 11 месяцев
Размер платежей 1 месяц
Обеспечительный платеж 1 месяц
Статус Сдан

О бизнес-центре

Класс B
Этажность 8
Лифты Есть
Общая площадь 0 м²
Год постройки 2007
Паркинг Наземный
Вентиляция приточно-вытяжная
Кондиционирование возможность установки
Телекоммуникации Интернет/Телефония

Расположение

Подробная презентацию по предложению

Собираете информацию? Получите подробную презентацию в удобном формате, чтобы обсудить вариант с коллегами или переслать руководству!

Похожие предложения в других зданиях

БЕЗ КОМИССИИ ID: 71996 Рейтинг6.2 КлассB

Москва, улица Кульнева, 3 с1

Фили → 1.13 км
~ 11 мин
Арендная плата в месяц 1 080 117 ₽ 22 900 ₽/м² в год С учётом НДС
Характеристики 566 м² 4 - 5 этаж Готово к въезду
Преимущества
  • Класс B
  • Пешком от метро
  • Кондиционирование и вентиляция
  • Несколько провайдеров связи
  • Развитая инфраструктура

Предлагаем в прямую аренду помещение под офис класса B площадью 566 квадр. метров в бизнес-центре... подробнее

Презентация по предложению

Собираете информацию? Получите подробную презентацию в удобном формате!

ВОЗМОЖНО ОСВОБОЖДЕНИЕ ID: 353644 Рейтинг5.9 КлассB

Москва, Кутузовский проспект, 36А

Кутузовская → 606 м
~ 6 мин
Арендная плата в месяц 1 159 840 ₽ 21 100 ₽/м² в год С учётом НДС
Характеристики 659 м² 5 этаж Готово к въезду
Преимущества
  • Класс B
  • Пешком от метро
  • Кондиционирование и вентиляция
  • Свой паркинг

Предлагается в долгосрочную аренду помещение под офис класса B общей площадью 659 кв.м в бизнес-центре "Кутузовский 36"... подробнее

Презентация по предложению

Собираете информацию? Получите подробную презентацию в удобном формате!

БЕЗ КОМИССИИ ID: 16578 Рейтинг6.8 КлассB+

Москва, Тучковская улица, 11 к2

Фили → 508 м
~ 5 мин
Арендная плата в месяц 920 833 ₽ 17 000 ₽/м² в год С учётом НДС
Характеристики 650 м² 3 этаж Под отделку
Преимущества
  • Класс B+
  • Пешком от метро
  • Кондиционирование и вентиляция
  • Свой паркинг

Предлагается в долгосрочную аренду офис класса B+ общей площадью 650 квадр. метров в бизнес-центре... подробнее

Презентация по предложению

Собираете информацию? Получите подробную презентацию в удобном формате!

БЕЗ КОМИССИИ ID: 110571 Рейтинг7.5 КлассB

Москва, Багратионовский проезд, 7 к20в

Багратионовская → 640 м
~ 6 мин
Арендная плата в месяц 1 191 667 ₽ 22 000 ₽/м² в год С учётом НДС
Характеристики 650 м² 4 этаж Готово к въезду
Преимущества
  • Класс B
  • Пешком от метро
  • Кондиционирование и вентиляция
  • Свой паркинг
  • Развитая инфраструктура

Предлагаем в долгосрочную аренду помещение под офис класса B общей площадью 650 кв. метров в недавно отреконструированном бизнес-центре "Конвент Плюс"... подробнее

Презентация по предложению

Собираете информацию? Получите подробную презентацию в удобном формате!

БЕЗ КОМИССИИ ID: 185659 Рейтинг7.7 КлассB

Москва, Багратионовский проезд, 7 к3

Багратионовская → 396 м
~ 5 мин
Арендная плата в месяц 825 000 ₽ 18 000 ₽/м² в год С учётом НДС
Характеристики 550 м² 3 этаж Готово к въезду
Преимущества
  • Класс B
  • Пешком от метро
  • Кондиционирование и вентиляция
  • Свой паркинг
  • Несколько провайдеров связи
  • Развитая инфраструктура

Предлагаем в долгосрочную прямую аренду офисное помещение класса B общей площадью 550 кв.м в бизнес-центре "Рубин"... подробнее

Презентация по предложению

Собираете информацию? Получите подробную презентацию в удобном формате!

Посмотреть все похожие предложения
Отнеситесь рационально к процессу поиска нового офиса!

Просто ответьте на 3 вопроса, и наши специалисты сами предложат оптимальные варианты под ваш бюджет

.