8.2

Виртуальный тур

Смотреть все фото
БЕЗ КОМИССИИ ID: 1282524 Рейтинг8.2 КлассА
Бизнес-центр «Квадрат»

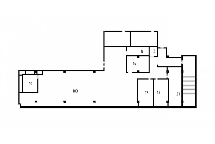
Аренда офиса 292 м²

Москва, Верейская улица, 11

Давыдково → 1.24 км
~ 12 мин
Арендная плата в месяц 695 900 ₽ 28 600 ₽/м² в год С учётом НДС

Презентация по предложению

Собираете информацию? Получите подробную презентацию в удобном формате!

Площадь 292 м²
Состояние Готово к въезду
Планировка Смешанная
Этаж 2

Описание

Преимущества
  • Класс А
  • Пешком от метро
  • Кондиционирование и вентиляция
  • Свой паркинг
Сдается в долгосрочную аренду офисный блок класса А общей площадью 292 квадратных метров в бизнес-центре "Квадрат".

Москва, ЗАО, Верейская улица, 11

Удобная локация здания:
- Автомобиль: близость транспортных магистралей, таких как Кутузовский проспект, Можайское шоссе, Рублевское шоссе и других.
- Возможность аренды парковочных мест.
- Ближайшее метро: от метро "Давыдково" всего 12 мин пешком

Офис класса А:
- Офис с отделкой, полностью готов к аренде
- Вентиляция: Приточно-вытяжная вентиляция
- Кондиционирование: центральное
- Презентабельный центральный рецепшн
- Круглосуточная охрана и видеонаблюдение


Если предложение предварительно Вам подходит:

1. Мы отправим Вам подробную презентацию с планировкой и фотографиями в течение 10 минут после звонка, чтобы Вы могли поделиться информацией с руководством или с коллегами.
2. Задайте любые вопросы менеджеру по телефону, готовы обсуждать любые предложения по финансовым условиям договора аренды.
3.

Вы можете позвонить нам в любое время. Мы ответим на Ваши вопросы по будням до 19:00, а поздно вечером или в выходные сможем передать Ваш контакт нашему менеджеру.

Коммерческие условия

Арендная плата 632 670 ₽
Ставка арендной платы 28 600 ₽ м²/год
Эксплуатационные расходы Включены в ставку
Налоги С учётом НДС
Тип договора Прямая аренда
Срок договора Долгосрочный
Размер платежей 1 месяц
Обеспечительный платеж 2 месяц
Статус Сдан

О бизнес-центре

Класс А
Этажность 6
Лифты Есть
Общая площадь 15 549 м²
Паркинг Наземный
Вентиляция приточно-вытяжная
Кондиционирование центральное
Телекоммуникации Интернет/Телефония

Расположение

Подробная презентацию по предложению

Собираете информацию? Получите подробную презентацию в удобном формате, чтобы обсудить вариант с коллегами или переслать руководству!

Похожие предложения в других зданиях

БЕЗ КОМИССИИ ID: 1377846 Рейтинг8.6 КлассB+

Москва, Верейская улица, 29 с134

Давыдково → 1.55 км
~ 15 мин
Арендная плата в месяц 734 400 ₽ 30 600 ₽/м² в год С учётом НДС
Характеристики 288 м² 3 этаж Готово к въезду
Преимущества
  • Класс B+
  • Пешком от метро
  • Кондиционирование и вентиляция
  • Свой паркинг

Сдается в прямую аренду офисный блок класса B+ площадью 288 квадр. метров в бизнес-центре "Верейская плаза III"... подробнее

Презентация по предложению

Собираете информацию? Получите подробную презентацию в удобном формате!

БЕЗ КОМИССИИ ID: 1313294 Рейтинг8.6 КлассB+

Москва, Верейская улица, 29 с134

Давыдково → 1.55 км
~ 15 мин
Арендная плата в месяц 706 350 ₽ 30 600 ₽/м² в год С учётом НДС
Характеристики 277 м² 2 этаж Готово к въезду
Преимущества
  • Класс B+
  • Пешком от метро
  • Кондиционирование и вентиляция
  • Свой паркинг

Предлагаем в долгосрочную прямую аренду офисный блок класса B+ площадью 277 кв.м в бизнес-центре "Верейская плаза III"... подробнее

Презентация по предложению

Собираете информацию? Получите подробную презентацию в удобном формате!

БЕЗ КОМИССИИ ID: 1310110 Рейтинг8.7 КлассB+

Москва, Аминьевское шоссе, 6

Давыдково → 1.21 км
~ 12 мин
Арендная плата в месяц 787 495 ₽ 32 600 ₽/м² в год С учётом НДС
Характеристики 290 м² 4 этаж Готово к въезду
Преимущества
  • Класс B+
  • Пешком от метро
  • Кондиционирование и вентиляция
  • Свой паркинг

Предлагаем в аренду высококачественный сервисный офис на 30 рабочих мест в бизнес-центре "Квартал Вест"... подробнее

Презентация по предложению

Собираете информацию? Получите подробную презентацию в удобном формате!

БЕЗ КОМИССИИ ID: 1379175 Рейтинг5.4 КлассB

Москва, Сколковское шоссе, 25 с1

Кунцевская → 4.64 км
~ 28 мин
Арендная плата в месяц 650 000 ₽ 26 000 ₽/м² в год Упрощённая система налогообложения
Характеристики 300 м² 3 этаж Готово к въезду
Преимущества
  • Класс B
  • Кондиционирование и вентиляция
  • Свой паркинг

Предлагается в долгосрочную прямую аренду офисный блок класса B площадью 300 квадратных метров в бизнес-центре... подробнее

Презентация по предложению

Собираете информацию? Получите подробную презентацию в удобном формате!

БЕЗ КОМИССИИ ID: 1380238 Рейтинг8.8 КлассА

Одинцово, Минское шоссе, 19-й км

Кунцевская → 12.44 км
~ 73 мин
Арендная плата в месяц 1 088 850 ₽ 38 400 ₽/м² в год С учётом НДС
Характеристики 340 м² 19 этаж Готово к въезду
Преимущества
  • Класс А
  • Новое строительство
  • Кондиционирование и вентиляция

Сдается в прямую аренду офисный блок класса А площадью 340 квадратных метров в новом бизнес-центре "Орбион"... подробнее

Презентация по предложению

Собираете информацию? Получите подробную презентацию в удобном формате!

Посмотреть все похожие предложения
Отнеситесь рационально к процессу поиска нового офиса!

Просто ответьте на 3 вопроса, и наши специалисты сами предложат оптимальные варианты под ваш бюджет

.