8.2
Смотреть все фото
БЕЗ КОМИССИИ ID: 1329725 Рейтинг9.0 КлассА
Бизнес-центр «Lakes 2»

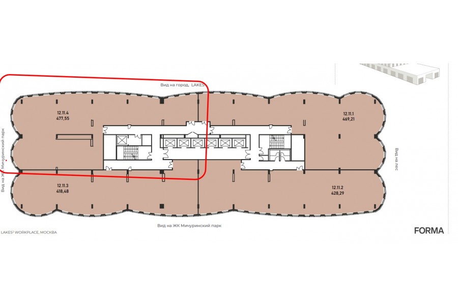
Продажа офиса 478 м²

Москва, Озёрная улица, 44

Озёрная → 759 м
~ 8 мин
Стоимость 112.62 млн ₽ 235 600 ₽/м²

Презентация по предложению

Собираете информацию? Получите подробную презентацию в удобном формате!

Площадь 478 м²
Состояние Под отделку
Планировка Открытая
Этаж 12

Описание

Преимущества
  • Класс А
  • Пешком от метро
  • Кондиционирование и вентиляция
  • Свой паркинг
Продается офисный блок площадью 478 кв. метров в бизнес-центре "Lakes 2".

Помещение можно адаптировать под любой бизнес благодаря функциональной планировке - идеальный баланс комфорта и экономической выгоды. Оптимальное решение для стабильного бизнеса или выгодных инвестиций.

Офис класса А:
- Помещение без отделки
- Вентиляция: Приточно-вытяжная вентиляция
- Кондиционирование: центральное

О офисном центре:
Москва, ЗАО, Озёрная улица, 44

Удобная локация здания:
- Автомобиль: близость транспортных магистралей, таких как Мичуринский проспект, МКАД и других.
- Возможность аренды парковочных мест.
- Ближайшее метро: от метро "Озёрная" всего 8 мин пешком



Если предложение предварительно Вам подходит:

1. Мы подготовили презентацию с информацией о помещении, фотографиями и планировкой, чтобы Вы могли поделиться ей с коллегами или руководством. Попросите об этом нашего менеджера по телефону в объявлении.
2. Ответим на любые Ваши вопросы, готовы обсуждать любые предложения по коммерческим условиям продажи помещения.

Звоните нам в любое время. По будням мы сможем ответить на Ваши вопросы до 19:00. В выходные или вечернее время мы передадим Ваш контакт нашему менеджеру.

О бизнес-центре

Класс А
Этажность 15
Лифты Есть
Общая площадь 35 013 м²
Паркинг Подземный
Вентиляция приточно-вытяжная
Кондиционирование центральное
Телекоммуникации Интернет/Телефония

Расположение

Подробная презентацию по предложению

Собираете информацию? Получите подробную презентацию в удобном формате, чтобы обсудить вариант с коллегами или переслать руководству!

Похожие предложения в других зданиях

БЕЗ КОМИССИИ ID: 1324144 Рейтинг8.3 КлассА

Москва, Озёрная улица, вл42

Озёрная → 599 м
~ 6 мин
Стоимость 424 905 400 ₽ 320 200 ₽/м²
Характеристики 1 327 м² 18 этаж Под отделку
Преимущества
  • Класс А
  • Пешком от метро
  • Новое строительство
  • Кондиционирование и вентиляция
  • Свой паркинг

В продаже офисный блок общей площадью 1327 кв. метров в бизнес-центре "Lakes". .. подробнее

Презентация по предложению

Собираете информацию? Получите подробную презентацию в удобном формате!

БЕЗ КОМИССИИ ID: 1324143 Рейтинг8.3 КлассА

Москва, Озёрная улица, вл42

Озёрная → 599 м
~ 6 мин
Стоимость 417 438 900 ₽ 314 100 ₽/м²
Характеристики 1 329 м² 17 этаж Под отделку
Преимущества
  • Класс А
  • Пешком от метро
  • Новое строительство
  • Кондиционирование и вентиляция
  • Свой паркинг

В продаже офис площадью 1329 кв. метров в бизнес-центре "Lakes". .. подробнее

Презентация по предложению

Собираете информацию? Получите подробную презентацию в удобном формате!

БЕЗ КОМИССИИ ID: 1320483 Рейтинг8.3 КлассА

Москва, Озёрная улица, вл42

Озёрная → 599 м
~ 6 мин
Стоимость 191 331 700 ₽ 310 100 ₽/м²
Характеристики 617 м² 14 этаж Под отделку
Преимущества
  • Класс А
  • Пешком от метро
  • Новое строительство
  • Кондиционирование и вентиляция
  • Свой паркинг

В продаже офисный блок общей площадью 617 кв. метров в бизнес-центре "Lakes". .. подробнее

Презентация по предложению

Собираете информацию? Получите подробную презентацию в удобном формате!

БЕЗ КОМИССИИ ID: 1307094 Рейтинг8.3 КлассА

Москва, Озёрная улица, вл42

Озёрная → 599 м
~ 6 мин
Стоимость 188 496 000 ₽ 306 000 ₽/м²
Характеристики 616 м² 13 этаж Под отделку
Преимущества
  • Класс А
  • Пешком от метро
  • Новое строительство
  • Кондиционирование и вентиляция
  • Свой паркинг

В продаже офисное помещение площадью 616 квадратных метров в бизнес-центре "Lakes". .. подробнее

Презентация по предложению

Собираете информацию? Получите подробную презентацию в удобном формате!

БЕЗ КОМИССИИ ID: 1324142 Рейтинг8.3 КлассА

Москва, Озёрная улица, вл42

Озёрная → 599 м
~ 6 мин
Стоимость 181 792 000 ₽ 304 000 ₽/м²
Характеристики 598 м² 14 этаж Под отделку
Преимущества
  • Класс А
  • Пешком от метро
  • Новое строительство
  • Кондиционирование и вентиляция
  • Свой паркинг

Продается офисный блок площадью 598 кв.м в бизнес-центре "Lakes". .. подробнее

Презентация по предложению

Собираете информацию? Получите подробную презентацию в удобном формате!

Посмотреть все похожие предложения
Отнеситесь рационально к процессу поиска нового офиса!

Просто ответьте на 3 вопроса, и наши специалисты сами предложат оптимальные варианты под ваш бюджет

.