8.2
Смотреть все фото
БЕЗ КОМИССИИ ID: 1324142 Рейтинг8.3 КлассА
Бизнес-центр «Lakes»

Продажа офиса 598 м²

Москва, Озёрная улица, вл42

Озёрная → 599 м
~ 6 мин
Стоимость 181.79 млн ₽ 304 000 ₽/м²

Презентация по предложению

Собираете информацию? Получите подробную презентацию в удобном формате!

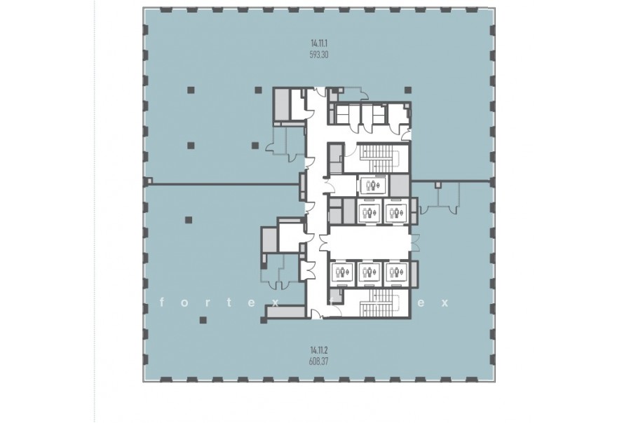
Площадь 598 м²
Состояние Под отделку
Планировка Открытая
Этаж 14

Описание

Преимущества
  • Класс А
  • Пешком от метро
  • Новое строительство
  • Кондиционирование и вентиляция
  • Свой паркинг
В продаже офис площадью 598 квадратных метров в бизнес-центре "Lakes".

Помещение можно адаптировать под любой бизнес благодаря функциональной планировке - идеальный баланс комфорта и экономической выгоды. Оптимальное решение для стабильного бизнеса или выгодных инвестиций.

Офис класса А:
- Офис в состоянии shell & core
- Вентиляция: Приточно-вытяжная вентиляция
- Кондиционирование: сплит-системы

О офисном центре:
Москва, ЗАО, Озёрная улица, вл42

Удобное расположение здания для всех видов транспорта:
- Автомобиль: близость транспортных магистралей, таких как Мичуринский проспект, МКАД и других.
- Возможность аренды парковочных мест.
- Ближайшее метро: от метро "Озёрная" всего 6 мин пешком



Что еще можно узнать о предложении:

1. Получите презентацию в течение 10 минут в Whatsapp или на почту с фотографиями и планировкой, чтобы обсудить данный вариант с коллегами или переслать руководству. Для этого позвоните по телефону, указанному в объявлении.
2. Задайте любые вопросы менеджеру по телефону, готовы обсуждать любые предложения по финансовым условиям договора продажи.

Вы можете позвонить нам в любое время. Мы ответим на Ваши вопросы по будням до 19:00, а поздно вечером или в выходные сможем передать Ваш контакт нашему менеджеру.

О бизнес-центре

Класс А
Этажность 18
Лифты Есть
Общая площадь 57 434 м²
Год постройки 2025
Паркинг Подземный
Вентиляция приточно-вытяжная
Кондиционирование сплит-системы
Телекоммуникации Интернет/Телефония

Расположение

Подробная презентацию по предложению

Собираете информацию? Получите подробную презентацию в удобном формате, чтобы обсудить вариант с коллегами или переслать руководству!

Похожие предложения в других зданиях

БЕЗ КОМИССИИ ID: 1327498 Рейтинг8.0 КлассА

Москва, Рябиновая улица, 44

Говорово → 2.71 км
~ 27 мин
Стоимость 453 415 000 ₽ 295 000 ₽/м²
Характеристики 1 537 м² 26 этаж Под отделку
Преимущества
  • Класс А
  • Пешком от метро
  • Новое строительство
  • Кондиционирование и вентиляция
  • Свой паркинг

Продается офис общей площадью 1537 кв. метров в строящемся бизнес-центре "LINK". Год ввода в экслуатацию 2028. .. подробнее

Презентация по предложению

Собираете информацию? Получите подробную презентацию в удобном формате!

БЕЗ КОМИССИИ ID: 1320653 Рейтинг8.0 КлассА

Москва, Рябиновая улица, 44

Говорово → 2.71 км
~ 27 мин
Стоимость 445 730 000 ₽ 290 000 ₽/м²
Характеристики 1 537 м² 25 этаж Под отделку
Преимущества
  • Класс А
  • Пешком от метро
  • Новое строительство
  • Кондиционирование и вентиляция
  • Свой паркинг

В продаже офисный блок площадью 1537 кв. метров в строящемся бизнес-центре "LINK". Год ввода в экслуатацию 2028. .. подробнее

Презентация по предложению

Собираете информацию? Получите подробную презентацию в удобном формате!

БЕЗ КОМИССИИ ID: 1320652 Рейтинг8.0 КлассА

Москва, Рябиновая улица, 44

Говорово → 2.71 км
~ 27 мин
Стоимость 434 971 000 ₽ 283 000 ₽/м²
Характеристики 1 537 м² 24 этаж Под отделку
Преимущества
  • Класс А
  • Пешком от метро
  • Новое строительство
  • Кондиционирование и вентиляция
  • Свой паркинг

Продается офис площадью 1537 кв. метров в строящемся бизнес-центре "LINK". Год ввода в экслуатацию 2028. .. подробнее

Презентация по предложению

Собираете информацию? Получите подробную презентацию в удобном формате!

БЕЗ КОМИССИИ ID: 1320651 Рейтинг8.0 КлассА

Москва, Рябиновая улица, 44

Говорово → 2.71 км
~ 27 мин
Стоимость 430 360 000 ₽ 280 000 ₽/м²
Характеристики 1 537 м² 23 этаж Под отделку
Преимущества
  • Класс А
  • Пешком от метро
  • Новое строительство
  • Кондиционирование и вентиляция
  • Свой паркинг

Продается офис площадью 1537 кв. метров в строящемся бизнес-центре "LINK". Год ввода в экслуатацию 2028. .. подробнее

Презентация по предложению

Собираете информацию? Получите подробную презентацию в удобном формате!

БЕЗ КОМИССИИ ID: 1320650 Рейтинг8.0 КлассА

Москва, Рябиновая улица, 44

Говорово → 2.71 км
~ 27 мин
Стоимость 425 749 000 ₽ 277 000 ₽/м²
Характеристики 1 537 м² 22 этаж Под отделку
Преимущества
  • Класс А
  • Пешком от метро
  • Новое строительство
  • Кондиционирование и вентиляция
  • Свой паркинг

В продаже офисный блок площадью 1537 квадратных метров в строящемся бизнес-центре "LINK". Год ввода в экслуатацию 2028. .. подробнее

Презентация по предложению

Собираете информацию? Получите подробную презентацию в удобном формате!

Посмотреть все похожие предложения
Отнеситесь рационально к процессу поиска нового офиса!

Просто ответьте на 3 вопроса, и наши специалисты сами предложат оптимальные варианты под ваш бюджет

.