8.2
Смотреть все фото
БЕЗ КОМИССИИ ID: 1306639 Рейтинг8.4 КлассB+
Бизнес-центр «ЛеФорт»

Аренда офиса 8300 м²

Москва, Электрозаводская улица, 27 с1

Преображенская площадь → 841 м
~ 8 мин
Арендная плата в месяц 20 673 900 ₽ 29 900 ₽/м² в год С учётом НДС

Презентация по предложению

Собираете информацию? Получите подробную презентацию в удобном формате!

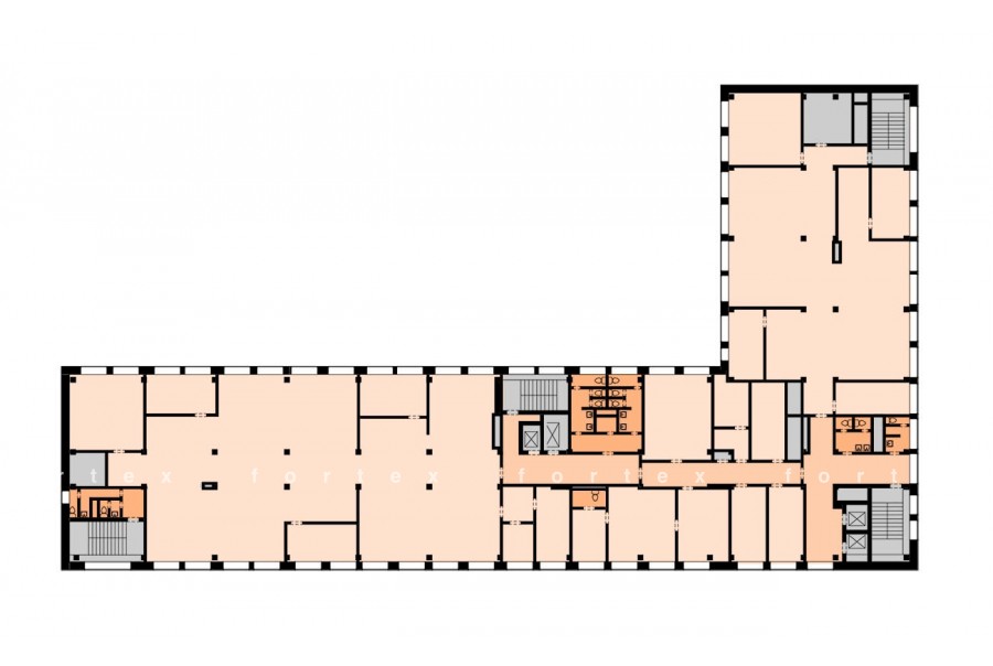
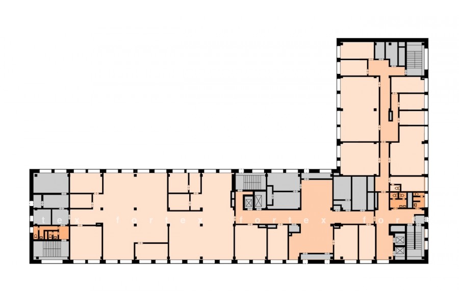
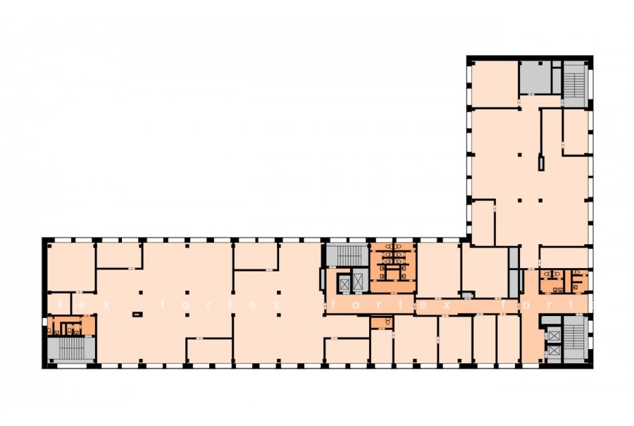
Площадь 8 300 м²
Состояние Готово к въезду
Планировка Смешанная
Этаж -1 - 6

Описание

Преимущества
  • Класс B+
  • Пешком от метро
  • Кондиционирование и вентиляция
  • Свой паркинг
  • Несколько провайдеров связи
Сдается в долгосрочную прямую аренду помещение под офис класса B+ площадью 8300 кв.м в бизнес-центре "ЛеФорт".

Москва, ВАО, Электрозаводская улица, 27 с1

Удобная локация здания:
- Автомобиль: близость транспортных магистралей, таких как улица Стромынка, Большая Черкизовская улица, Русаковская улица и других.
- Возможность аренды парковочных мест.
- Ближайшее метро: от метро "Преображенская площадь" всего 8 мин пешком

Офис класса B+:
- Помещение готово к въезду
- Вентиляция: Приточно-вытяжная вентиляция
- Кондиционирование: центральное
- Круглосуточная охрана и видеонаблюдение

Возможность заключения контракта в соответствии с 44ФЗ по госзакупкам.

Если данное предложение подходит Вашему запросу:

1. Получите презентацию в течение 10 минут в Whatsapp или на почту с фотографиями и планировкой, чтобы обсудить данный вариант с коллегами или переслать руководству. Для этого позвоните по телефону, указанному в объявлении.
2. Мы готовы ответить на любые Ваши вопросы о помещении и коммерческих условиях аренды.
3. Проводим показы ежедневно, договоримся на удобное для Вас время. Можем организовать виртуальный тур по офисному блоку.

Звоните нам в любое время. По будням мы сможем ответить на Ваши вопросы до 19:00. В выходные или вечернее время мы передадим Ваш контакт нашему менеджеру по аренде.

Коммерческие условия

Арендная плата 20 673 920 ₽
Ставка арендной платы 17 000 ₽ м²/год
Эксплуатационные расходы 7 500 ₽
Налоги Без НДС
Тип договора Прямая аренда
Срок договора Долгосрочный
Размер платежей 3 месяц
Обеспечительный платеж 3 месяц
Статус Свободен

О бизнес-центре

Класс B+
Этажность 6
Лифты Есть
Общая площадь 6 200 м²
Год постройки 2006
Паркинг Наземный
Вентиляция приточно-вытяжная
Кондиционирование центральное
Телекоммуникации Интернет/Телефония

Расположение

Подробная презентацию по предложению

Собираете информацию? Получите подробную презентацию в удобном формате, чтобы обсудить вариант с коллегами или переслать руководству!

Отнеситесь рационально к процессу поиска нового офиса!

Просто ответьте на 3 вопроса, и наши специалисты сами предложат оптимальные варианты под ваш бюджет

.