8.2
Смотреть все фото
ВОЗМОЖНО ОСВОБОЖДЕНИЕ ID: 274974 Рейтинг6.3 КлассB

Москва, Ленинградский проспект, 80 к7

Сокол → 852 м
~ 9 мин
Арендная плата в месяц по запросу потенциального арендатора Срок освобождение в течение 3 месяцев

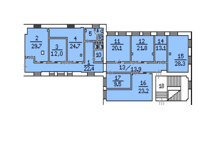
Информация по помещению

Ознакомьтесь с дополнительной информацией по помещению и коммерческим условиям!

Площадь 800 м²
Планировка Кабинетная
Этаж 2 - 4

Описание

Преимущества
  • Класс B
  • Пешком от метро
  • Кондиционирование и вентиляция
  • Свой паркинг
  • Развитая инфраструктура

Коммерческие условия

Арендная плата по запросу
Ставка арендной платы по запросу
Эксплуатационные расходы Включены в ставку
Налоги С учётом НДС
Тип договора Прямая аренда
Срок договора от 11 месяцев
Размер платежей 1 месяц
Обеспечительный платеж 1 месяц
Статус Сдан

О бизнес-центре

Класс B
Этажность 4
Лифты Нет
Общая площадь 0 м²
Паркинг Наземный
Вентиляция естественная
Кондиционирование сплит-системы
Телекоммуникации Интернет/Телефония

Расположение

Информация по помещению

Получите дополнительную информацию по помещению и коммерческом условиям!

Похожие предложения в других зданиях

БЕЗ КОМИССИИ ID: 288361 Рейтинг5.3 КлассB

Москва, Ленинградский проспект, 80 к1

Сокол → 984 м
~ 10 мин
Арендная плата в месяц 1 255 500 ₽ 18 000 ₽/м² в год С учётом НДС
Характеристики 837 м² 3 этаж Готово к въезду
Преимущества
  • Класс B
  • Пешком от метро
  • Кондиционирование и вентиляция
  • Развитая инфраструктура

Сдаем в долгосрочную прямую аренду офисное помещение класса B площадью 837 кв.м в бизнес-центре... подробнее

Презентация по предложению

Собираете информацию? Получите подробную презентацию в удобном формате!

БЕЗ КОМИССИИ ID: 305823 Рейтинг5.8 КлассB

Москва, Волоколамское шоссе, 2

Сокол → 787 м
~ 8 мин
Арендная плата в месяц 872 400 ₽ 14 400 ₽/м² в год С учётом НДС
Характеристики 727 м² 12 этаж Готово к въезду
Преимущества
  • Класс B
  • Пешком от метро
  • Кондиционирование и вентиляция

Предлагается в долгосрочную прямую аренду помещение под офис класса B площадью 727 кв.м в бизнес-центре "Гидропроект"... подробнее

Презентация по предложению

Собираете информацию? Получите подробную презентацию в удобном формате!

БЕЗ КОМИССИИ ID: 1161177 Рейтинг4.8 КлассB

Москва, Волоколамское шоссе, 5 с1

Сокол → 1.03 км
~ 10 мин
Арендная плата в месяц 1 187 500 ₽ 19 000 ₽/м² в год С учётом НДС
Характеристики 750 м² 1 - 2 этаж Готово к въезду
Преимущества
  • Класс B
  • Пешком от метро

Собственник сдает в прямую аренду офисное помещение класса B общей площадью 750 квадр. метров в историческом бизнес-центре... подробнее

Презентация по предложению

Собираете информацию? Получите подробную презентацию в удобном формате!

БЕЗ КОМИССИИ ID: 173591 Рейтинг4.8 КлассB

Москва, Волоколамское шоссе, 5 с1

Сокол → 1.03 км
~ 10 мин
Арендная плата в месяц 991 667 ₽ 17 000 ₽/м² в год С учётом НДС
Характеристики 700 м² 1 этаж Готово к въезду
Преимущества
  • Класс B
  • Пешком от метро

Предлагаем в долгосрочную аренду офис класса B площадью 700 кв.м в историческом бизнес-центре... подробнее

Презентация по предложению

Собираете информацию? Получите подробную презентацию в удобном формате!

БЕЗ КОМИССИИ ID: 606816 Рейтинг8.8 КлассB

Москва, Песчаная улица, 4А

Сокол → 244 м
~ 2 мин
Арендная плата в месяц 900 000 ₽ 15 000 ₽/м² в год С учётом НДС
Характеристики 720 м² -1 - 1 этаж Готово к въезду
Преимущества
  • Класс B
  • Пешком от метро
  • Кондиционирование и вентиляция

Сдаем в долгосрочную аренду офис класса B площадью 720 квадратных метров в бизнес-центре... подробнее

Презентация по предложению

Собираете информацию? Получите подробную презентацию в удобном формате!

Посмотреть все похожие предложения
Отнеситесь рационально к процессу поиска нового офиса!

Просто ответьте на 3 вопроса, и наши специалисты сами предложат оптимальные варианты под ваш бюджет

.