8.2
Смотреть все фото
БЕЗ КОМИССИИ ID: 1376614 Рейтинг7.1 КлассB
Бизнес-центр «Ленинский 146»

Аренда офиса 194 м²

Москва, Ленинский проспект, 146

Юго-Западная → 1.33 км
~ 13 мин
Арендная плата в месяц 400 000 ₽ 24 700 ₽/м² в год С учётом НДС

Презентация по предложению

Собираете информацию? Получите подробную презентацию в удобном формате!

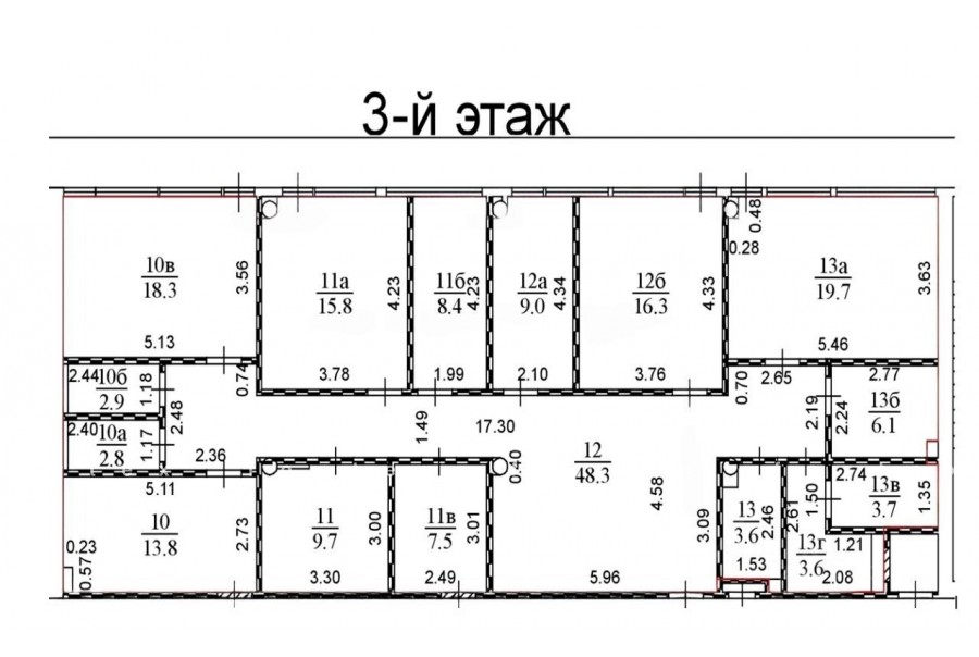
Площадь 194 м²
Состояние Готово к въезду
Планировка Открытая
Этаж 3

Описание

Преимущества
  • Класс B
  • Пешком от метро
  • Кондиционирование и вентиляция
  • Свой паркинг
  • Развитая инфраструктура
Сдается в долгосрочную прямую аренду офисный блок класса B площадью 194 кв. метров в бизнес-центре.

Москва, ЗАО, Ленинский проспект, 146

Удобная локация здания:
- Автомобиль: близость транспортных магистралей, таких как Ленинский проспект, Проспект Вернадского и других.
- Возможность аренды парковочных мест.
- Ближайшее метро: от метро "Юго-Западная" всего 13 мин пешком

Офис класса B:
- Офис с отделкой, полностью готов к аренде
- Вентиляция: Приточно-вытяжная вентиляция
- Кондиционирование: сплит-системы
- Развитая инфраструктура внутри здания


Если данное предложение подходит Вашему запросу:

1. Получите презентацию в течение 10 минут в Whatsapp или на почту с фотографиями и планировкой, чтобы обсудить данный вариант с коллегами или переслать руководству. Для этого позвоните по телефону, указанному в объявлении.
2. Мы готовы ответить на любые Ваши вопросы о помещении и коммерческих условиях аренды.
3. Проводим показы ежедневно, договоримся на удобное для Вас время. Можем организовать виртуальный тур по офисному блоку.

Вы можете позвонить нам в любое время. Мы ответим на Ваши вопросы по будням до 19:00, а поздно вечером или в выходные зафиксируем Ваш контакт и перезвоним в рабочее время.

Коммерческие условия

Арендная плата 400 010 ₽
Ставка арендной платы 24 700 ₽ м²/год
Эксплуатационные расходы Включены в ставку
Налоги С учётом НДС
Тип договора Прямая аренда
Срок договора Долгосрочный
Размер платежей 1 месяц
Обеспечительный платеж 1 месяц
Статус Свободен

О бизнес-центре

Класс B
Этажность 35
Лифты Есть
Общая площадь 0 м²
Паркинг Наземный
Вентиляция приточно-вытяжная
Кондиционирование сплит-системы
Телекоммуникации Интернет/Телефония

Расположение

Подробная презентацию по предложению

Собираете информацию? Получите подробную презентацию в удобном формате, чтобы обсудить вариант с коллегами или переслать руководству!

Похожие предложения в других зданиях

БЕЗ КОМИССИИ ID: 14764 Рейтинг8.5 КлассB+

Москва, улица Обручева, 23 к3

Калужская → 766 м
~ 8 мин
Арендная плата в месяц 435 417 ₽ 27 500 ₽/м² в год С учётом НДС
Характеристики 190 м² 3 этаж Готово к въезду
Преимущества
  • Класс B+
  • Пешком от метро
  • Кондиционирование и вентиляция
  • Свой паркинг
  • Несколько провайдеров связи
  • Развитая инфраструктура

Сдается в прямую аренду офис класса B+ площадью 190 квадратных метров в бизнес-центре "Газфилд"... подробнее

Презентация по предложению

Собираете информацию? Получите подробную презентацию в удобном формате!

БЕЗ КОМИССИИ ID: 1330356 Рейтинг6.8 КлассB

Москва, Старокалужское шоссе, 62

Воронцовская → 266 м
~ 3 мин
Арендная плата в месяц 422 003 ₽ 24 900 ₽/м² в год С учётом НДС
Характеристики 203 м² 3 этаж Готово к въезду
Преимущества
  • Класс B
  • Пешком от метро
  • Кондиционирование и вентиляция
  • Свой паркинг
  • Несколько провайдеров связи
  • Развитая инфраструктура

Предлагаем в долгосрочную прямую аренду помещение под офис класса B площадью 203 кв.м в бизнес-центре "Vallex"... подробнее

Презентация по предложению

Собираете информацию? Получите подробную презентацию в удобном формате!

БЕЗ КОМИССИИ ID: 1377437 Рейтинг6.8 КлассB

Москва, Старокалужское шоссе, 62

Воронцовская → 266 м
~ 3 мин
Арендная плата в месяц 349 832 ₽ 25 000 ₽/м² в год С учётом НДС
Характеристики 168 м² 3 - 7 этаж Готово к въезду
Преимущества
  • Класс B
  • Пешком от метро
  • Кондиционирование и вентиляция
  • Свой паркинг
  • Несколько провайдеров связи
  • Развитая инфраструктура

Сдается в долгосрочную аренду офис класса B общей площадью 168 кв.м в бизнес-центре "Vallex"... подробнее

Презентация по предложению

Собираете информацию? Получите подробную презентацию в удобном формате!

БЕЗ КОМИССИИ ID: 1380983 Рейтинг9.1 КлассB+

Москва, Профсоюзная улица, 65 к1

Калужская → 309 м
~ 3 мин
Арендная плата в месяц 543 510 ₽ 32 900 ₽/м² в год С учётом НДС
Характеристики 198 м² 19 этаж Готово к въезду
Преимущества
  • Класс B+
  • Пешком от метро
  • Кондиционирование и вентиляция
  • Свой паркинг
  • Несколько провайдеров связи
  • Развитая инфраструктура

Предлагаем в долгосрочную аренду офисный блок класса B+ общей площадью 198 квадр. метров в бизнес-центре "Лотте"... подробнее

Презентация по предложению

Собираете информацию? Получите подробную презентацию в удобном формате!

БЕЗ КОМИССИИ ID: 1380203 Рейтинг8.0 КлассB+

Москва, Научный проезд, 19

Калужская → 1.41 км
~ 14 мин
Арендная плата в месяц 345 567 ₽ 22 500 ₽/м² в год Упрощённая система налогообложения
Характеристики 184 м² 7 этаж Готово к въезду
Преимущества
  • Класс B+
  • Пешком от метро
  • Кондиционирование и вентиляция
  • Развитая инфраструктура

Сдается в долгосрочную аренду офисный блок класса B+ общей площадью 184 кв.м в бизнес-центре "9 Акров"... подробнее

Презентация по предложению

Собираете информацию? Получите подробную презентацию в удобном формате!

Посмотреть все похожие предложения
Отнеситесь рационально к процессу поиска нового офиса!

Просто ответьте на 3 вопроса, и наши специалисты сами предложат оптимальные варианты под ваш бюджет

.